Move-in-ready family home with garage and off-street parking.
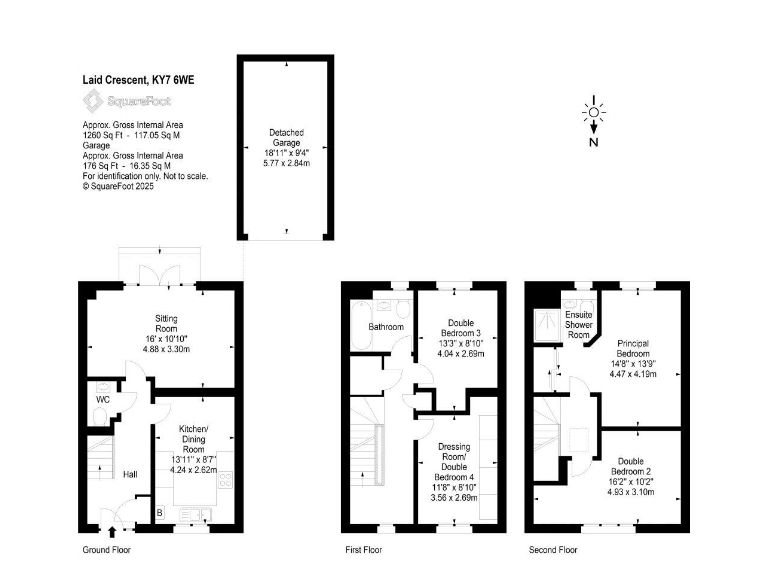
Four spacious double bedrooms, principal with en-suite
This modern, three-storey townhouse offers practical, move-in-ready living across approximately 1,259 sq ft. The open-plan ground floor features a bright living room with patio/French doors to a south-west facing garden, plus a contemporary kitchen/diner and a handy ground-floor W.C. Four double bedrooms include a principal with fitted wardrobes and an en-suite, while a family bathroom completes upstairs accommodation.
Outside, the property includes a driveway for two cars and a detached single garage, with a small enclosed rear garden and deck ideal for low-maintenance outdoor use. Built as a new development, the home benefits from double glazing and gas central heating, fast broadband and excellent mobile signal — features that suit modern family life and working-from-home routines. There is no flooding risk reported.
Buyers should note a modest annual service charge of £360 for communal grounds maintenance and that the property sits in an area with higher-than-average deprivation indicators, which may affect long-term resale dynamics. Tenure is not specified. Overall, this is a well-presented, energy-efficient family home offering convenience, sensible running costs and practical outdoor space in Glenrothes.
3 bedroom end of terrace house for sale in Town Park Way, Glenrothes, KY7 — £199,000 • 3 bed • 1 bath • 883 ft²
4 bedroom detached house for sale in Scaraben Crescent, Glenrothes, KY6 — £280,000 • 4 bed • 3 bath • 1357 ft²
4 bedroom town house for sale in 124 Sappi Road, Glenrothes, Markinch, KY7 6ZU, KY7 — £237,000 • 4 bed • 2 bath • 1001 ft²
4 bedroom detached house for sale in Rosslyn Street,
Kirkcaldy,
KY1 — £284,995 • 4 bed • 1 bath • 921 ft²
4 bedroom detached house for sale in Rosslyn Crescent,
Kirkcaldy,
KY1 2BN, KY1 — £323,995 • 4 bed • 1 bath • 1086 ft²
4 bedroom house for sale in West Mill,
West Mill Road,
Markinch,
Fife,
KY7 6ZP, KY7 — £239,995 • 4 bed • 1 bath • 858 ft²






















































