**Standout Features:**
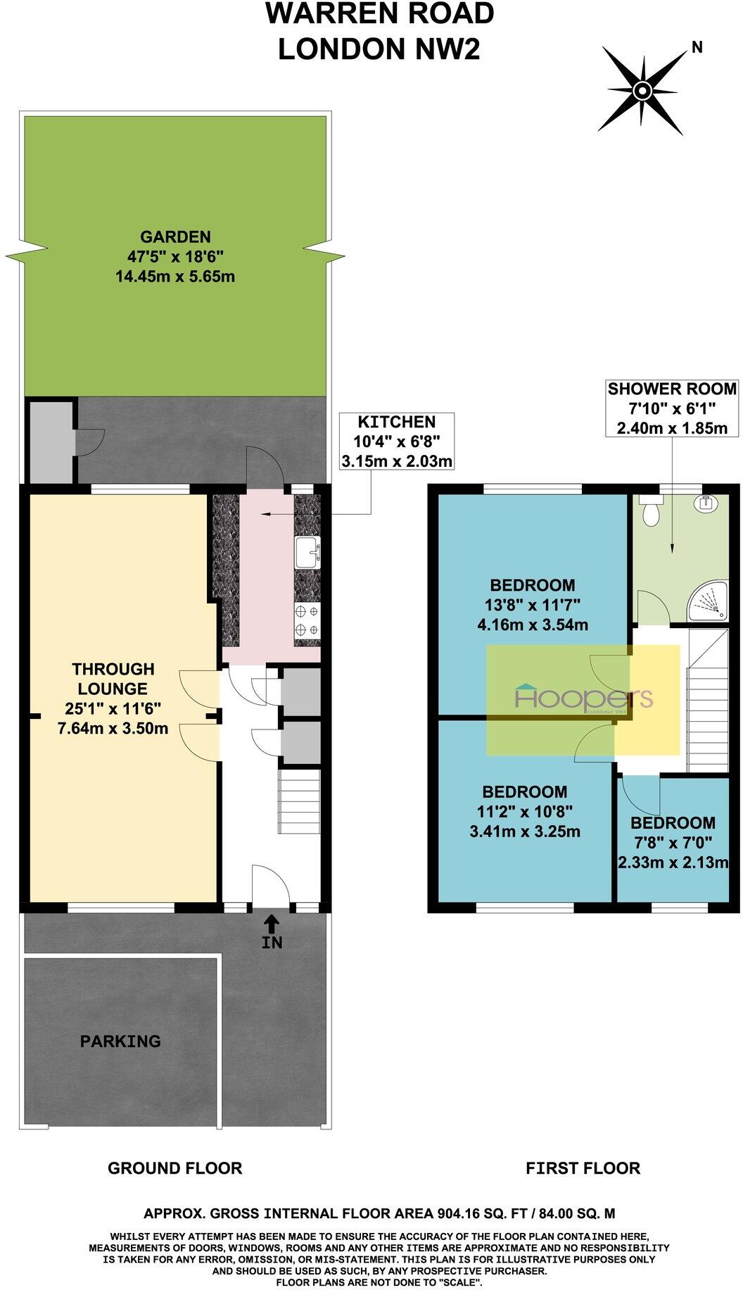
- Spacious 3-bedroom terraced house built in the 1930s
- Off-street parking and a garden for outdoor enjoyment
- Modern amenities including gas central heating and double glazed windows
- Total area of approximately 904 sq ft, ideal for families
- Convenient access to transport links and local schools
- Very low crime rate in a family-friendly neighborhood
**Potential Concerns:**
- Average-sized additional bedrooms
- Located in a small, somewhat deprived area that may lack certain amenities
- Limited room for extension on the small plot size
This charming 1930s terraced house on Warren Road presents an excellent opportunity for families or first-time buyers seeking comfortable urban living. Spanning approximately 904 sq ft, this property features a welcoming ground-floor layout with a generous through lounge that floods with natural light, ideal for both relaxing and entertaining. The compact kitchen, with modern fittings, provides practical cooking space, while the adjoining garden offers an excellent canvas for outdoor entertaining or gardening.
The upper floor includes three bedrooms that cater to family needs or versatile use for guests and a home office. One of the standout elements of this home is its excellent local amenities, including reputable schools and transport options, with Neasden Station just a short walk away. Residents will enjoy a safe, community-oriented atmosphere in a vibrant area, making it a perfect fit for young families or savvy investors looking for rental potential.
Don’t miss this chance to own a piece of London where you can add your personal touch and create cherished memories in a welcoming community. Act fast—homes like this don’t stay on the market for long!
3 bedroom terraced house for sale in Warren Road, London, NW2 — £599,950 • 3 bed • 1 bath • 904 ft²
3 bedroom end of terrace house for sale in Warren Road, London, NW2 — £635,000 • 3 bed • 1 bath • 936 ft²
4 bedroom semi-detached house for sale in Warren Road, Neasden, London, NW2 — £700,000 • 4 bed • 2 bath • 1399 ft²
3 bedroom semi-detached house for sale in Greenford, UB6 — £500,000 • 3 bed • 1 bath • 852 ft²
3 bedroom terraced house for sale in Attewood Avenue, London, NW10 — £600,000 • 3 bed • 1 bath • 1053 ft²
4 bedroom semi-detached house for sale in The Warren, Hounslow, TW5 — £875,000 • 4 bed • 3 bath • 1510 ft²














































