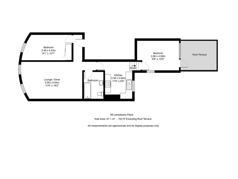
Bright two-bedroom flat with private roof terrace, close to seafront and stations.
Second-floor Regency apartment with tall ceilings and bright rooms
Private west-facing roof terrace with city views and outdoor decking
Two double bedrooms; 67.1 m² (approx. 722 ft²) internal space
Share of freehold; available with no onward chain
Convenient for seafront, cafes, bars, and mainline stations
Solid brick construction likely lacks cavity insulation (energy upgrade needed)
Area classed as student/commuter neighbourhood; rental potential
Average local crime rate and some area deprivation to note
Set on the second floor of a handsome Regency terrace, this two-bedroom apartment pairs period character with bright, spacious rooms. Tall ceilings and large west-facing windows flood the lounge/diner with afternoon light, while the split-level layout enhances the feeling of space. The property extends to about 67.1 m² (722 ft²) and includes a private roof terrace for outdoor entertaining and city views.
Positioned on the Brighton & Hove border, the flat suits first-time buyers or buy-to-let purchasers who want easy access to cafes, transport and the seafront. The shared freehold tenure is a practical advantage, and the no-onward-chain sale speeds a straightforward purchase. Mainline stations nearby provide regular direct links to London, adding commuter appeal.
There are some practical considerations: the building is solid-brick and likely uninsulated, and the property reflects its historic construction, meaning upgrading heating, insulation or windows could be needed for energy efficiency. The area shows average crime and some local deprivation statistics, which may affect long-term rental yields or resale comparables. Overall, the apartment offers ready-to-live-in accommodation with clear scope for cosmetic updating or energy improvements to add value.
1 bedroom apartment for sale in Brunswick Place, Hove, BN3 — £250,000 • 1 bed • 1 bath • 608 ft²
1 bedroom apartment for sale in Grand Parade, Brighton, BN2 — £240,000 • 1 bed • 1 bath • 438 ft²
2 bedroom apartment for sale in Chesham Place, BN2 — £635,000 • 2 bed • 2 bath • 1284 ft²
2 bedroom apartment for sale in Vernon Terrace, Brighton, BN1 — £425,000 • 2 bed • 1 bath • 777 ft²
1 bedroom flat for sale in Cavendish Place, Brighton, BN1 — £275,000 • 1 bed • 1 bath • 305 ft²
2 bedroom flat for sale in First Avenue, Hove, BN3 — £750,000 • 2 bed • 2 bath • 1330 ft²






































































