Characterful Regency flat with private roof terrace and parking, close to Brighton seafront..
Seafront Regency building with Grade II listed status
Private roof terrace — rare for central Brighton flats
One off-street private parking space included
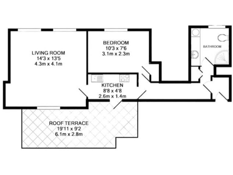
Compact 305 sq ft one-bedroom — efficient but small
Lift access, intercom and low service charge (£700 pa)
Leasehold with ~98 years remaining; chain-free sale
EPC E, electric heating and likely uninsulated solid walls
Local crime levels recorded as very high — insurance considerations
Set within a Grade II listed Regency building on Brighton’s seafront, this compact one-bedroom flat offers a rare roof terrace and an off-street parking space — useful extras in this central location. High ceilings and generous room proportions give a sense of space despite the apartment’s modest 305 sq ft footprint. Lift access, an intercom and a low annual service charge (£700) add practical benefits for city living.
The layout suits a single occupant or couple seeking a central base close to the beach, theatres, shops and transport links; Brighton Station is a 10–15 minute walk. The double bedroom and a well-proportioned living area provide comfortable day-to-day living, while the galley kitchen and modern bathroom are functional for immediate use. Chain-free sale and 98 years remaining on the lease make transaction timing straightforward.
Important practical points: the building’s listed status restricts alterations and may complicate refurbishment or extension plans. The flat has electric heating and pre-2002 double glazing, and the building’s solid-brick walls are likely uninsulated — factors that contribute to the current EPC E rating and could mean higher running costs. Local crime levels are recorded as very high; consider security and insurance implications.
Overall this is a compact, characterful seaside pied-à-terre or city-let with immediate move-in potential and notable extras (terrace, parking). Buyers wanting substantial modernisation or structural changes should weigh listed-building constraints and potential retrofit costs before viewing.
1 bedroom apartment for sale in Grand Parade, Brighton, BN2 — £240,000 • 1 bed • 1 bath • 438 ft²
2 bedroom flat for sale in Marine Parade, BN2 — £595,000 • 2 bed • 2 bath • 1053 ft²
2 bedroom flat for sale in Eastern Terrace, Brighton, BN2 — £500,000 • 2 bed • 1 bath • 1043 ft²
2 bedroom flat for sale in Brunswick Square, Hove, BN3 — £475,000 • 2 bed • 1 bath • 675 ft²
2 bedroom apartment for sale in Vernon Terrace, Brighton, BN1 — £425,000 • 2 bed • 1 bath • 777 ft²
1 bedroom apartment for sale in Regency Square, Brighton, BN1 — £250,000 • 1 bed • 1 bath • 584 ft²










































