Ready-to-move new-build 2-bed shared ownership home in peaceful village setting with low deposit..
5% deposit already paid for the shared ownership purchase
40% initial share with staircasing available up to 80% (restriction applies)
New-build with 10-year NHBC guarantee and modern low-maintenance finishes
Two off-road parking spaces and turfed rear garden
Compact 732 sq ft layout — suitable starter/family home
Heating via LPG boiler (not mains gas) — potentially higher running costs
Leasehold shared ownership; total rent £393.78 pcm and fees apply
Medium flood risk — obtain flood/insurance details before committing
This newly built two-bedroom semi-detached home on The Coppice, Wyson Lane, is offered as shared ownership with a low initial deposit already paid — a practical route into the local housing market for first-time buyers. The property is ready to occupy, comes with a 10-year NHBC guarantee and practical features including UPVc double glazing, fitted kitchen with oven/hob and two off-road parking spaces. The rear garden is turfed for low-maintenance outdoor use.
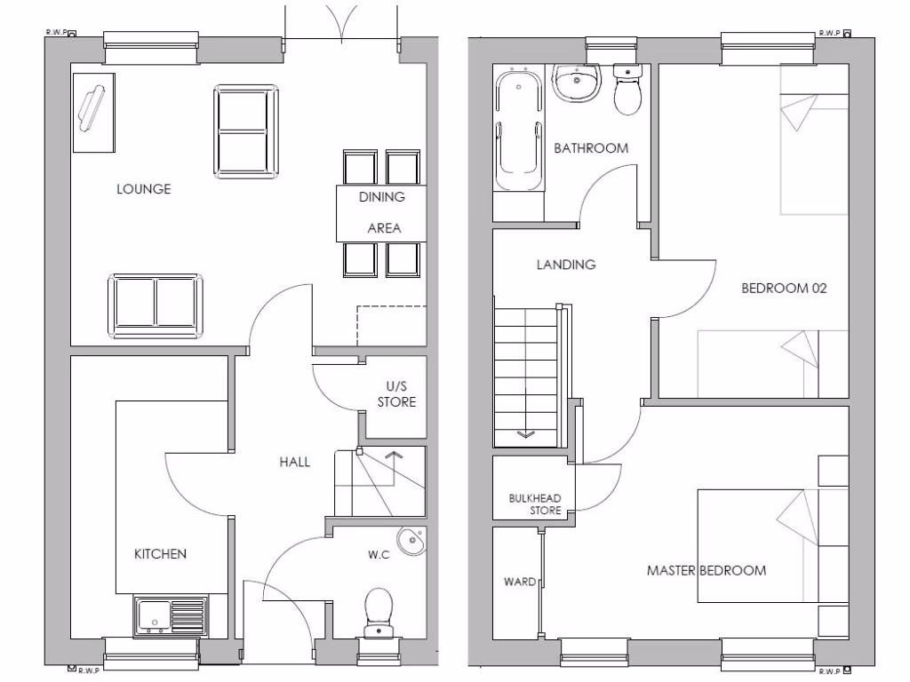
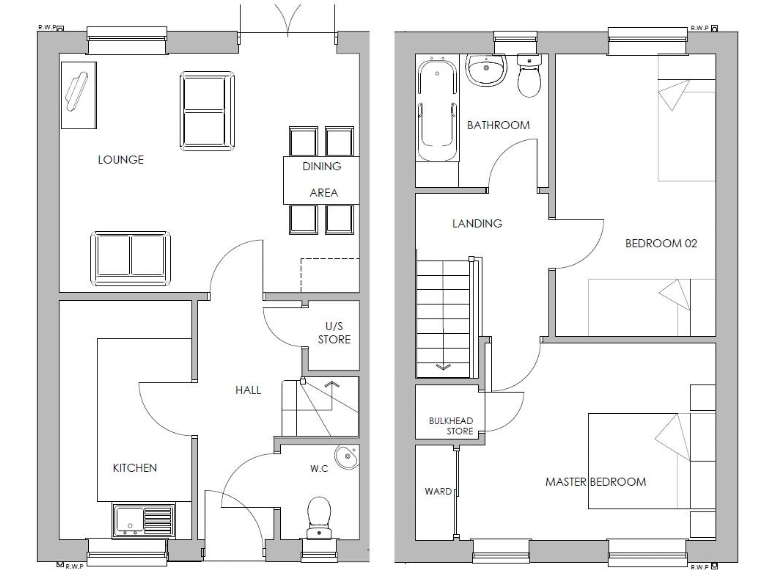
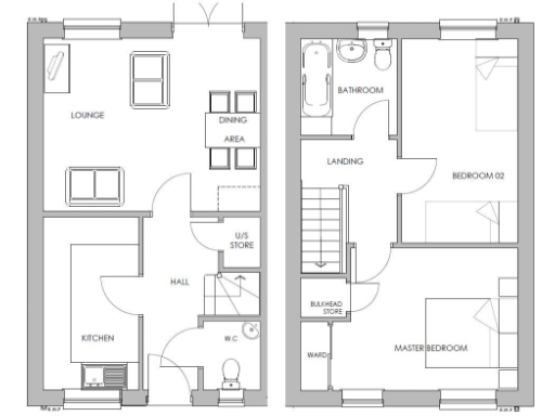
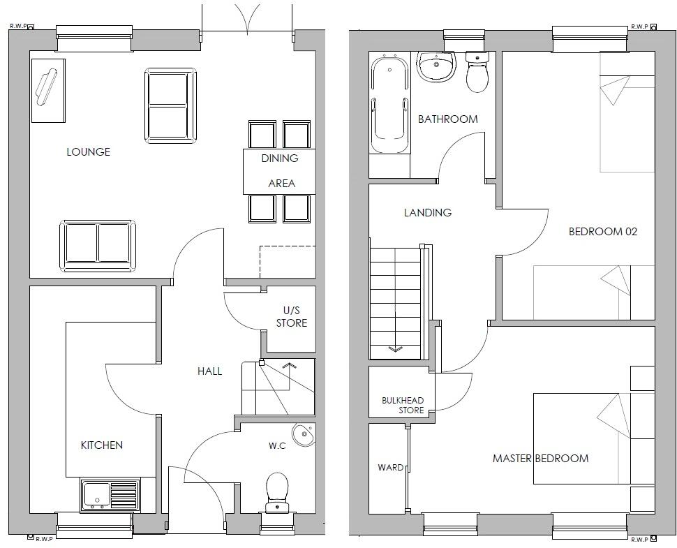
The layout is straightforward and family-friendly: ground-floor hallway, kitchen/dining room, living room and cloakroom; upstairs provides a master bedroom, second bedroom and family bathroom. At about 732 sq ft the accommodation is comfortably sized for a starter home, with modern finishes such as vinyl flooring to wet areas and multi-point locking to external doors for added security.
Buyers should note the material considerations: this is a leasehold, shared ownership property with a current 40% share (up to 80% staircasing allowed but subject to an 80% restriction), and a total monthly rent of £393.78. Heating is by LPG boiler and radiators (not mains gas), which can be more expensive and requires tank refills. The site is classed as medium flood risk — buyers should obtain detailed flood and insurance information before proceeding. Council tax band is not provided.
Positioned on the edge of Brimfield village, the development benefits from a quiet rural setting, very low local crime, nearby primary schools with good Ofsted ratings and accessible connections to Ludlow, Leominster and Tenbury Wells. For first-time buyers prioritising a low-deposit route into a new-build home in a village location, this property offers a practical, low-maintenance start, provided you’re comfortable with leasehold/shared-ownership terms and LPG heating arrangements.
2 bedroom terraced house for sale in The Coppice, Wyson Lane, Brimfield, Ludlow, Herefordshire, SY8 — £96,600 • 2 bed • 1 bath • 775 ft²
2 bedroom terraced house for sale in The Coppice, Wyson Lane, Brimfield, Ludlow, Herefordshire, SY8 — £96,600 • 2 bed • 1 bath • 775 ft²
2 bedroom terraced house for sale in The Coppice (Phase 2), Wyson Lane, Brimfield, Ludlow, Herefordshire, SY8 — £96,600 • 2 bed • 1 bath • 711 ft²
2 bedroom terraced house for sale in The Coppice (Phase 2), Wyson Lane, Brimfield, Ludlow, Herefordshire, SY8 — £96,600 • 2 bed • 1 bath • 711 ft²
2 bedroom semi-detached house for sale in Rocks Green Crescent, Rock Green, Ludlow, SY8 — £46,250 • 2 bed • 1 bath • 874 ft²
2 bedroom semi-detached house for sale in Florence Fields, Leintwardine, SY7 — £187,198 • 2 bed • 1 bath


















































