Affordable new-build living on village edge with parking and garden.
Ready to occupy two-bedroom mid-terrace with turfed rear garden
40% Shared Ownership (5% deposit paid); staircasing up to 80% restricted
Total rent £388.97 pcm; property is leasehold
10-year NHBC guarantee; modern fitted kitchen and bathroom
Two off-road parking spaces included
Heating by LPG boiler — fuel delivery and costs differ from mains gas
High flood risk for the location — check reports and insurance costs
Rural village location with good primary schools and low crime
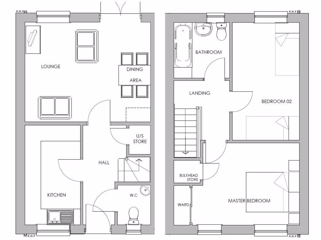
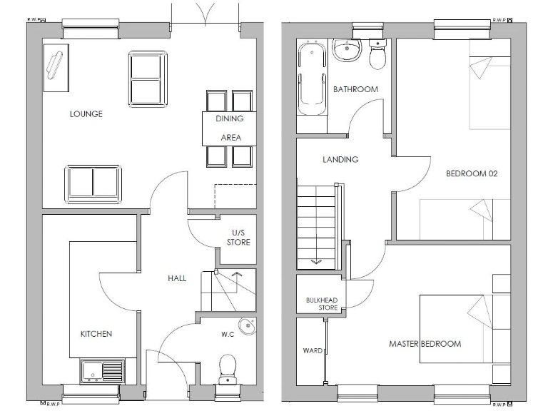
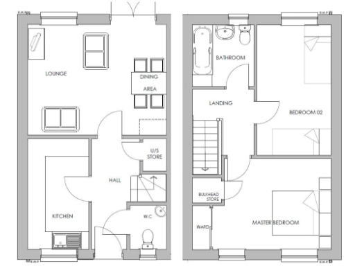
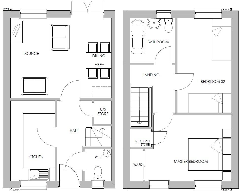
A ready-to-occupy two-bedroom mid-terrace offered through Shared Ownership, this modern home sits at the edge of Brimfield village with easy access to Ludlow and surrounding towns. The layout is straightforward: entrance hall, kitchen/diner, living room, ground-floor cloakroom and storage, with two bedrooms and a family bathroom upstairs. Two allocated off‑road parking spaces and a turfed rear garden make it practical for daily family life.
The purchase is structured as 40% Shared Ownership (5% deposit already paid) with staircasing available up to 80% — note there is an 80% staircasing restriction on these homes. Total rent is £388.97 pcm and the property is leasehold. New-build protections include a 10‑year NHBC guarantee and UPVc double glazing; kitchens and bathrooms are fitted and ready for use.
Important practical points: the property uses LPG for heating (boiler and radiators) rather than a mains gas connection, which can affect running costs and fuel deliveries. The site is in a rural, low-crime village setting with local shops, two pubs and good primary schools nearby, but public transport is limited to village services. There is a high flood risk for the area — buyers should review flood reports and insurance implications before proceeding.
This home will suit first-time buyers or buyers seeking a practical starter home in a quiet village, who want new-build ease without a full-market deposit. It’s best suited to those comfortable with shared ownership rules, LPG heating, and the local flood considerations.
2 bedroom terraced house for sale in The Coppice, Wyson Lane, Brimfield, Ludlow, Herefordshire, SY8 — £96,600 • 2 bed • 1 bath • 775 ft²
2 bedroom terraced house for sale in The Coppice (Phase 2), Wyson Lane, Brimfield, Ludlow, Herefordshire, SY8 — £96,600 • 2 bed • 1 bath • 711 ft²
2 bedroom terraced house for sale in The Coppice (Phase 2), Wyson Lane, Brimfield, Ludlow, Herefordshire, SY8 — £96,600 • 2 bed • 1 bath • 711 ft²
2 bedroom semi-detached house for sale in Rocks Green Crescent, Rock Green, Ludlow, SY8 — £46,250 • 2 bed • 1 bath • 874 ft²
3 bedroom detached house for sale in Kingsacre Drive, Burford, Tenbury Wells, Shropshire, WR15 — £135,000 • 3 bed • 1 bath • 1021 ft²
2 bedroom end of terrace house for sale in Wyson Terrace, Wyson, Brimfield, Ludlow, SY8 — £225,000 • 2 bed • 1 bath • 720 ft²


























































