Affordable shared-ownership starter home in a peaceful village location.
- New-build two-bedroom terraced house with 10-year NHBC guarantee
- Shared Ownership available; 5% deposit already paid, up to 80% staircasing
- Total rent shown £388.97 pcm on the advertised share
- Two off-road parking spaces and rear garden with turf laid
- UPVc double glazing and multipoint-secure external doors fitted
- Main heating: LPG boiler and radiators (no mains gas)
- Leasehold with an 80% staircasing restriction; check terms
- High local flooding risk—affects insurance and mitigation needs
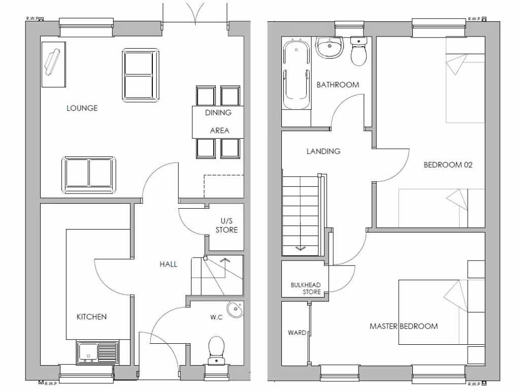
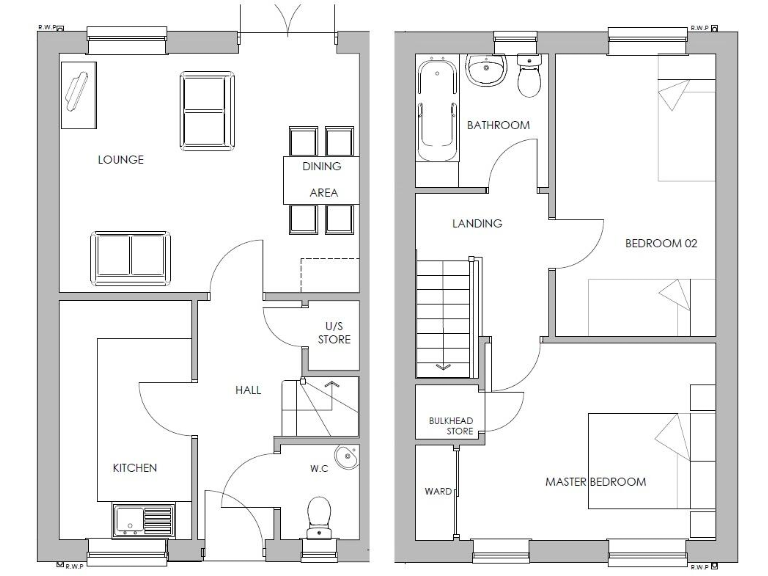
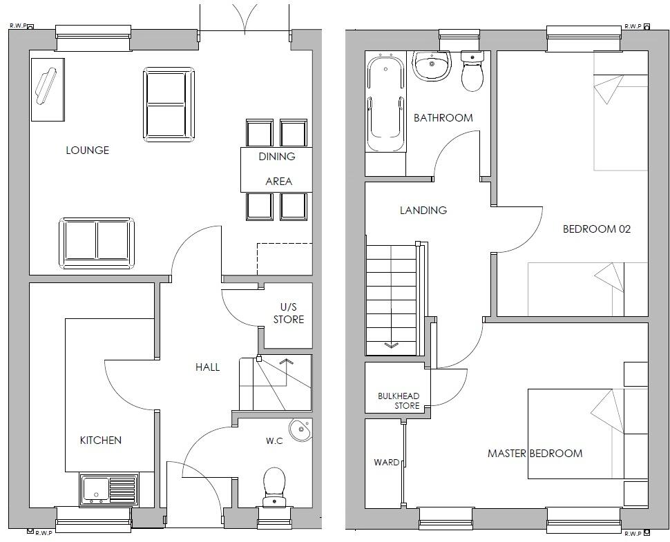
A newly built two-bedroom terraced house in The Coppice, ready to occupy with a 10-year NHBC guarantee. The home offers a fitted kitchen, living room with patio doors to a turfed rear garden, cloakroom, storage and two off-road parking spaces — practical features for first-time buyers seeking low-maintenance, contemporary living in a village setting.
This property is offered on a Shared Ownership basis (40% currently shown; up to 80% staircasing available) with a 5% deposit already paid and a total rent of £388.97 pcm on the shown share. It includes UPVc double glazing, multipoint secure external doors, and mains-operated smoke, heat and carbon monoxide detectors for added peace of mind.
Buyers should note material points plainly: the development is leasehold and subject to an 80% staircasing restriction; main heating is LPG via boiler and radiators (not a community gas supply); and the site is shown as having a high flooding risk. These factors affect running costs, insurance and future saleability and should be checked carefully before proceeding.
Set on the edge of Brimfield village, the home sits close to local amenities, good-rated primary schools and bus links to Ludlow, Leominster and Tenbury Wells. For buyers wanting a manageable, modern starter home in a rural community, this property offers an accessible route onto the housing ladder, but evaluate insurance, flood mitigation and LPG heating implications first.
2 bedroom terraced house for sale in The Coppice, Wyson Lane, Brimfield, Ludlow, Herefordshire, SY8 — £96,600 • 2 bed • 1 bath • 775 ft²
2 bedroom terraced house for sale in The Coppice (Phase 2), Wyson Lane, Brimfield, Ludlow, Herefordshire, SY8 — £96,600 • 2 bed • 1 bath • 711 ft²
2 bedroom terraced house for sale in The Coppice (Phase 2), Wyson Lane, Brimfield, Ludlow, Herefordshire, SY8 — £96,600 • 2 bed • 1 bath • 711 ft²
2 bedroom semi-detached house for sale in Rocks Green Crescent, Rock Green, Ludlow, SY8 — £46,250 • 2 bed • 1 bath • 874 ft²
3 bedroom detached house for sale in Kingsacre Drive, Burford, Tenbury Wells, Shropshire, WR15 — £135,000 • 3 bed • 1 bath • 1021 ft²
2 bedroom end of terrace house for sale in Wyson Terrace, Wyson, Brimfield, Ludlow, SY8 — £225,000 • 2 bed • 1 bath • 720 ft²






















































