SL5 8EL - 3 bedroom semidetached house for sale in Ascot, Berkshire,…

View on Property Piper

3 bedroom semi-detached house for sale in Ascot, Berkshire, SL5

Summary - 55 BLACKMOOR WOOD ASCOT SL5 8EL

3 bed 1 bath Semi-Detached

Well-presented three-bed with garage and garden in sought-after Ascot location..
- Three bedrooms with a separate lounge and modern kitchen
- Private rear garden; small plot size
- Driveway plus secure garage for off-street parking
- Single family bathroom only for three bedrooms
- Freehold tenure; mains gas boiler and radiators
- Built 1950–1966 — mid-century construction
- Double glazing present; install date unknown
- Very low local crime and fast broadband
This three-bedroom semi-detached home in Blackmoor Wood offers comfortable, practical living in one of Ascot’s quieter residential streets. The lounge, modern kitchen and family bathroom provide a ready-to-move-into layout, while a private rear garden and garage add useful outdoor space and parking.

Situated close to a range of well-regarded independent and state schools, good transport links and local shops, the property suits families and first-time buyers seeking convenience in a very affluent area. The house is freehold and benefits from mains gas heating, double glazing (install date unknown) and fast broadband — practical features for everyday life and working from home.

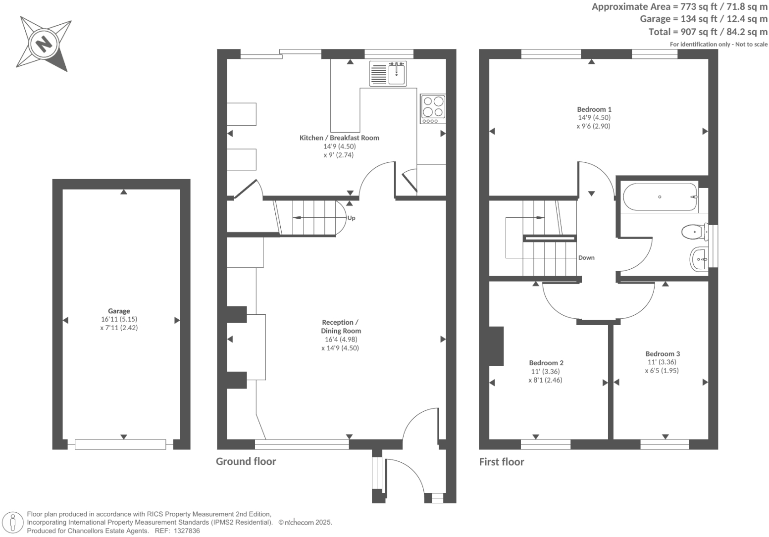
Buyers should note the house sits on a relatively small plot and provides a single bathroom for three bedrooms; the overall floor area is modest at around 907 sq ft. Constructed in the mid-20th century, the property appears well-presented but may offer renovation potential for buyers wanting to modernise or extend subject to checks and permissions.

Overall, the home presents a straightforward purchase with parking, garden and garage in a low-crime, high-amenity part of Ascot. It will appeal to those seeking a comfortable starter home with room to add value over time rather than a large family residence.

Property Details

Image Descriptions

Floorplan Description

Rooms

Textual Property Features

Target Audience

AI Tags

Detected Visual Features

EPC Details

Nearby Schools

Nearest Bars And Restaurants

,,,,}

Nearest General Shops

,,}

Nearest Grocery shops

,,}

Nearest Supermarkets

,,}

Nearest Religious buildings

,,}

Nearest Medical buildings

,,,}

Nearest Airports

,}

Nearest Leisure Facilities

,,,,}

Nearest Tourist attractions

,,}

Nearest Train stations

,,,,}

Nearest Bus stations and stops

,,,,}

Nearest Hotels

,,}

Tags

Local Market Stats

AirBnB Data

Similar Properties

Meta

High Res Images

Compatible Images

Low res Images

Thumbnails

Raw Images

High Res Floorplan Images

Compatible Floorplan Images

Low res Floorplan Images

FloorplanImages Thumbnail

Raw Floorplan Images