SL5 9AG - 3 bedroom semidetached house for sale in Ascot, Berkshire,…

View on Property Piper

3 bedroom semi-detached house for sale in Ascot, Berkshire, SL5

Summary - 19 FRANCIS CHICHESTER CLOSE ASCOT SL5 9AG

3 bed 1 bath Semi-Detached

**Standout Features:**
- Three bedrooms and one bathroom with a comfortable living space.
- Home office located in the rear garden, perfect for remote working.
- Single garage for ample parking and storage.
- Private garden, offering a peaceful outdoor space.
- Ideally situated less than 1 mile from Ascot High Street and 0.5 miles from Ascot Train Station.
- Located in a low-crime, affluent community with excellent schools nearby.

This charming three-bedroom semi-detached home is nestled in a quiet cul-de-sac, making it an ideal haven for families and first-time buyers alike. With a well-maintained interior and the flexibility of a home office in the garden, this property perfectly blends contemporary living with comfortable space. Enjoy the benefits of an off-street garage and a small private garden, perfect for relaxation.

Although it is compact at 814 square feet, the property's layout maximizes space and light, making it feel welcoming and cozy. The local area boasts excellent schools, including several rated 'Good' and 'Outstanding' by Ofsted, enhancing its appeal for families.

However, potential buyers should consider its modest size and the need for some updates to the double-glazing system as the install date remains unclear. With low crime rates and fast broadband speeds, this home offers both security and connectivity.

Seize the opportunity to own in this sought-after area—properties like this don’t last long!

Property Details

Image Descriptions

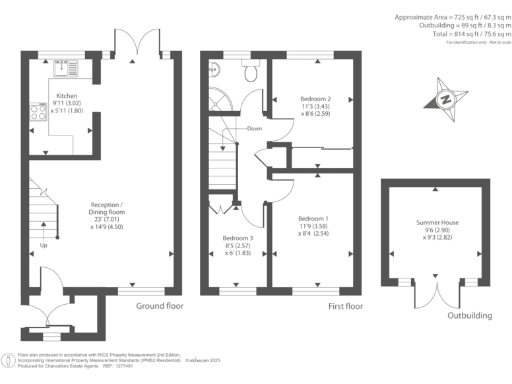
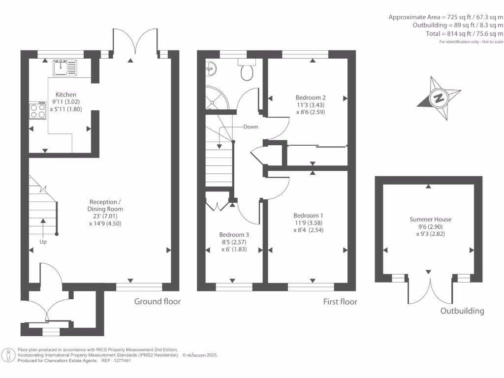
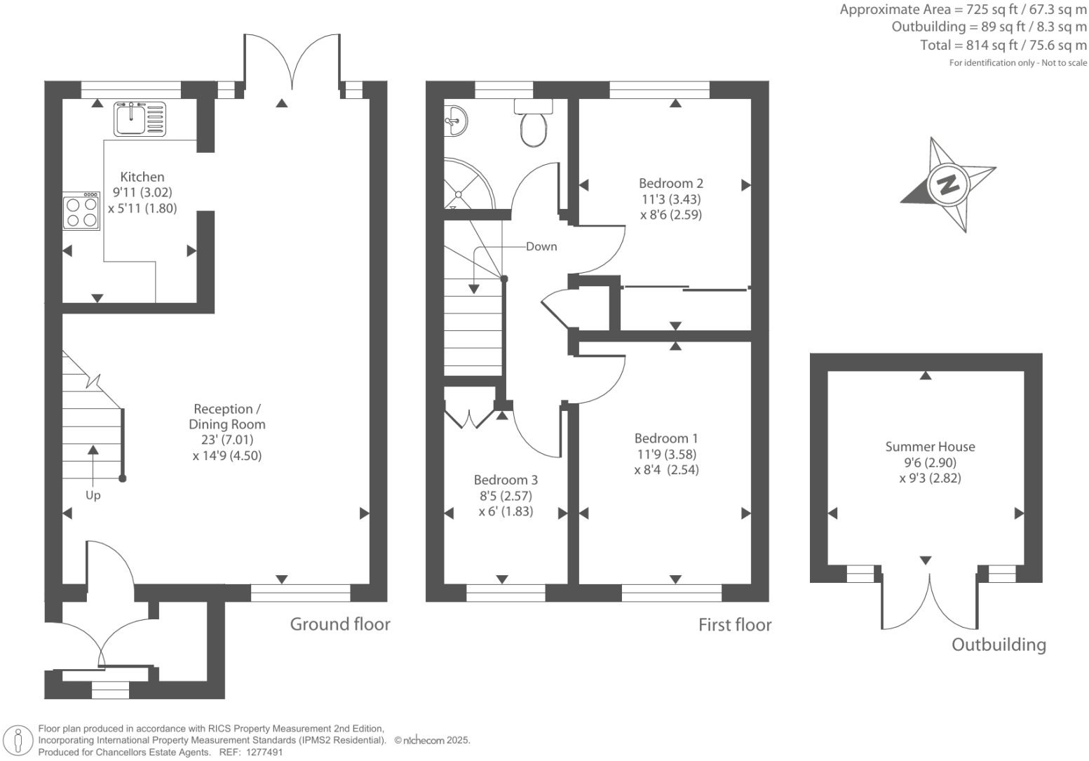
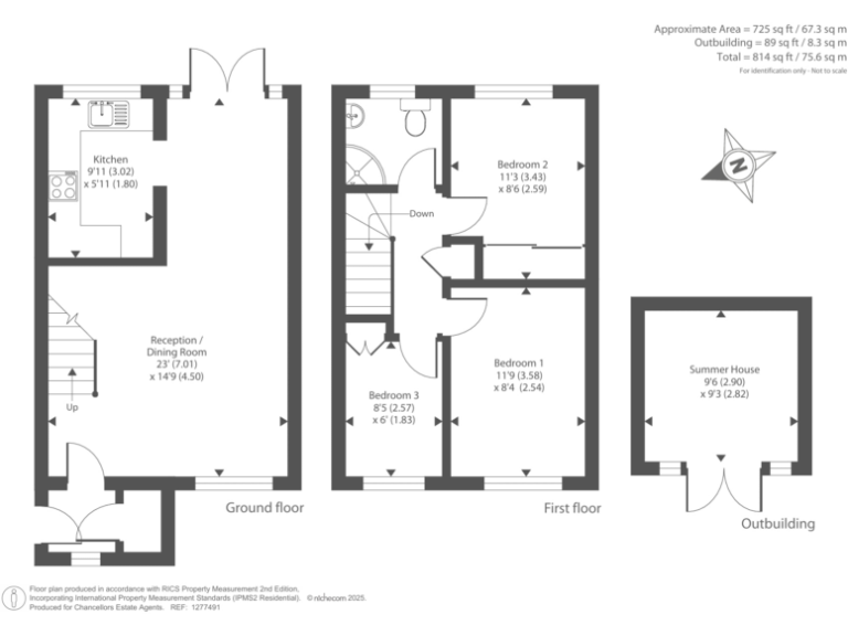
Floorplan Description

Rooms

Textual Property Features

Detected Visual Features

EPC Details

Nearby Schools

Nearest Bars And Restaurants

,,,,}

Nearest General Shops

,,}

Nearest Grocery shops

,,}

Nearest Supermarkets

,,}

Nearest Religious buildings

,,}

Nearest Medical buildings

,,,}

Nearest Airports

,}

Nearest Leisure Facilities

,,,,}

Nearest Tourist attractions

,,}

Nearest Train stations

,,,,}

Nearest Bus stations and stops

,,,,}

Nearest Hotels

,,}

Tags

Local Market Stats

AirBnB Data

Similar Properties

Meta

High Res Images

Compatible Images

Low res Images

Thumbnails

Raw Images

High Res Floorplan Images

Compatible Floorplan Images

Low res Floorplan Images

FloorplanImages Thumbnail

Raw Floorplan Images