Large garden backing onto open fields with versatile living and studio space.
Five bedrooms including ground-floor guest room
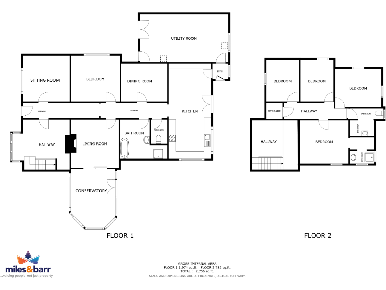
This substantially extended 1930s bungalow offers flexible family living across two floors, making it well suited to multi-generational households or growing families. The ground floor hosts a guest bedroom, three reception rooms and a large kitchen designed for day-to-day life and entertaining. Upstairs the loft conversion provides four further bedrooms including a master with en suite.
Externally the plot is a standout feature: a large southeast-facing rear garden backing onto open fields, an extended patio for al fresco dining and a detached garden studio ideal for a home office, gym or creative space. A wide in-and-out tarmac driveway provides generous off-street parking and access to a detached garage.
Practical points to note: the property is freehold and sits in a very affluent, low-crime area with fast broadband and no flood risk. Council tax is described as expensive and, as with many extended period homes, there may be ongoing maintenance or updating required to match personal tastes. The village location gives easy access to Canterbury, local schools and transport links while retaining a countryside feel.
Overall this is a roomy, versatile home with strong indoor-outdoor appeal, ideal for families seeking village life with good links to the city and coast. Buyers wanting a turnkey modern finish should allow for possible refurb works; those seeking space and flexibility will find genuine potential here.
4 bedroom detached house for sale in High Street, Wingham, Canterbury, Kent, CT3 — £1,175,000 • 4 bed • 3 bath • 2638 ft²
2 bedroom semi-detached bungalow for sale in Oxenden Crescent, Wingham, Canterbury, CT3 — £265,000 • 2 bed • 1 bath • 665 ft²
4 bedroom semi-detached house for sale in High Street, Wingham, CT3 — £499,950 • 4 bed • 1 bath • 1400 ft²
4 bedroom detached house for sale in Mill Road, Wingham, Canterbury, CT3 — £550,000 • 4 bed • 2 bath • 2555 ft²
3 bedroom bungalow for sale in The Long Hill, Old Wives Lees, Canterbury, CT4 — £450,000 • 3 bed • 1 bath • 1408 ft²
3 bedroom detached bungalow for sale in Wingham, CT3 — £640,000 • 3 bed • 2 bath • 1624 ft²














































































































