Historic four-bedroom cottage with large garden and village convenience..
Grade II Listed cottage with rich period features and creative interior design
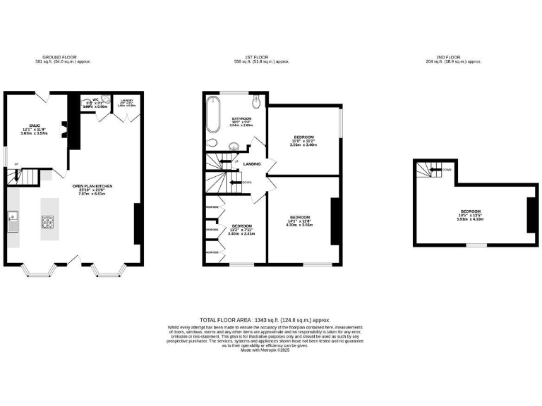
Over 1,400 sq ft across multi-storey layout, four bedrooms
Substantial 0.27-acre plot with meadow garden, stream boundary and art studio
Off-road parking for two cars; village High Street location
Only one family bathroom; newly added ground-floor WC
Listed status restricts alterations and can complicate repair work
Solid brick walls likely uninsulated; retrofit insulation may be needed
Medium flood risk from bordering stream; mitigation may be required
An enchanting Grade II Listed semi-detached cottage in Wingham, offering more than 1,400 sq ft of cleverly arranged living space across multiple levels. The house blends strong period character — exposed beams, vaulted ceilings, sash-style windows and original features — with a recently refreshed interior and creative decorative touches. A separate snug with a wood-burning stove and an open-plan ground floor create flexible family living.
The property sits on a substantial 0.27-acre plot with block-paved off-road parking, a meadow-style garden, several useful outbuildings and a brick-built art studio. A gentle stream forms one boundary and the garden backs onto open farmland, giving a private, rural feel while keeping village amenities within easy reach. Canterbury and Sandwich are short drives away, making schools, rail links and city facilities accessible.
Important practical points are set out plainly: the house is Grade II Listed, which will restrict alterations and can complicate building work and replacements. The listed walls are solid brick with assumed no cavity insulation, the EPC is D and there is a medium flood risk along the stream boundary. Accommodation includes four bedrooms but only one family bathroom and a newly added ground floor WC.
This home will suit buyers who value historic character, substantial outdoor space and a creative, well-presented interior — families, home-workers and buyers wanting a distinctive village property. Those seeking a low-maintenance, fully modernised dwelling or easy scope for structural alterations should factor in listed-building limits and possible retrofit costs for insulation and flood mitigation.
3 bedroom character property for sale in High Street, Wingham, CT3 — £575,000 • 3 bed • 2 bath • 1412 ft²
2 bedroom semi-detached house for sale in Garden Cottages, Harriss Alley, Wingham, CT3 — £365,000 • 2 bed • 1 bath • 1062 ft²
2 bedroom end of terrace house for sale in Upper Harbledown, Canterbury, Kent, CT2 — £340,000 • 2 bed • 1 bath • 1098 ft²
4 bedroom semi-detached house for sale in Dambridge Farm Cottages, Staple Road, Wingham, CT3 — £475,000 • 4 bed • 2 bath • 1500 ft²
4 bedroom detached house for sale in The Street, Womenswold, Canterbury, Kent, CT4 — £650,000 • 4 bed • 2 bath • 2740 ft²
4 bedroom detached house for sale in Wenderton Lane, Wingham, Canterbury, Kent, CT3 — £890,000 • 4 bed • 2 bath • 1919 ft²






























































































































































































































































