Quiet cul-de-sac home with large garden and double garage, ideal for growing families.
Four double bedrooms with principal en-suite and fitted wardrobes
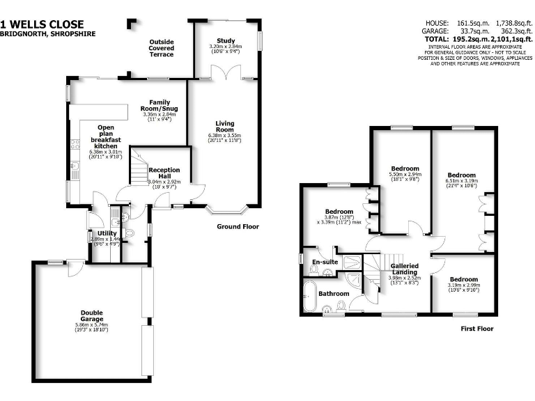
Set in a quiet cul-de-sac close to Bridgnorth High Street, this four-double-bedroom detached home offers generous family accommodation across two floors. The heart of the house is a large open-plan kitchen and family area with sliding patio doors that connect directly to a private, low-maintenance landscaped garden and covered terrace.
Practical family features include a long driveway, integral double garage with electric up-and-over doors, a spacious living room with a bow window, a separate reception/office and a principal bedroom with fitted wardrobes and en-suite. The property sits on a large plot and benefits from good natural light, mature planting for privacy and easy access to well-regarded primary and secondary schools.
Buyers should note the house dates from the 1980s and has double glazing installed before 2002; routine updates and modernization may be required to suit contemporary tastes. Council Tax sits in Band G and should be factored into running costs. Mains gas central heating and all mains services are advised as connected, but buyers should verify details with their surveyor.
This home will suit growing families seeking space, parking and privacy in a very affluent area, with convenient town amenities and countryside routes nearby. It delivers immediate practical living plus scope to update and personalise over time.
4 bedroom house for sale in 7 Stretton Close, Bridgnorth, WV16 — £410,000 • 4 bed • 2 bath • 1270 ft²
4 bedroom detached house for sale in 12 Queensway Drive, Bridgnorth, WV16 — £500,000 • 4 bed • 2 bath • 1279 ft²
3 bedroom link detached house for sale in 33 Ludlow Heights, Bridgnorth, WV16 — £370,000 • 3 bed • 1 bath • 1221 ft²
4 bedroom detached house for sale in Salop Street, Bridgnorth, Shropshire, WV16 — £625,000 • 4 bed • 1 bath • 1776 ft²
4 bedroom detached house for sale in 3 Cantern, Bridgnorth, WV16 — £625,000 • 4 bed • 2 bath • 1574 ft²
5 bedroom detached house for sale in Morgan Springs, Oldbury, Bridgnorth, Shropshire, WV16 — £725,000 • 5 bed • 3 bath • 2314 ft²


























































































































