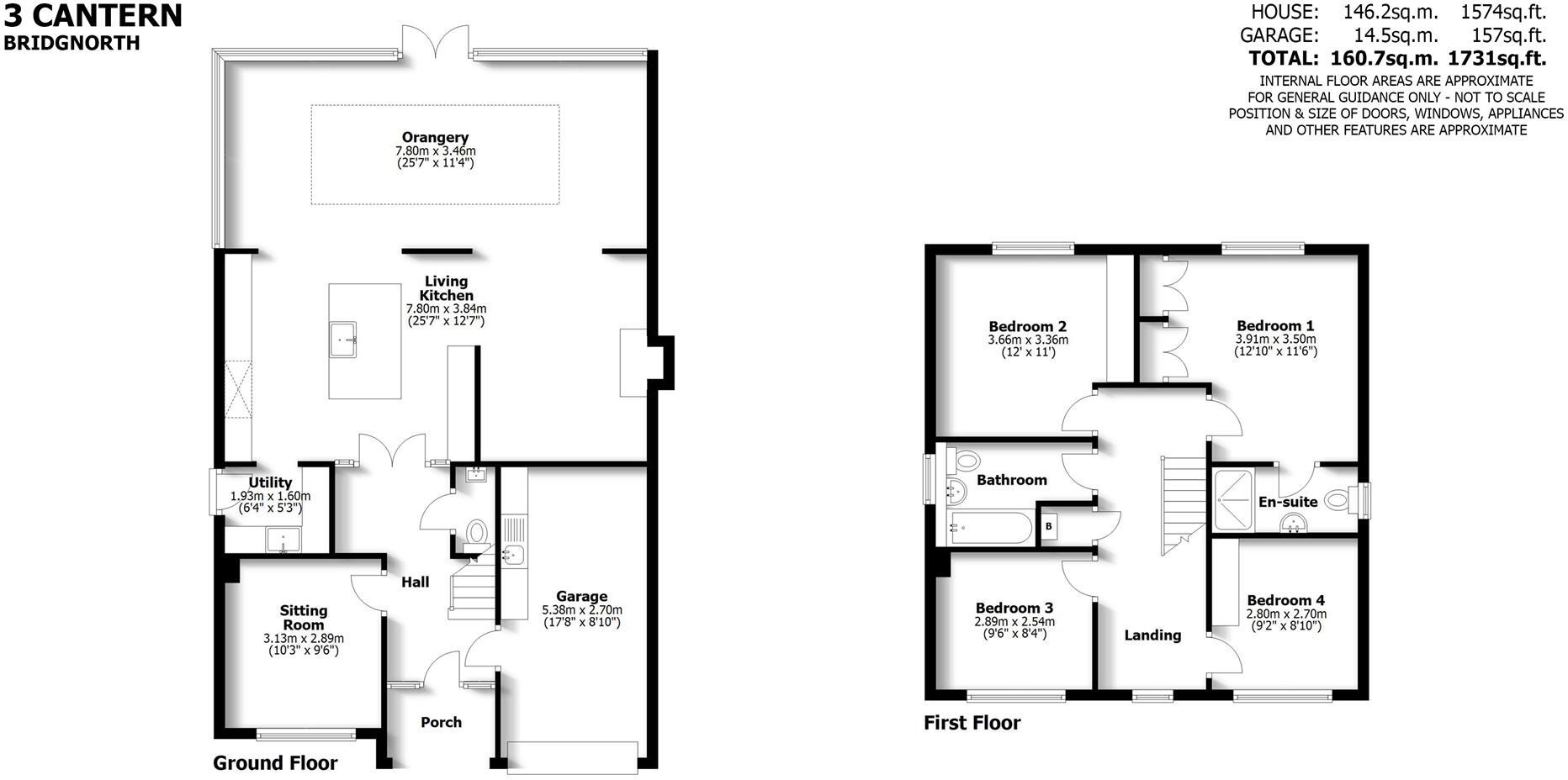
Spacious family living with high-spec finishes and private sunny garden.
Newly refurbished open-plan kitchen and orangery, refitted 2023
Southerly-facing landscaped garden with powered gazebo, low maintenance
Integral garage with electric roller shutter and driveway parking
Underfloor heating to tiled areas; mains gas boiler and radiators
Four bedrooms, principal ensuite; built-in Sharps wardrobes
Freehold, double glazing installed post-2002, mains services connected
Council Tax Band E (above-average running costs)
Local area classed as ageing urban community; crime above average
This extended four-bedroom detached house blends neo‑Tudor character with a high-quality contemporary finish, freshly refitted in 2023. The ground floor extension creates a generous open-plan kitchen, dining and living area with an orangery that opens onto a private southerly garden — ideal for family living and entertaining. Practical features include underfloor heating to parts of the ground floor, an integral garage with electric roller shutter, and a well-equipped utility room.
The principal suite and two further double bedrooms include fitted wardrobes, while a modern family bathroom and en‑suite serve the upper floor. High-spec kitchen appointments include granite worktops, a central island, integrated appliances, a Butler’s pantry and an integrated water softener. Outside, the low‑maintenance landscaped garden, raised beds and powered gazebo extend usable living space year-round.
Located about half a mile from Bridgnorth’s High Street, the house is convenient for schools, shops and riverside walks. Broadband and mobile signal are strong and the plot is larger than average for the development, providing generous parking and privacy. Freehold tenure and mains services are in place.
Material considerations: the neighbourhood is classified as an ageing urban community and local crime levels are above average, which some buyers may wish to investigate further. Council Tax is in a higher band (Band E). Buyers should verify service connections and local reports with their surveyor and solicitor.
4 bedroom detached house for sale in 1 Brook Hollow, Bridgnorth, WV16 — £550,000 • 4 bed • 3 bath • 1404 ft²
3 bedroom link detached house for sale in 33 Ludlow Heights, Bridgnorth, WV16 — £370,000 • 3 bed • 1 bath • 1221 ft²
4 bedroom detached house for sale in 12 Queensway Drive, Bridgnorth, WV16 — £500,000 • 4 bed • 2 bath • 1279 ft²
4 bedroom detached house for sale in 15 Pale Meadow Road, Bridgnorth, WV15 — £450,000 • 4 bed • 2 bath • 1038 ft²
4 bedroom house for sale in 7 Stretton Close, Bridgnorth, WV16 — £425,000 • 4 bed • 2 bath • 1270 ft²
5 bedroom detached house for sale in Morgan Springs, Oldbury, Bridgnorth, Shropshire, WV16 — £749,950 • 5 bed • 3 bath • 2314 ft²


















































































































































