Separate annexe and driveway; ideal for families or rental income.
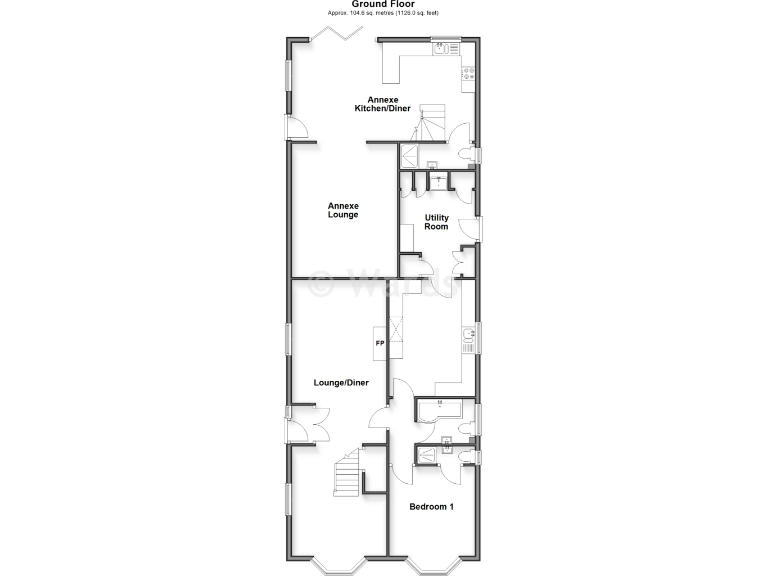
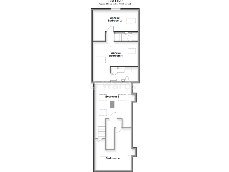
- Five-bedroom main house plus self-contained two-bedroom annexe
A flexible mid-20th-century chalet offering generous living space and a fully self-contained two-bedroom annexe. The main house provides multiple reception rooms and large bedrooms over spacious accommodation, while the separate annexe has its own entrance and utilities — ideal for multigenerational living or genuine rental/Airbnb income.
Outside, a decent plot includes a split rear garden and a driveway for several vehicles, set in the quiet, friendly St. Michaels area of Tenterden with very low crime and excellent broadband and mobile signal. Local schools are rated Good and amenities are within easy reach, supporting family life and longer-term rental appeal.
Practical realities are straightforward: the house dates from the 1950s–60s with cavity walls (insulation assumed absent) and double glazing of unknown install date, so energy upgrades and insulation improvements should be expected. Buyers must verify planning/building consents for any past extensions or conversions. The property is freehold with moderate council tax and no flood risk.
4 bedroom detached house for sale in Heather Drive, St Michaels, Tenterden, Kent, TN30 — £600,000 • 4 bed • 2 bath • 1722 ft²
5 bedroom chalet for sale in Grange Crescent, St. Michaels, Tenterden, Kent, TN30 — £330,500 • 5 bed • 4 bath • 2336 ft²
5 bedroom detached house for sale in St. Michaels, TN30 — £950,000 • 5 bed • 4 bath • 3032 ft²
5 bedroom detached house for sale in Henley Meadows, St. Michaels, Tenterden, Kent, TN30 — £600,000 • 5 bed • 2 bath • 2001 ft²
5 bedroom detached house for sale in Homewood Road, Tenterden, Kent, TN30 7AU, TN30 — £800,000 • 5 bed • 3 bath • 2396 ft²
6 bedroom detached house for sale in Tenterden, TN30 — £550,000 • 6 bed • 2 bath • 1659 ft²


































































































