Retirement-ready layout with separate annexe and rental potential for income-minded buyers.
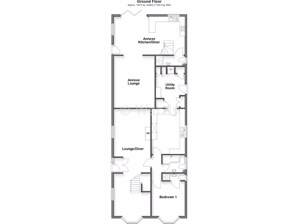
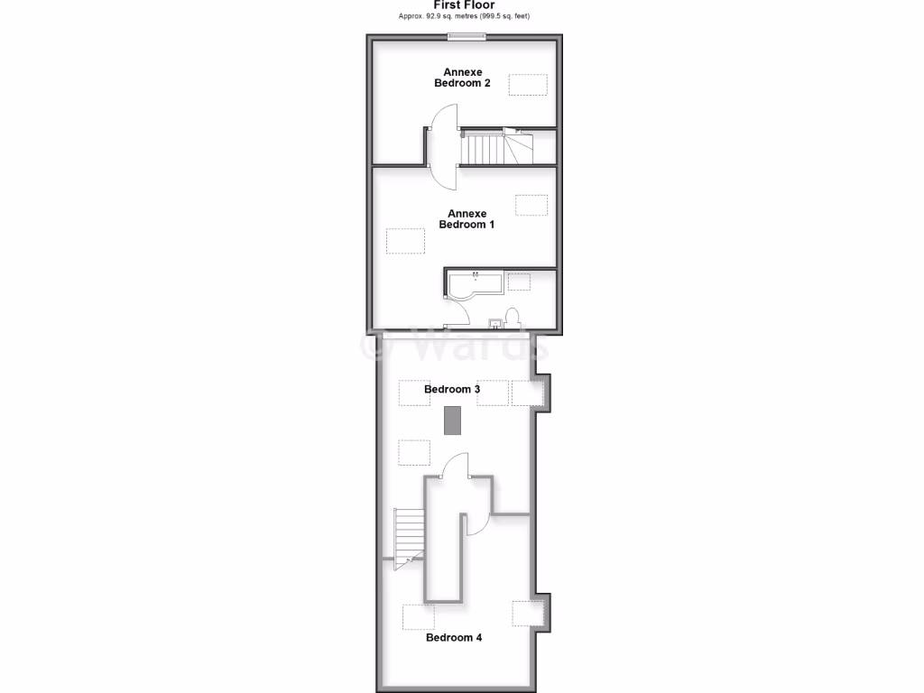
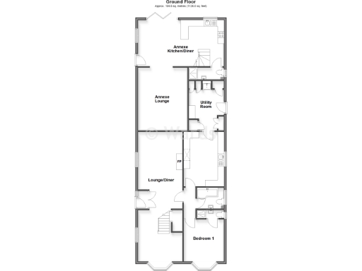
Five bedrooms including a self-contained two-bedroom annexe for separate living or income
Lifetime Lease example price £330,500 for over-60s; full market value £500,000
Driveway parking for multiple vehicles; split rear garden and decent plot size
Mid-20th century build; cavity walls as built — no confirmed insulation
Double glazing present but installation date unknown; consider window upgrades
Good broadband and mobile signal; very low local crime and affluent area
Suitable for multi-generational living or rental/airbnb income potential
Buyers must verify tenure, services and planning; refurbishment likely needed
A flexible chalet-style home with a fully self-contained two-bedroom annexe, this property suits multi-generational living or income generation. The main house offers spacious reception rooms, generous bedrooms and off-street parking for several vehicles, while the separate annexe has its own entrance, kitchen and living space — ideal for adult children, carers or short-term letting.
The property is being shown with a Home for Life Lifetime Lease example price for over-60s: the Lifetime Lease guide price here is £330,500 (market value £500,000). Only applicants aged 60+ can use Homewise’s Lifetime Lease; actual purchase price depends on age, chosen share (up to 50%) and personal circumstances. If you are not eligible or prefer a conventional purchase, the full market value applies.
Practical points to note: the house dates from the mid-20th century and walls are cavity as built with no confirmed insulation, and double glazing install dates are unknown. These factors may mean upgrading insulation or windows is worthwhile. Buyers should verify tenure, services, planning history and any fixtures before proceeding.
Set in a very low-crime, affluent small-town area, the plot provides a decent split rear garden and easy transport and local amenities. Broadband and mobile signal are strong, and the layout lends itself to comfortable retirement living or an investor wanting rental or short-let income after any necessary modernisation.
4 bedroom detached house for sale in Forson Close, Tenterden, Kent, TN30 — £495,500 • 4 bed • 2 bath • 1626 ft²
2 bedroom detached bungalow for sale in Lawn Close, Tenterden, Kent, TN30 — £357,000 • 2 bed • 1 bath • 1060 ft²
4 bedroom detached house for sale in Three Fields Road, Tenterden, Kent, TN30 — £479,000 • 4 bed • 1 bath • 1050 ft²
5 bedroom chalet for sale in Grange Crescent, St. Michaels, Tenterden, Kent, TN30 — £500,000 • 5 bed • 4 bath • 2336 ft²
2 bedroom end of terrace house for sale in Grange Road, St. Michaels, Tenterden, Kent, TN30 — £198,500 • 2 bed • 1 bath • 650 ft²
4 bedroom detached house for sale in Heather Drive, St Michaels, Tenterden, Kent, TN30 — £600,000 • 4 bed • 2 bath • 1722 ft²






















































































