**Standout Features:**
- Extended Detached Bungalow
- No forward chain; vacant possession
- Sought after residential location
- Enviable large plot size
- Double glazing and gas central heating
- Close proximity to amenities and excellent schools
- Garage and large garden
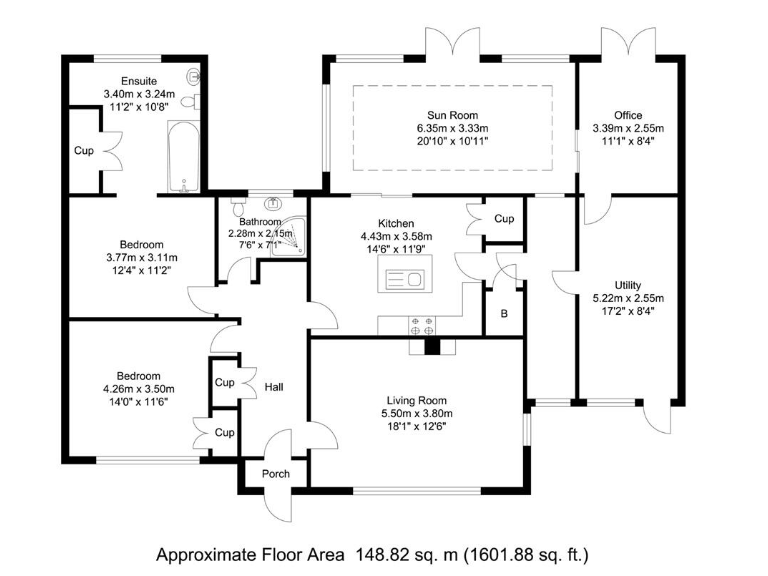
Discover the charm of this extended detached bungalow, an exceptional example nestled in a highly desirable residential area. Spanning a generous 1,601 square feet, this spacious home offers two comfortable bedrooms and two bathrooms, perfect for families or those seeking a serene retreat. Its traditional 1950s design and robust brick construction provide a warm and welcoming atmosphere, complemented by double glazing and gas central heating for year-round comfort.
Set on an enviable plot size, you'll enjoy a large garden ideal for outdoor activities or future expansion, offering significant potential for anyone interested in personalizing their space. The property boasts the added convenience of being chain-free with vacant possession, making it a hassle-free transition to your new home. Located within reach of numerous amenities and well-rated schools, including top-notch primary and secondary establishments, this bungalow caters to families seeking quality education options.
While the property is in good condition, viewers are encouraged to explore the home firsthand to fully appreciate its possibilities. Whether you're a first-time buyer, a growing family, or investing in your future, this property offers an inviting blend of comfort and potential in a secure and affluent neighborhood. Don’t miss your chance—arranging a viewing is highly recommended!
3 bedroom bungalow for sale in Hill View, York, YO31 — £270,000 • 3 bed • 1 bath • 649 ft²
3 bedroom semi-detached house for sale in Howard Link, York, North Yorkshire, YO30 5UU, YO30 — £365,000 • 3 bed • 2 bath • 1137 ft²
3 bedroom semi-detached house for sale in Pennine Close, Huntington, York, North Yorkshire, YO32 9PF, YO32 — £485,000 • 3 bed • 2 bath • 1100 ft²
2 bedroom detached bungalow for sale in Applecroft Road, York, North Yorkshire, YO31 — £328,000 • 2 bed • 1 bath • 1011 ft²
2 bedroom detached house for sale in Ashley Park Road, York, North Yorkshire, YO31 — £350,000 • 2 bed • 2 bath • 1151 ft²
2 bedroom bungalow for sale in Hopgrove Lane North, York, YO32 — £395,000 • 2 bed • 1 bath • 729 ft²














































































