YO32 9TF - 2 bedroom bungalow for sale in Hopgrove Lane North, York, Y…

View on Property Piper

2 bedroom bungalow for sale in Hopgrove Lane North, York, YO32

Summary - Hopgrove Lane North, York YO32 9TF

2 bed 1 bath Bungalow

Single-level living with garden, garage and development potential (STPP).
Detached two-bedroom bungalow on a large, private plot
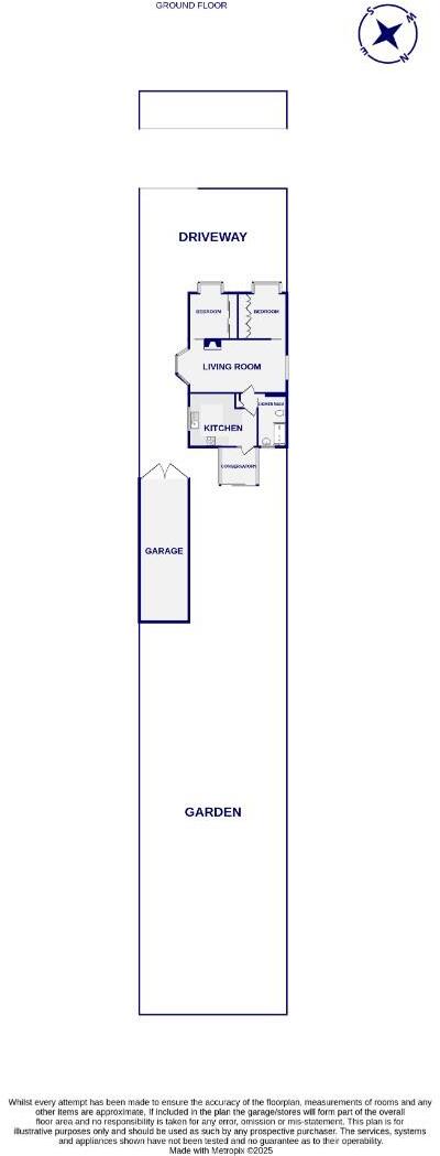
This detached two-bedroom bungalow offers single-storey living on a generous plot in a popular residential pocket of York. The home benefits from a bright bay-windowed living room, fitted kitchen, conservatory overlooking the rear garden, off-street parking and a garage — practical features ideal for downsizers seeking low-stairs living and outdoor space.

The property sits on a large, enclosed rear garden with mature hedging for privacy and a substantial paved driveway. It is offered with no onward chain and presents scope for extension or redevelopment, subject to planning permission (STPP), which will appeal to buyers wanting to add value or reconfigure the layout.

Buyers should note the home dates from the mid-20th century and will likely need some updating and maintenance; the energy rating is EPC D. Broadband speeds in the area are very slow and local crime statistics are very high — both factual issues that may affect daily convenience and security costs or decisions. Council tax is described as affordable.

Overall, this bungalow suits purchasers seeking an accessible, single-level home with garden and parking, plus the potential to improve or extend. Early viewing is recommended to assess the condition and development potential on this large plot.

Property Details

Brochure Descriptions

Image Descriptions

Floorplan Description

Rooms

Textual Property Features

Target Audience

AI Tags

Detected Visual Features

EPC Details

Nearby Schools

Nearest Bars And Restaurants

,,,,}

Nearest General Shops

,,}

Nearest Grocery shops

,,}

Nearest Supermarkets

,,}

Nearest Religious buildings

,,}

Nearest Medical buildings

,,,}

Nearest Leisure Facilities

,,,,}

Nearest Tourist attractions

,,}

Nearest Train stations

,,,,}

Nearest Bus stations and stops

,,,,}

Nearest Hotels

,,}

Tags

Local Market Stats

Similar Properties

Meta

High Res Images

Compatible Images

Low res Images

Thumbnails

Raw Images

High Res Floorplan Images

Compatible Floorplan Images

Low res Floorplan Images

FloorplanImages Thumbnail

Raw Floorplan Images