Private courtyard and handy transport links close by.
Private front entrance and direct garden access
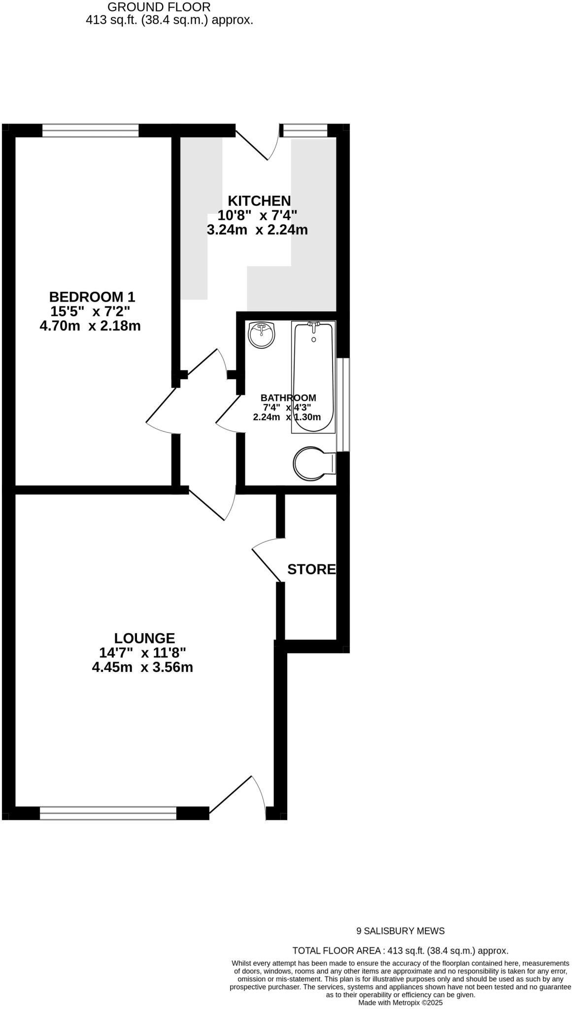
A bright ground-floor home with its own entrance, private courtyard and direct garden access — ready to move into. The lounge’s exposed floorboards and the shaker-style kitchen give a sense of character while modern fixtures keep running costs low.
At around 413 sq ft the layout is compact but well planned: a generous double bedroom overlooks the garden, a practical three-piece bathroom serves the home, and gas central heating plus double glazing were installed post-2002. On-street parking and fast broadband make this a practical base for work and leisure in Horsforth.
This property suits first-time buyers or downsizers seeking a low-maintenance single-storey home in a popular area with good schools and transport links. The lease is long (969 years remaining) with modest charges — ground rent £25pa and service/maintenance around £25pcm — and council tax is very low.
Be aware the overall size is small (413 sq ft) which limits storage and living space compared with larger flats or houses. Buyers should also inspect the courtyard surface and general decoration for any minor maintenance needs and confirm lease and charge details with their solicitor.
1 bedroom apartment for sale in Salisbury Mews, Horsforth, Leeds, LS18 — £110,000 • 1 bed • 1 bath • 440 ft²
1 bedroom flat for sale in Springfield Mount, Horsforth, Leeds, LS18 — £110,000 • 1 bed • 1 bath • 336 ft²
2 bedroom flat for sale in Cornmill View, Horsforth, Leeds, West Yorkshire, UK, LS18 — £165,000 • 2 bed • 1 bath • 696 ft²
2 bedroom flat for sale in Low Lane, Horsforth, Leeds, West Yorkshire, LS18 — £195,000 • 2 bed • 2 bath • 814 ft²
2 bedroom apartment for sale in Manor Fold, Horsforth, Leeds, West Yorkshire, LS18 — £215,000 • 2 bed • 2 bath • 674 ft²
2 bedroom apartment for sale in Newlaithes Grange, Newlaithes Road, Leeds, West Yorkshire, LS18 — £235,000 • 2 bed • 1 bath • 564 ft²














































