Compact one-bedroom with private outdoor space near Stratford transport and shops.
Long lease (939 years) and very low ground rent (£15)
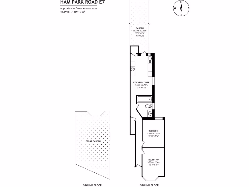
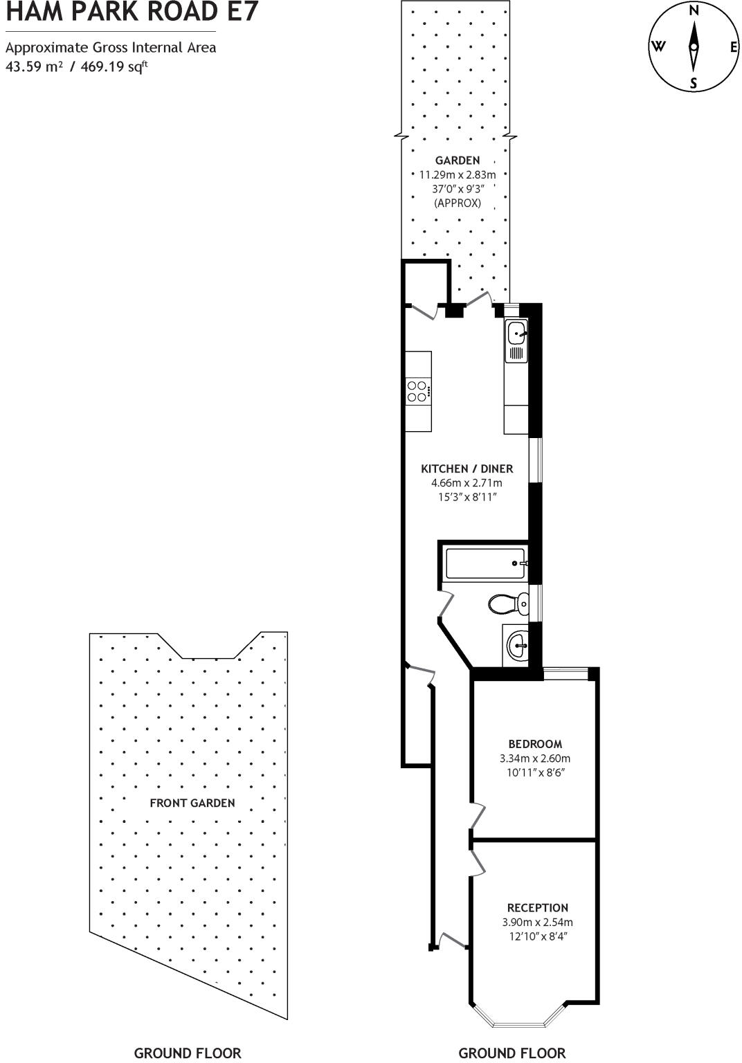
A bright one-bedroom ground-floor flat with a private garden on Ham Park Road, a short journey from Stratford’s shopping and transport hub. The apartment sits in a Victorian mid-terrace and offers an easy-living layout across approximately 469 sq ft, with high ceilings and bay windows that bring natural light into the living space.
Practical strengths include a very long lease (939 years), low ground rent (£15), cheap council tax and mains gas central heating via a boiler and radiators. Connectivity is strong — excellent mobile signal and fast broadband — making the home suitable for remote working or streaming. The location serves young families and students, with several good and outstanding schools nearby and easy access to local shops, leisure and sports facilities.
The building dates from 1900–1929 and has solid brick walls with no assumed cavity insulation, so buyers should consider potential upgrading for thermal efficiency. The property is presented in modern condition in parts but offers clear scope for further cosmetic improvements or refurbishment to add value. The surrounding area scores as deprived, which may affect longer-term capital growth and should be weighed alongside the flat’s low running costs and garden amenity.
1 bedroom flat for sale in Stork Road, London, E7 — £325,000 • 1 bed • 1 bath • 574 ft²
2 bedroom flat for sale in Park Road, Stratford, London, E15 — £375,000 • 2 bed • 1 bath • 648 ft²
1 bedroom apartment for sale in Cruikshank Road, Stratford, E15 — £325,000 • 1 bed • 1 bath • 441 ft²
1 bedroom flat for sale in St Pauls Drive E15, Stratford, London, E15 — £250,000 • 1 bed • 1 bath • 483 ft²
1 bedroom flat for sale in Liddington Road, Stratford, London, Greater London, E15 — £290,000 • 1 bed • 1 bath • 584 ft²
1 bedroom flat for sale in Caistor Park Road, London, E15 — £325,000 • 1 bed • 1 bath • 455 ft²


















































