Spacious extended home with parking and scope to add a third bedroom.
End-terrace Victorian home with extended layout
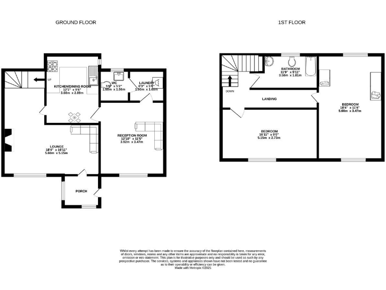
Two reception rooms plus downstairs WC/utility area
Driveway and garage space for two cars
Potential to create a third bedroom (subject to approval)
EPC C; double glazing fitted after 2002
Stone walls likely lack insulation — further works may be needed
Medium flood risk recorded for the location
Very small rear garden/plot size
33 Greenwood Vale is a roomy two-bedroom end-terrace with traditional character and useful modern upgrades. The extended layout provides two reception rooms, a modern kitchen, and a downstairs WC/utility — comfortable for a young family or a couple wanting extra living space. Off-street parking for two cars and a small garage/driveway add valuable practical convenience in a quiet Bolton pocket.
The house is chain-free and offered freehold, with an EPC rating of C and double glazing fitted after 2002. The current layout offers clear potential to create a third bedroom (subject to consents), making this suitable for growing households or investors seeking rental uplift. Local transport and several highly rated primary and secondary schools are within easy reach.
Buyers should note a few material points: the property sits in an area recorded with a medium flood risk, the plot and garden are very small, and the stone walls are likely uninsulated (typical of 1900–1929 construction) so insulation and energy-efficiency improvements may be advisable. The wider area records higher deprivation levels, though council tax is very low and broadband/mobile connectivity are good.
 2 bedroom terraced house for sale in Ashbee Street, Bolton, BL1 — £160,000 • 2 bed • 1 bath • 754 ft²
 2 bedroom terraced house for sale in Ashbee Street, Bolton, BL1 — £160,000 • 2 bed • 1 bath • 754 ft² 2 bedroom end of terrace house for sale in Brighton Avenue, Heaton, BL1 — £139,950 • 2 bed • 1 bath • 1044 ft²
 2 bedroom end of terrace house for sale in Brighton Avenue, Heaton, BL1 — £139,950 • 2 bed • 1 bath • 1044 ft² 2 bedroom end of terrace house for sale in Manchester Road, Over Hulton, Bolton, Greater Manchester, BL5 1EH, BL5 — £150,000 • 2 bed • 1 bath • 725 ft²
 2 bedroom end of terrace house for sale in Manchester Road, Over Hulton, Bolton, Greater Manchester, BL5 1EH, BL5 — £150,000 • 2 bed • 1 bath • 725 ft² 2 bedroom end of terrace house for sale in Mortfield Gardens, Bolton, Greater Manchester, BL1 3AQ, BL1 — £145,000 • 2 bed • 1 bath • 650 ft²
 2 bedroom end of terrace house for sale in Mortfield Gardens, Bolton, Greater Manchester, BL1 3AQ, BL1 — £145,000 • 2 bed • 1 bath • 650 ft² 3 bedroom terraced house for sale in Arnold Street, Bolton, BL1 — £189,950 • 3 bed • 1 bath • 1045 ft²
 3 bedroom terraced house for sale in Arnold Street, Bolton, BL1 — £189,950 • 3 bed • 1 bath • 1045 ft² 3 bedroom terraced house for sale in Bury Road, Bolton, BL2 — £150,000 • 3 bed • 1 bath • 862 ft²
 3 bedroom terraced house for sale in Bury Road, Bolton, BL2 — £150,000 • 3 bed • 1 bath • 862 ft²










































































