Affordable three-bed starter home with parking and newly refitted interiors.
Newly fitted kitchen and bathroom, ready to occupy
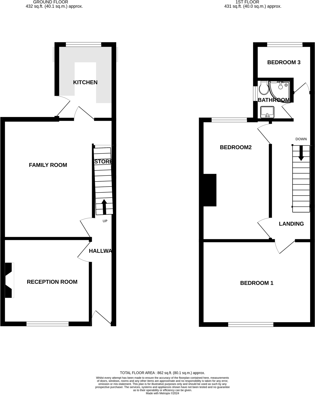
Two reception rooms plus bay-window living room, good natural light
Three bedrooms; rooms small-to-medium in size
Off-street parking nearby; low-maintenance front garden
Leasehold tenure and sold chain-free
EPC rating D; potential to improve energy efficiency
Cavity walls assumed without added insulation
Main road position — possible traffic noise and lower resale values
This elevated three-bedroom mid-terrace offers an affordable first step onto the property ladder in Bolton. The house has been newly renovated with a fitted kitchen and bathroom, two reception rooms and UPVC double glazing, creating a fresh, move-in-ready core.
Practical features include off-street parking at the end of the road, a low-maintenance front garden and a rear yard with storage. The living room’s bay window brings in good natural light and built-in wardrobes in the main bedroom add useful storage.
Buyers should note material facts: the property is leasehold, rated EPC D, and the walls are cavity-built with no known added insulation. It sits on a main road in an area classified as deprived, so there may be traffic noise and lower local market values compared with other neighbourhoods.
For first-time buyers or investors seeking a modest, low-cost home with scope to improve energy performance, this chain-free terrace is a practical option. It can be offered with a tenant in situ, allowing immediate rental income if required.
3 bedroom terraced house for sale in Arnold Street, Bolton, BL1 — £189,950 • 3 bed • 1 bath • 1045 ft²
2 bedroom terraced house for sale in Bury Road, Bolton, BL2 — £125,000 • 2 bed • 1 bath • 675 ft²
3 bedroom terraced house for sale in Bolton Road, Bolton, BL4 — £250,000 • 3 bed • 2 bath • 1260 ft²
2 bedroom terraced house for sale in Ashbee Street, Bolton, BL1 — £160,000 • 2 bed • 1 bath • 754 ft²
2 bedroom terraced house for sale in Poplar Avenue, Bolton, BL1 — £160,000 • 2 bed • 1 bath • 765 ft²
2 bedroom terraced house for sale in Bury Road, Bolton, Greater, BL2 — £140,000 • 2 bed • 1 bath • 741 ft²










































































