Spacious five-bedroom new build with high-spec finishes and energy-efficient systems.
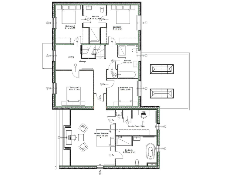
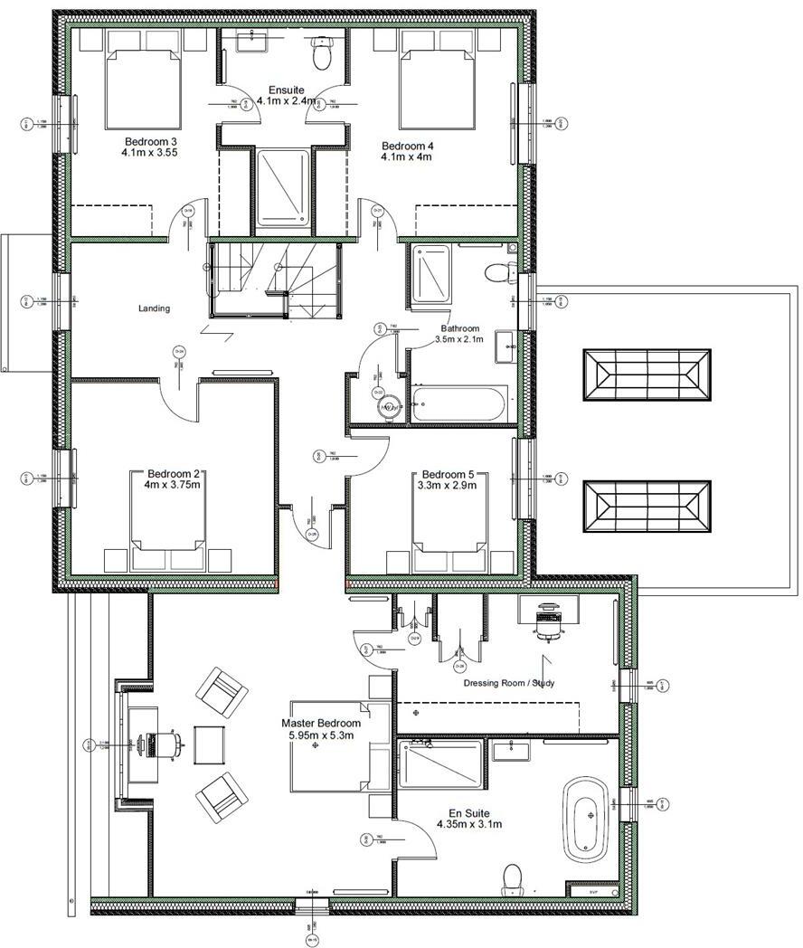
- Five double bedrooms including a large principal suite with dressing room and ensuite
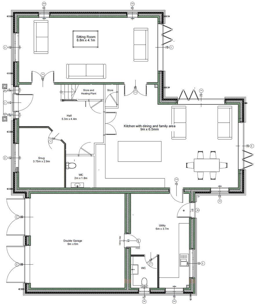
- Generous open-plan kitchen with two sets of bi-folding doors to the garden
- Air source heat pump and ground-floor underfloor heating for efficiency
- Bespoke kitchen, Porcelanosa sanitaryware, engineered oak flooring throughout
- Private driveway, integral double garage, gated communal entrance
- West-facing rear garden; landscaped and laid to turf with design consultation
- Part of a small gated development; communal maintenance responsibilities possible
- Council tax band currently unknown
Set within a select gated development on the edge of Barleythorpe, this newly built five-bedroom detached home blends contemporary comfort with traditional stone character. The ground floor features a generous open-plan living kitchen with two sets of bi-folding doors, a separate reception room, study, utility/boot room and cloakroom — all designed for family living and entertaining. High-spec finishes include a bespoke kitchen, engineered oak flooring, Porcelanosa sanitaryware and oak staircases.
Energy efficiency and modern convenience are strong selling points: an air source heat pump and underfloor heating to the ground floor reduce running costs, while Category 6 data cabling, remote-controlled electric garage doors and a 10-year structural warranty add practical reassurance. The principal bedroom is particularly spacious with a dressing room and ensuite; two further bathrooms serve the remaining bedrooms.
Externally the property sits on a decent private plot with a west-facing rear garden, gated communal entrance and a private driveway leading to an integral double garage. The plot benefits from landscaped front lawns and turf at the rear, with pedestrian access on both sides. The location offers village calm with easy access to Oakham’s amenities, strong schools and Rutland Water recreational activities.
Buyers should note this is part of a small communal development: there are communal entrance gates and shared landscaping responsibilities which may involve ongoing maintenance arrangements. Council tax band is not yet confirmed. Overall this is a high-spec new build aimed at families seeking a spacious, energy-conscious home in an affluent Rutland setting.
4 bedroom detached house for sale in Braunston Road
Oakham
LE15 6RU, LE15 — £450,000 • 4 bed • 1 bath • 1197 ft²
4 bedroom detached house for sale in Braunston Road
Oakham
LE15 6RU, LE15 — £480,000 • 4 bed • 1 bath • 1338 ft²
5 bedroom detached house for sale in Main Street, Empingham, Oakham, Rutland, LE15 — £965,000 • 5 bed • 3 bath • 2600 ft²
4 bedroom detached house for sale in Braunston Road
Oakham
LE15 6RU, LE15 — £500,000 • 4 bed • 1 bath • 1494 ft²
4 bedroom detached house for sale in Off Uppingham Road,
Oakham,
Rutland,
LE15 6GU
, LE15 — £539,995 • 4 bed • 1 bath • 1435 ft²
4 bedroom detached house for sale in Braunston Road, Oakham, LE15 — £670,000 • 4 bed • 3 bath • 1880 ft²


































