Period charm and versatile living in the heart of Oswestry, chain-free..
No onward chain; freehold Victorian townhouse
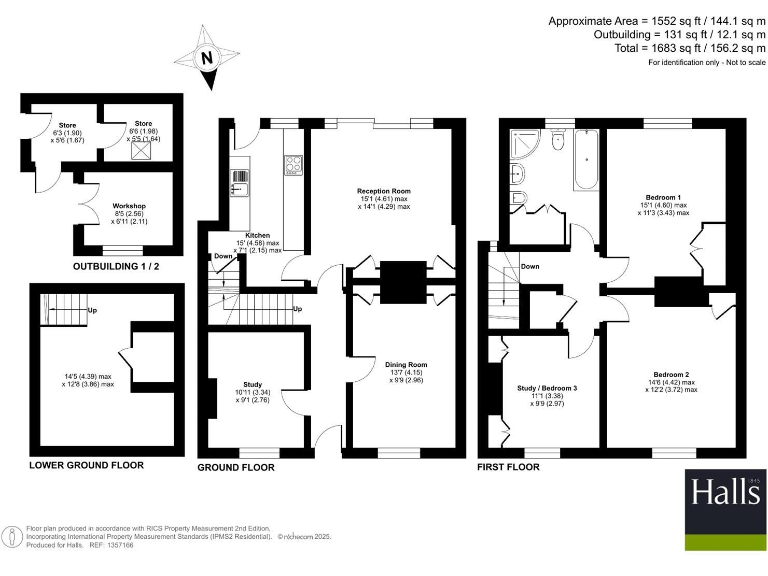
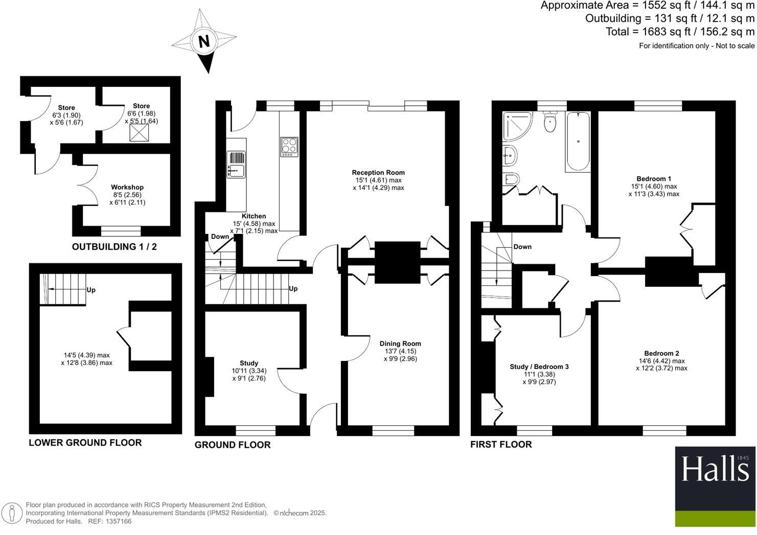
Three bedrooms, three reception rooms and cellar storage
Private enclosed rear courtyard with brick-built outhouses
Solid brick walls (pre-1900) — likely no wall insulation
Secondary glazing only; energy upgrades may be needed
Single family bathroom; scope for adding facilities
Town-centre location — walking distance to shops and schools
Excellent mobile signal and fast broadband
This attractive three-bedroom period townhouse sits in central Oswestry, offering spacious rooms, high ceilings and original sash-style windows that emphasise its Victorian character. The house is arranged over two floors with three versatile reception rooms suitable for living, dining and a home office, plus a useful cellar and brick-built outhouses off the courtyard for storage or a small workshop. Presented with no onward chain, it suits families wanting town-centre convenience or investors seeking a rentable, character property.
Practical positives include mains gas central heating with boiler and radiators, fast broadband and excellent mobile signal, making the home comfortable and well connected. The private rear courtyard is low maintenance and works well for outdoor seating, while the small footprint and town location place shops, primary and secondary schools, and local amenities within easy walking distance.
Buyers should note the property’s age and construction: solid brick walls were built before 1900 and are assumed to have no cavity insulation. The house has secondary glazing rather than full double glazing and a single family bathroom, so modernisation and energy-efficiency improvements are likely if greater thermal performance or additional bathrooms are required. The front elevation faces the main street, so there may be typical town-centre noise.
Overall this freehold townhouse offers strong central location, period character and flexible accommodation, balanced by clear renovation and upgrading potential. It will appeal to families seeking a central, characterful home or investors looking for a straightforward, chain-free purchase with scope to add value.
3 bedroom terraced house for sale in Park Avenue, Oswestry, SY11 — £239,500 • 3 bed • 1 bath • 1034 ft²
3 bedroom house for sale in York Street, Oswestry, SY11 — £140,000 • 3 bed • 2 bath • 564 ft²
3 bedroom end of terrace house for sale in Willow Street, Oswestry, SY11 — £215,000 • 3 bed • 1 bath • 1027 ft²
3 bedroom terraced house for sale in Park Avenue, Oswestry, SY11 — £270,000 • 3 bed • 1 bath • 1346 ft²
3 bedroom terraced house for sale in Roft Street, Oswestry, SY11 — £275,000 • 3 bed • 1 bath • 1220 ft²
2 bedroom terraced house for sale in York Street, Oswestry, SY11 1LX, SY11 — £115,000 • 2 bed • 1 bath


































































































