Create a bespoke five-bedroom coastal home with stunning sunset views.
Outline planning granted for a bespoke five-bedroom reverse-level dwelling
Elevated plot with breath-taking sunset and sea-facing views
Direct access to South West Coast Path; short walk to Widemouth Bay and Bude
Mains electric, water, gas and drainage reportedly available on site
Freehold tenure; large plot with garden and existing detached bungalow
Permission conditional on contamination and ecological assessments
Outline consent only — all detailed matters reserved; further approvals needed
Existing dwelling to be demolished as part of redevelopment
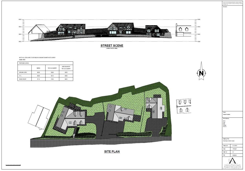
A rare coastal plot with outline planning permission sits elevated at Old Quarry, Upton, offering broad sunset and sea views across open countryside. The consent (PA25/00936) allows demolition of the existing bungalow and redevelopment with a bespoke five-bedroom, reverse-level home; all matters are reserved, so you can shape the design while following the approved principle of development.
The site is highly accessible for outdoor life — direct access onto the South West Coast Path and a short distance to Widemouth Bay and Bude — making it ideal for someone seeking a full-time coastal residence, a holiday retreat, or a self-build investment. Mains services (electric, water, gas, drainage) are reported available and the freehold tenure simplifies purchase arrangements.
Buyers should note planning is outline only and subject to standard conditions. Contamination assessments and ecological protection measures are required and will add time and cost before building starts. The existing dwelling must be demolished under the permission and detailed design, landscaping and parking will be subject to further reserved matters approval.
Practical local facts: broadband speeds are fast, mobile signal is average, and the area suits a mix of retirees and rural employment. Nearby schools include a ‘Good’ rated secondary and a primary rated as ‘Requires improvement’. Overall, this large, private plot gives a rare opportunity to deliver a purpose-designed coastal home while recognising the additional survey, design and planning work still required.
4 bedroom detached house for sale in Poundstock, Bude, Cornwall, EX23 — £350,000 • 4 bed • 1 bath
Plot for sale in Wainhouse Corner, Nr Bude, EX23 0AZ - Land With Planning Permission Suitable For A Detached Dwelling, EX23 — £100,000 • 1 bed • 1 bath
Plot for sale in Poundstock, Bude, Cornwall, EX23 — £575,000 • 1 bed • 1 bath
Plot for sale in Hillhead, Stratton, Bude, Cornwall, EX23 — £125,000 • 1 bed • 1 bath
Plot for sale in Old Drovers Way, Stratton, Bude, Cornwall, EX23 — £165,000 • 1 bed • 1 bath • 917 ft²
Plot for sale in Ocean View Road, Bude, Cornwall, EX23 — £850,000 • 1 bed • 1 bath


























