**Standout Features:**
- Building plot with planning permission for a detached four-bedroom home
- Open plan living space, master bedroom with en-suite, and study
- Convenient parking for two cars
- Walking distance to amenities and Falmouth Marina
- Future views towards the marina from the property
- Chain-free sale
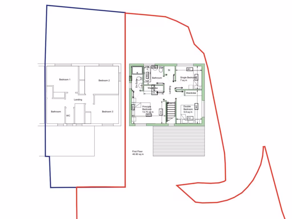
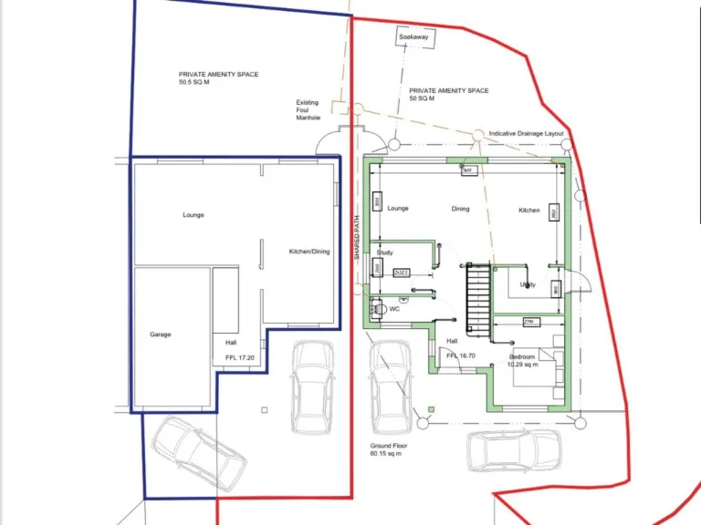
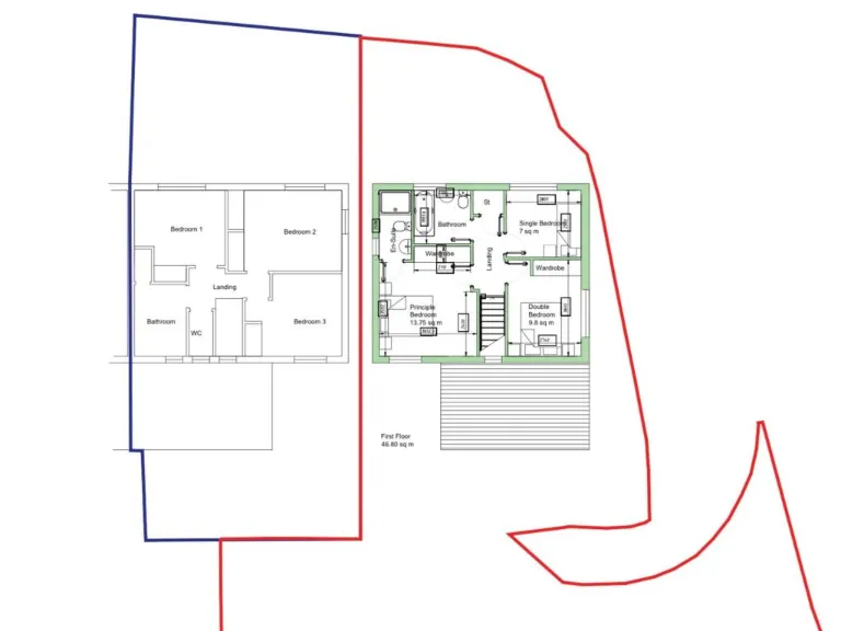
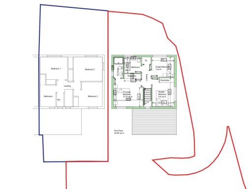
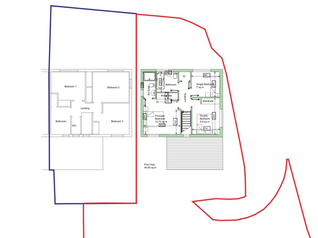
Explore a unique opportunity to design and construct your dream home in the vibrant community of Falmouth. This centrally located plot with existing planning permission (Reference: PA24/08387) allows you to create a spacious four-bedroom dwelling featuring a generous open-plan living area, study, utility room, and a convenient ground floor double bedroom.
Imagine life just a short stroll from local amenities and Falmouth Marina, making it ideal for families or those looking to invest in a flourishing area. The home will comprise well-appointed bedrooms, including a master suite with an en-suite shower, ensuring comfort and privacy.
While the local area offers a mix of historical charm and modern convenience, it’s worth noting that some aspects of the community's profile show it may face economic challenges. Nevertheless, with average crime rates and excellent mobile connectivity, this location combines practicality with potential. Don't miss out on this chance to create a personalized masterpiece in a desirable area—act swiftly, as opportunities like this don't last long!
Land for sale in Development Opportunity, Marine Crescent, Falmouth, TR11 — £400,000 • 1 bed • 1 bath • 539 ft²
Plot for sale in 30 Beacon Road, Falmouth, TR11 — £65,000 • 1 bed • 1 bath
Plot for sale in Grove Hill, Mawnan Smith, TR11 — £335,000 • 3 bed • 3 bath
Land for sale in Bar Road, Falmouth, Cornwall, TR11 — £280,000 • 1 bed • 1 bath
Plot for sale in BUILDING PLOT - Menagissey, Mount Hawke, Near Truro, TR4 — £250,000 • 1 bed • 1 bath
Plot for sale in Falmouth, TR11 — £800,000 • 1 bed • 1 bath • 3971 ft²






























