EN4 0JP - 4 bedroom detached house for sale in Beech Hill, Barnet, EN4

View on Property Piper

4 bedroom detached house for sale in Beech Hill, Barnet, EN4

Summary - 40 BEECH HILL BARNET EN4 0JP

4 bed 3 bath Detached

**Standout Features:**
- Prime Hadley Wood location
- Detached house with Georgian Revival architecture
- Original period features throughout
- Large south-west facing rear garden
- Scope to extend or redevelop (subject to planning permission)
- Off-street parking and garage
- Chain free sale
- Multiple reception rooms and ample space needing modernisation

**Potential Downsides:**
- Requires full renovation
- Average mobile signal and broadband speeds

This substantial detached home in Hadley Wood presents an exceptional opportunity for buyers looking to invest in a property with incredible potential. Nestled behind secure gates and surrounded by mature greenery, this residence offers a perfect balance of privacy and tranquility. Featuring classic Georgian Revival architecture, it comprises multiple reception rooms, three to four bedrooms, and a family bathroom—ideal for a savvy buyer with vision to create their dream living space.

The large south-west facing rear garden is perfect for outdoor entertaining and offers ample landscaping possibilities. Although it requires complete renovation, the property is chain free, allowing for a straightforward purchase. With top-rated schools in close proximity, and excellent transport links including Hadley Wood Station and Cockfosters Underground nearby, this location is not just serene but also family-friendly and highly desirable. Don't miss this unique chance to turn a characterful property into a contemporary family haven—properties like this are rare and won't last long!

Property Details

Brochure Descriptions

Image Descriptions

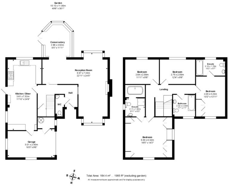
Floorplan Description

Rooms

Textual Property Features

Detected Visual Features

EPC Details

Nearby Schools

Nearest Bars And Restaurants

,,,,}

Nearest General Shops

,,}

Nearest Grocery shops

,,}

Nearest Supermarkets

,,}

Nearest Religious buildings

,,}

Nearest Medical buildings

,,,}

Nearest Airports

,}

Nearest Leisure Facilities

,,,,}

Nearest Tourist attractions

,,}

Nearest Train stations

,,,,}

Nearest Bus stations and stops

,,,,}

Nearest Hotels

,,}

Tags

Local Market Stats

Similar Properties

Meta

High Res Images

Compatible Images

Low res Images

Thumbnails

Raw Images

High Res Floorplan Images

Compatible Floorplan Images

Low res Floorplan Images

FloorplanImages Thumbnail

Raw Floorplan Images