**Standout Features:**
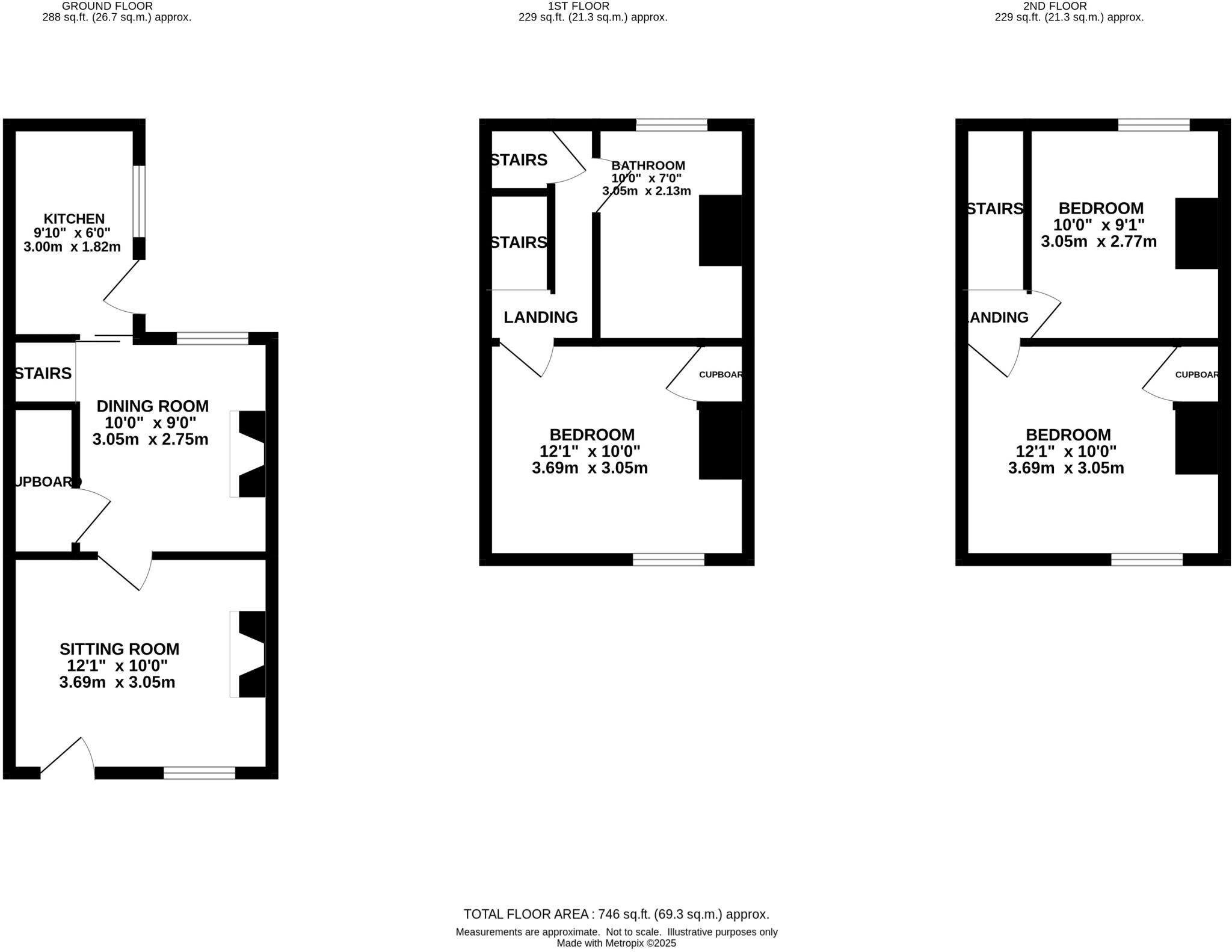
- Three-bedroom, three-storey mid-terrace house with 746 sq ft of space.
- Requires complete refurbishment, presenting a blank canvas for investors or builders.
- Tucked away on a traffic-free street, just under a mile from the town center.
- Freehold tenure with low council tax (Band A).
- Rear yard with outside WC.
**Potential Concerns:**
- Condition requires significant renovation efforts; EPC Rating is F.
- Solid brick walls, assumed to have no insulation, may require updates.
- Situated in an area marked by high crime and very high deprivation.
This spacious three-bedroom mid-terrace property represents a fantastic opportunity for investors or first-time buyers looking for a renovation project. Positioned in a quiet street yet conveniently close to local amenities and public transport, this property offers ample living space across three levels. The house is a classic fixer-upper needing a total makeover—ideal for those with vision and determination to create a modern family home or a profitable rental in a challenging market.
While the high crime and area's deprivation may concern some, the home's location benefits from quick access to the town center and essential services. With a guide price between £55,000 to £65,000, this probate sale will be going to auction on July 30, 2025. Don't miss your chance to secure this property, transforming it into a lucrative investment or charming residence—such opportunities don't last long! Schedule a viewing today to explore the potential this home has to offer.
3 bedroom terraced house for sale in 2 Queens Square, Regent Road, Great Yarmouth, Norfolk NR30 2AG, NR30 — £130,000 • 3 bed • 1 bath • 1086 ft²
2 bedroom end of terrace house for sale in 76 Lancaster Road, Great Yarmouth, Norfolk NR30 2NN, NR30 — £60,000 • 2 bed • 1 bath • 603 ft²
3 bedroom end of terrace house for sale in 23 Admiralty Road, Great Yarmouth, Norfolk NR30 3DQ, NR30 — £70,000 • 3 bed • 1 bath • 1043 ft²
3 bedroom terraced house for sale in 77 Lancaster Road, Great Yarmouth, Norfolk NR30 2NN, NR30 — £100,000 • 3 bed • 1 bath • 4124 ft²
4 bedroom terraced house for sale in 133 Southtown Road, Great Yarmouth, Norfolk NR31 0LA, NR31 — £90,000 • 4 bed • 1 bath • 1209 ft²
2 bedroom terraced house for sale in 11 Nelson Road North, Great Yarmouth, Norfolk NR30 2AS, NR30 — £70,000 • 2 bed • 1 bath • 808 ft²














































































