Auction-priced renovation near town centre — strong rental potential for investors.
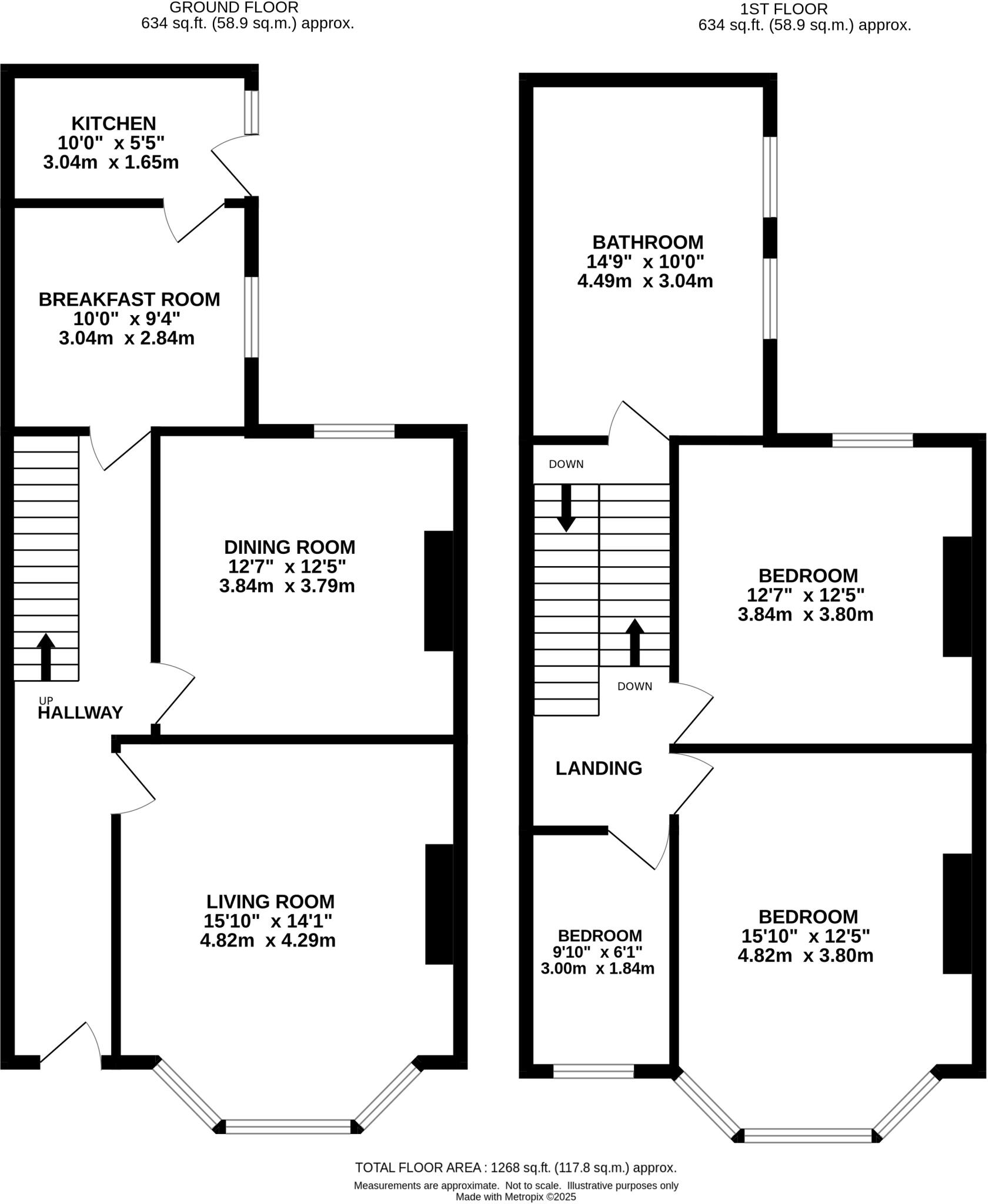
- Three-bedroom Victorian terrace with bay front and high ceilings
- Three reception rooms plus kitchenette; flexible layout
- Enclosed front garden and rear courtyard with pedestrian access
- Requires full refurbishment; dated glazing and likely uninsulated walls
- Freehold; sold by livestream auction on 22 Oct 2025
- EPC rating D; boiler and mains gas heating present
- Area: very deprived with very high crime — affects desirability
- Administration fee £1,200 and buyer’s premium £960 on exchange
A spacious Victorian bay-fronted terrace offering three bedrooms, three reception rooms and a courtyard garden. The property is solid-built with high ceilings and period character but requires full refurbishment to realise its potential. Its size and layout suit conversion, rental or family occupation once renovated.
Sold freehold by livestream auction on Wednesday 22 October 2025, this home presents a clear value play for investors or handy owner-occupiers. The area has good transport links, local amenities and several well-rated schools nearby, supporting rental demand. Broadband and mobile signals are strong.
Buyers should budget for renovation work: the house has older double glazing, likely uninsulated solid walls, and dated services. The area is very deprived with very high recorded crime rates — a material consideration for owner-occupiers and a factor for lettings and insurance. An EPC rating of D is noted and viewings are being arranged.
The sale is subject to auction conditions. An administration fee of £1,200 (inc. VAT) and a buyer’s premium of £960 (inc. VAT) are payable on exchange; see the legal pack for full disbursements. This is a practical opportunity for those able to manage refurbishment and navigate an auction purchase.
3 bedroom terraced house for sale in 4 Stanley Terrace, Middle Market Road, Great Yarmouth NR30 2EG, NR30 — £15,000 • 3 bed • 1 bath • 910 ft²
2 bedroom end of terrace house for sale in 51 South Market Road, Great Yarmouth, Norfolk NR30 2BT, NR30 — £60,000 • 2 bed • 1 bath • 677 ft²
2 bedroom terraced house for sale in 11 Lancaster Square, Great Yarmouth, Norfolk NR30 2JZ, NR30 — £65,000 • 2 bed • 1 bath • 936 ft²
7 bedroom terraced house for sale in 47 London Road South, Lowestoft, Suffolk NR33 0AS, NR33 — £160,000 • 7 bed • 1 bath • 1790 ft²
3 bedroom semi-detached house for sale in 68 Yarmouth Road, Caister-On-Sea, Great Yarmouth, Norfolk NR30 5BT, NR30 — £90,000 • 3 bed • 1 bath • 786 ft²
2 bedroom ground floor flat for sale in Rodney Road, Great Yarmouth, NR30 — £60,000 • 2 bed • 1 bath • 724 ft²


























































