Vacant possession; probate sale with online auction on 10 Sept 2025
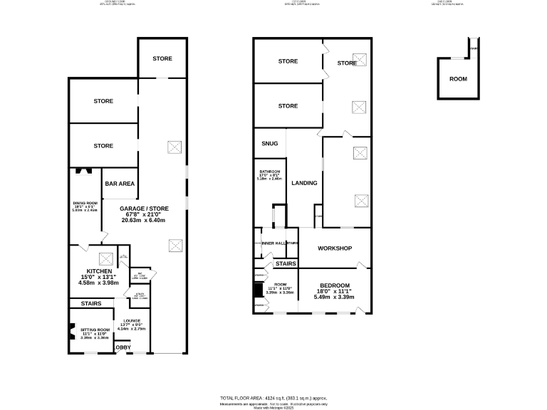
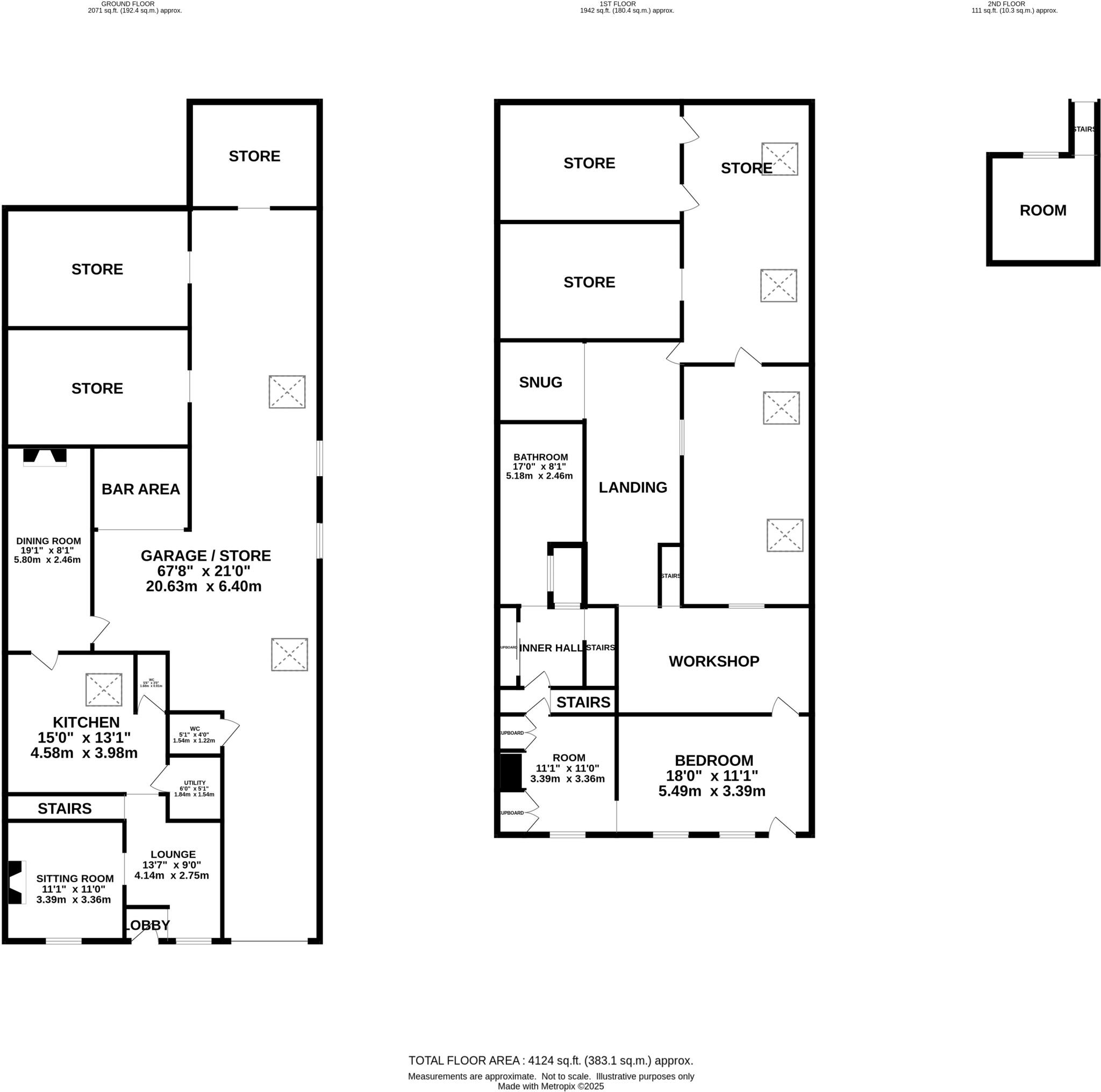
Extremely large interior with multiple outbuildings and storage spaces
Garage/carport with electric garage door; off-street parking provided
Solar panels and battery storage; gas boiler and radiators present
Solid-brick Victorian build; likely lacks wall insulation—modernise needed
Area classified very deprived with very high crime rates—consider security
Auction sale incurs admin fee £1,200 and buyer’s premium £960 on exchange
Development potential subject to consents; requires full refurbishment
A large, characterful three-bedroom Victorian mid-terrace offered freehold and sold by online livestream auction on 10 September 2025. The house has been in the same ownership for nearly 50 years and is offered with vacant possession, a garage/carport providing off-road parking, solar panels with battery storage, gas central heating and multiple outbuildings that create generous storage and scope for additional living space.
The property is best suited to investors, developers or buyers seeking a renovation project: the building is solid-brick Victorian construction with assumed no cavity insulation, mixed-age double glazing and requires modernization throughout. There is clear potential to reconfigure or extend the rear range into extra bedrooms or rental units, subject to planning and building regulations.
Important practical points: the area is classified as very deprived with very high crime levels, and the sale is a probate auction requiring payment of an administration fee (£1,200 inc VAT) and a buyer’s premium (£960 inc VAT) on exchange. The vendor’s legal pack should be reviewed for further disbursements and any restrictions. The EPC rating is D and council tax band A.
Summary: this is a large, flexible period property with development upside close to Great Yarmouth town centre and the seafront. It offers immediate vacant possession and substantial scope for refurbishment or short-term rental conversion, but it requires investment to modernise, improve insulation and address local area challenges before achieving full market rental or resale values.































































































