Secluded five-acre plot with approved barn conversion and estuary views—ideal for developers or bespoke homeowners..
- Approximately five acres of land with expansive Severn Estuary views
- Class Q steel-frame barn with planning permission for two-storey dwelling
- Planning condition: remove attached open steel-framed outbuilding
- Mains water and electricity available; purchaser arranges connections
- Private, secluded hamlet location with ample off-street parking
- Access via country lane; public footpath runs through entrance field
- Rural utilities and ongoing maintenance responsibilities
- Option to purchase extra adjoining acreage by separate negotiation
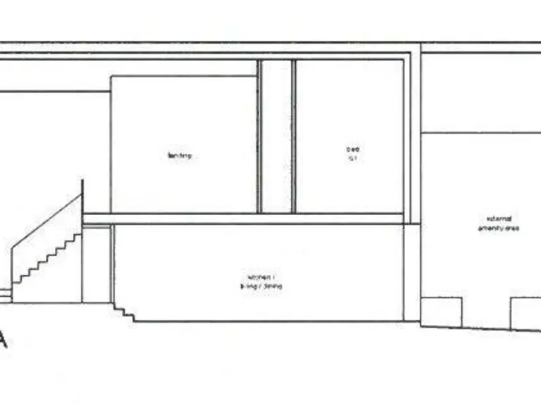
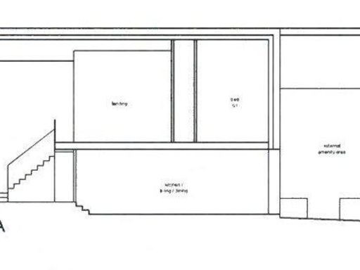
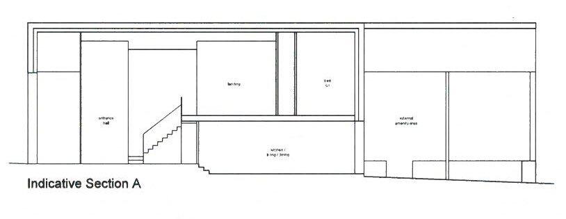
A rare five-acre parcel near Boughspring with a Class Q steel-frame barn and full planning permission (Forest of Dean Council, 20 May 2024, P0620/24/PQ3PA) for conversion into a substantial two-storey dwelling. The site sits in a private, elevated position in Tidenham parish with far-reaching views toward the Severn Estuary and strong potential for a high-spec countryside home or a development project. The plot is freehold and currently accessed via a country lane with ample off-street parking and room for a sweeping driveway.
The approved scheme proposes a large open-plan living/kitchen/diner, multiple reception rooms, pantry, utility and boot room at ground level, and four en-suite double bedrooms plus family bathroom on the first floor (principal with walk-in dressing room). Planning includes a covered seating area and requires removal of an attached open steel-framed outbuilding as a condition of approval. Mains water and electricity are available for connection, but the purchaser must make their own enquiries and bear connection costs.
This is a practical opportunity for an experienced developer or buyer seeking a bespoke rural home: substantial building footprint, expansive grounds and attractive views provide flexibility to deliver a standout property. Practical considerations include agricultural access across grazing land (public footpath present), upkeep of the large grounds, and rural utilities/connectivity responsibilities. Additional surrounding acreage may be available by separate negotiation.
Plot for sale in Taynton, GL19 — £595,000 • 1 bed • 1 bath • 8000 ft²
Plot for sale in Marstow, HR9 — £275,000 • 1 bed • 1 bath
Land for sale in Hewelsfield and Brockweir, Brockweir Common, Brockweir, Chepstow, NP16 — £250,000 • 1 bed • 1 bath
4 bedroom farm house for sale in Miss Graces Lane, Tidenham Chase, Chepstow, NP16 — £2,200,000 • 4 bed • 2 bath • 9004 ft²
3 bedroom barn conversion for sale in Newchurch, Chepstow, Monmouthshire, NP16 — £875,000 • 3 bed • 3 bath • 2023 ft²
Land for sale in Brockweir Common, Chepstow, NP16 — £595,000 • 1 bed • 1 bath • 2800 ft²






















































































































