Implemented planning and large paddocks ideal for livery or commercial equine ventures.
- Ring‑fenced equestrian holding of 91.62 acres (37.08 ha)
- Implemented planning for visitor centre, shop and stables
- Additional 2023 consent implemented; equestrian building not built
- Two‑bed barn conversion plus attached two‑bed annexe (was four bed)
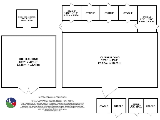
- 23 post‑and‑rail paddocks, 9 field shelters, good internal access
- Mains water/electricity, private drainage to septic tank
- Internal stabling excluded from sale; may be separately negotiated
- Tenure detail not specified; budget for completion costs
Sheepcot Farm is a rare, fully ring‑fenced equestrian holding of approximately 91.62 acres in an elevated, private position overlooking open Gloucestershire countryside. The core comprises a spacious two‑bed barn conversion with an attached two‑bed annexe (previously a four‑bed home), multiple steel portal buildings, recent stable lean‑to, and extensive well‑fenced paddocks with field shelters and water points.
Significant value lies in the implemented planning consents: a partially completed visitor centre/shop/café conversion of the main dwelling and consent for pony stables, an equestrian training building and manure compound. Consents have been implemented but key equestrian buildings (equestrian building and manure store) remain to be constructed, offering scope to complete and expand an operational business or to vary for alternative rural enterprise uses.
The land is in good heart, arranged in regular, level paddocks ideal for grazing, livery or fodder production, with excellent internal access and outriding from the doorstep. Practical features include mains water and electricity, private drainage to septic, a mix of electric and oil heating plus woodburners, and low local crime in an affluent, well‑connected rural area.
Notable drawbacks: tenure details are not specified in these particulars, some consented works remain unfinished, and internal stabling listed as excluded may require separate negotiation. Heating arrangements are mixed and the drainage is private; purchasers should allow for completion costs to finish the consented scheme or to revert the accommodation back to full residential use.
Land for sale in Llwyn-y-Celyn Farm Lot 3, Shirenewton, Chepstow, NP16 6BU, NP16 — £675,000 • 1 bed • 1 bath • 3385 ft²
4 bedroom detached house for sale in Equestrian Facility - Stroat, Chepstow, NP16 — £779,750 • 4 bed • 3 bath • 2088 ft²
7 bedroom detached house for sale in Ley Lane, Minsterworth, Gloucestershire, GL2 8JU, GL2 — £1,100,000 • 7 bed • 4 bath • 5598 ft²
Land for sale in Llwyn-y-Celyn Farm Lot 5, Shirenewton, Chepstow, NP16 6BU, NP16 — £125,000 • 1 bed • 1 bath
Land for sale in Llwyn Y Celyn Farm Lot 4, Shirenewton, Chepstow, NP16 6BU, NP16 — £150,000 • 1 bed • 1 bath
5 bedroom detached house for sale in Alvington, GL15 — £1,995,000 • 5 bed • 3 bath • 3477 ft²






































































































































































































































































































