**Standout Features:**
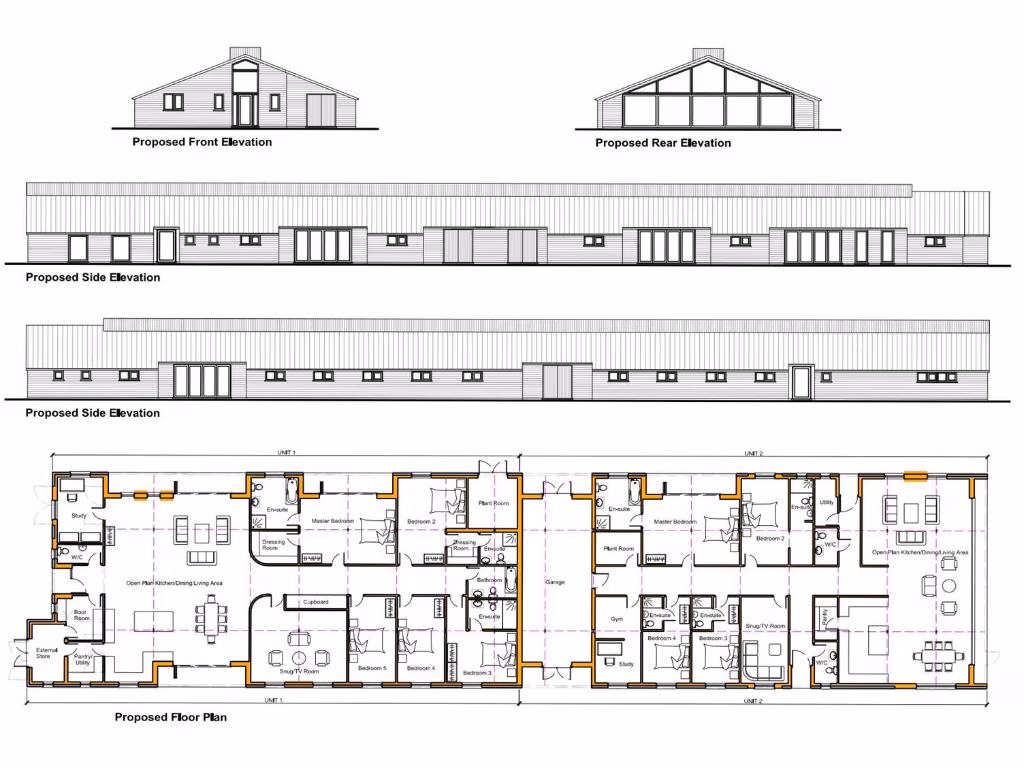
- Full planning permission granted for conversion into two semi-detached luxury homes (one five-bedroom, one four-bedroom).
- Approximately 8,000 square feet of space in total; each dwelling will be around 4,000 square feet.
- Set in a scenic Gloucestershire countryside location with around four acres of land.
- Built in 2016, presenting excellent structural integrity and potential for modernization.
- Off-street parking available for multiple vehicles.
**Potential Concerns:**
- No current services connected; buyers will need to arrange services.
- Planned areas for drainage, mains water, and electricity are not yet hooked up.
- Management company to be established for communal areas after barn sales complete.
**Summary:**
This is a rare opportunity to acquire a substantial barn with full planning permission, perfectly positioned in the picturesque Gloucestershire countryside. Originally built in 2016, the expansive structure spans approximately 8,000 square feet and is set to be transformed into two luxurious homes—one featuring five bedrooms and the other four. The generous four-acre plot offers ample room for outdoor activities, providing a tranquil setting away from the urban rush while still being close to essential amenities.
Ideal for families or investors looking for a unique project, this property has incredible renovation potential, allowing you to craft elegant living spaces in an idyllic setting. While some infrastructure work is needed to connect vital services, the groundwork for drainage and mains water connections is already laid out, setting a solid foundation for future development. Don’t miss out on this exclusive opportunity to create your dream homes in the heart of nature—properties like this don't stay on the market for long!
Plot for sale in Taynton, GL19 — £500,000 • 5 bed • 1 bath • 1358 ft²
Plot for sale in Boughspring, Tidenham, Chepstow, NP16 — £700,000 • 1 bed • 1 bath
4 bedroom semi-detached house for sale in GL2 7AL, GL2 — £575,000 • 4 bed • 3 bath • 2102 ft²
4 bedroom barn conversion for sale in Southend Lane, Newent, GL18 — £895,000 • 4 bed • 2 bath • 3300 ft²
5 bedroom country house for sale in Church Lane, Moreton Valence, GL2 — £1,100,000 • 5 bed • 3 bath • 3500 ft²
Detached house for sale in Leominster Road, Dymock, Gloucestershire, GL18 — £250,000 • 1 bed • 1 bath


































































