Substantial conversion opportunity with sea views, garage and generous parking close to Whitstable station.
Sea views from upper floors and terrace
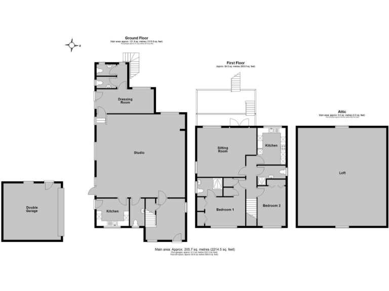
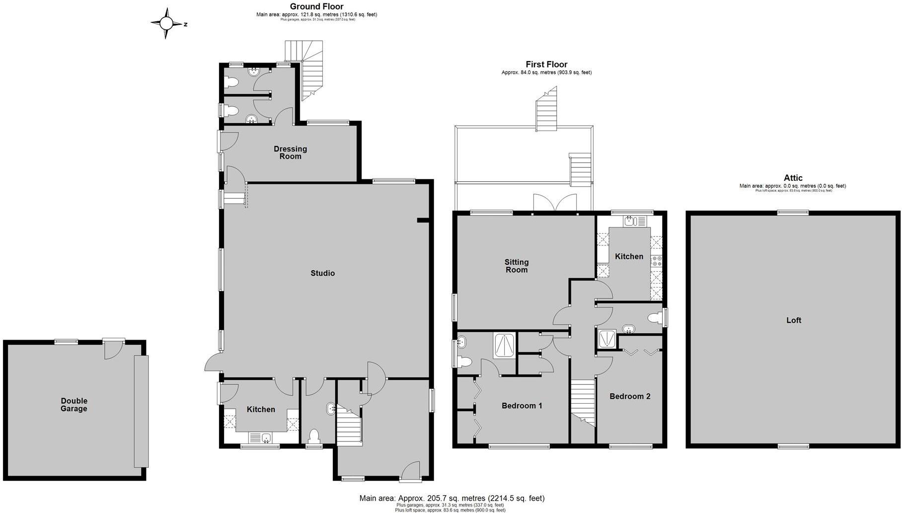
Large overall floor area ~2,215 sq ft
Change of use to residential granted (CA/24/02278)
Vacant possession and no onward chain
Detached double garage and abundant off-street parking
Ground floor is commercial — requires conversion to residential
Cavity walls with no confirmed insulation; refurbishment needed
Modest rear garden size relative to plot
Set on an elevated plot in highly desirable Tankerton, this substantial freehold building offers a rare chance to create an exceptional family home with far-reaching sea views. The property currently combines a large ground-floor commercial studio and a two-bedroom maisonette above; change of use to residential has already been granted (CA/24/02278), and the site is offered with vacant possession and no onward chain. Generous internal footprint (approx. 2,215 sq ft) and a large loft present clear scope to reconfigure and extend living accommodation across three floors.
Outdoor space and practical assets are strong selling points: a detached double garage, substantial forecourt parking from Teynham Road, balcony and terrace off the main living level, and a lawned rear garden provide flexible external living and parking options. The location is especially convenient — 400 metres from Whitstable station, close to Tankerton slopes and seafront, with excellent local schools and town amenities within easy reach.
Buyers should note this is a renovation and conversion opportunity rather than a finished house. The ground floor is presently commercial (dance studio, cloakrooms, kitchen and dressing room) and will require fitting out to residential standard. The building dates from the 1930s–40s and cavity walls are recorded with no confirmed insulation; refurbishment works, plumbing/heating updates and cosmetic improvements will be needed to realise the property’s full potential. The rear garden is modest in scale compared with the overall plot. Interested parties should verify planning and building regulations with Canterbury City Council before undertaking works.
For families seeking long-term space and versatility in a prime coastal setting, or investors aiming to add value through conversion and refurbishment, this property offers scale, location and permitted residential change of use — a project with tangible upside when sympathetically reconfigured.
Commercial property for sale in Castle Road, Tankerton, Whitstable, CT5 — £750,000 • 2 bed • 2 bath • 2215 ft²
2 bedroom detached house for sale in St. Swithins Road, Whitstable, CT5 — £675,000 • 2 bed • 1 bath • 1202 ft²
4 bedroom detached house for sale in St. Annes Road, Tankerton, Whitstable, CT5 — £950,000 • 4 bed • 2 bath • 1598 ft²
4 bedroom detached house for sale in Manor Road, Tankerton, Whitstable, CT5 — £535,000 • 4 bed • 2 bath • 1183 ft²
5 bedroom detached house for sale in Marine Parade, Whitstable, CT5 — £1,750,000 • 5 bed • 3 bath • 3379 ft²
4 bedroom detached house for sale in Tower Road, Tankerton, Whitstable, CT5 — £975,000 • 4 bed • 2 bath • 1828 ft²






























































































