Large freehold building with consent for residential conversion, sea views and double garage—vacant and chain free..
Change-of-use to residential granted (CA/24/02278)
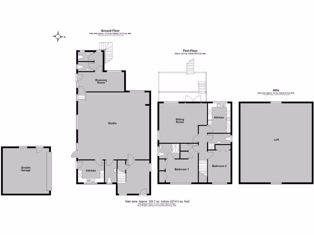
A rare freehold opportunity on elevated Castle Road — a substantial detached building with change-of-use to residential already granted (CA/24/02278). The property sits moments from Tankerton slopes, Whitstable seafront and the station, offering far-reaching sea-facing aspects from upper floors, a large loft with conversion potential, and ample off-street parking with a detached double garage.
The current layout includes a large ground-floor commercial studio plus a spacious two-bedroom maisonette above with private entrance, balcony and terrace. With generous room volumes across three levels and a large plot, the building is well suited to conversion into an exceptional family home, multi-room residence or continued investment use (subject to consents).
Buyers should note this is a former commercial building requiring residential refit works to complete the conversion and modernisation. Construction dates from the 1930s–40s with cavity walls assumed uninsulated; expect upgrading to insulation, services and interior finishes. The garden is modest compared with the overall plot and formal outdoor space is limited relative to the building size.
Sold with vacant possession and no onward chain, this property will suit an owner-occupier family seeking a large, flexible home near the seafront or an investor/developer able to manage refurbishment and conversion costs to unlock substantial value.
2 bedroom detached house for sale in Castle Road, Tankerton, Whitstable, CT5 — £750,000 • 2 bed • 2 bath • 2215 ft²
4 bedroom detached house for sale in St. Annes Road, Tankerton, Whitstable, CT5 — £950,000 • 4 bed • 2 bath • 1598 ft²
2 bedroom detached house for sale in St. Swithins Road, Whitstable, CT5 — £675,000 • 2 bed • 1 bath • 1202 ft²
5 bedroom detached house for sale in Marine Parade, Whitstable, CT5 — £1,750,000 • 5 bed • 3 bath • 3379 ft²
6 bedroom detached house for sale in Marine Parade, Tankerton, Whitstable, CT5 — £2,250,000 • 6 bed • 5 bath • 3138 ft²
2 bedroom apartment for sale in Gloucester Road, Tankerton, Whitstable, CT5 — £350,000 • 2 bed • 1 bath • 702 ft²






























































































