**Standout Features:**
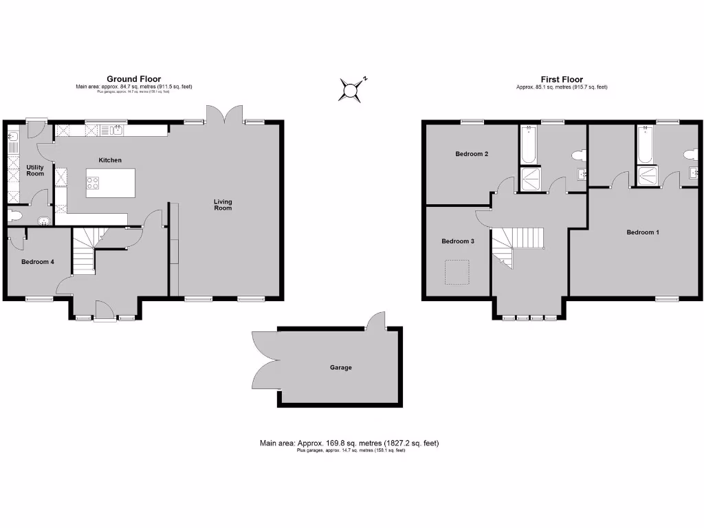
- Spacious 4-bedroom, 2-bathroom detached home
- Prime central Tankerton location, 300 meters from Whitstable beach
- Open-plan living space for comfortable family life
- Expansive 78ft west-facing garden, perfect for entertaining
- Off-street parking and detached garage
- Excellent proximity to amenities and transport, including Whitstable Station
This beautifully presented detached family home is nestled in a desirable cul-de-sac in central Tankerton, offering convenience and comfort just a stone's throw from local shops and the beach. With approximately 1,827 sq ft of well-designed living space, the ground floor features a generous open-plan living area seamlessly connecting to a modern kitchen, along with a utility room, a double bedroom, and a cloakroom. The first floor boasts three additional double bedrooms, with the principal bedroom benefiting from an en-suite bathroom.
The outdoor space is equally impressive, featuring a meticulously landscaped 78ft west-facing garden ideal for leisure and gatherings, accentuated by multiple seating areas including a spacious deck. With a gravel driveway leading to the detached garage, the property provides ample parking and storage.
While the home showcases stunning contemporary design and quality materials, it is worth noting that prospective buyers may want to consider ongoing maintenance for the garden and the electrical heating system. This home combines character with modern living in an affluent and vibrant locale, making it perfect for families or investors keen on rental potential. Act quickly to secure this exceptional property in a sought-after area where lifestyle and location beautifully intersect.
5 bedroom detached house for sale in Northwood Road, Tankerton, Whitstable, CT5 — £900,000 • 5 bed • 2 bath • 2139 ft²
3 bedroom detached house for sale in Tankerton Road, Tankerton, Whitstable, CT5 — £465,000 • 3 bed • 1 bath • 1310 ft²
5 bedroom detached house for sale in Strangford Road, Tankerton, Whitstable, CT5 — £1,050,000 • 5 bed • 3 bath • 1978 ft²
4 bedroom detached house for sale in Northwood Road, Tankerton, Whitstable, CT5 — £695,000 • 4 bed • 2 bath • 1387 ft²
2 bedroom detached house for sale in St. Swithins Road, Whitstable, CT5 — £675,000 • 2 bed • 1 bath • 1202 ft²
3 bedroom detached house for sale in Fitzroy Road, Tankerton, Whitstable, CT5 — £625,000 • 3 bed • 1 bath • 1023 ft²














































































































