Four-bedroom terrace ideal for student rentals or a renovation project.
For sale by auction 10 December 2025, guide £150,000+
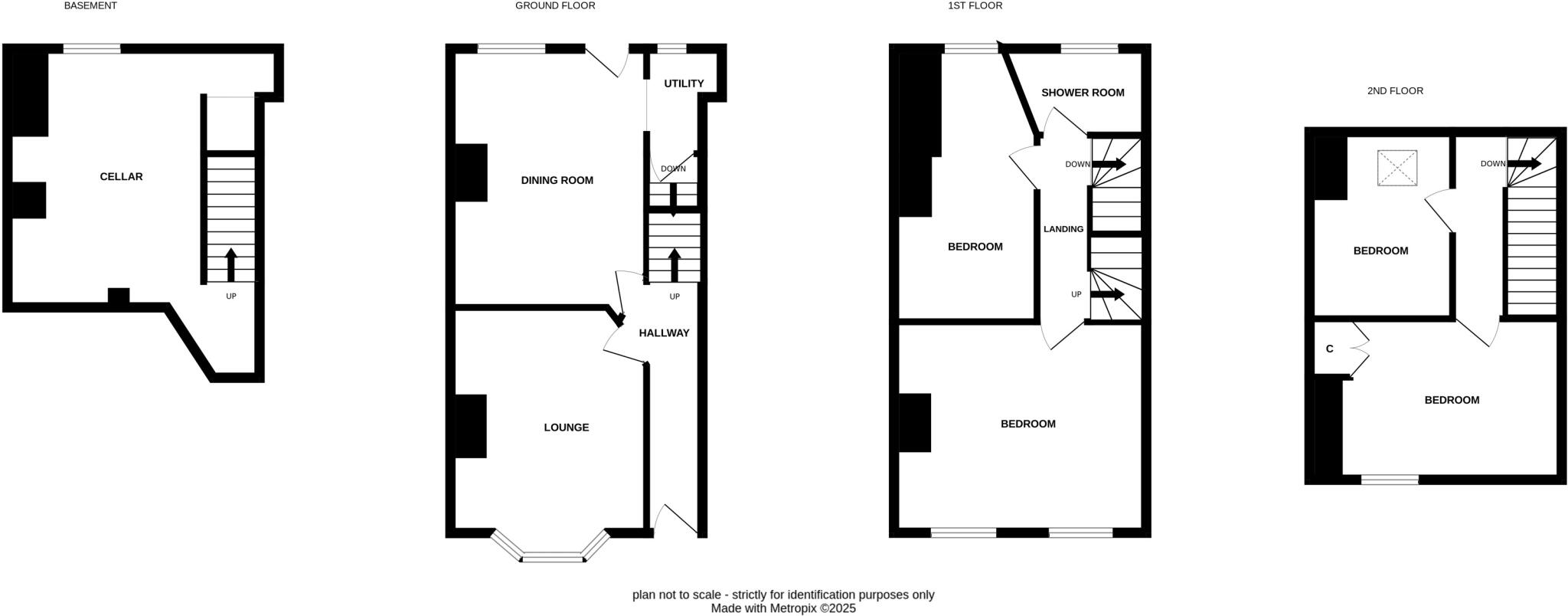
Set for auction on 10 December 2025 with a guide price of £150,000+, this four-bedroom through-terrace in Hyde Park is a straightforward renovation project or rental addition. The house is freehold, offers around 1,066 sq ft of accommodation across multiple floors, and includes a small rear yard. It sits in a well-connected, student-popular LS6 neighbourhood with fast broadband and excellent mobile signal.
The property requires full renovation throughout and is sold as seen. Notable positives for a renovator include an existing mains-gas boiler and radiators, double glazing (install date unknown), a Howdens kitchen and some insulation boards among the contents. EPC rating C and Council Tax band B are practical advantages for future lettings.
Buyers should factor in substantial works: complete refurbishment, likely updating of wall insulation (solid brick construction assumed uninsulated), and modernisation of services where needed. The house is best suited to investors targeting the student market or experienced DIY renovators who can manage a full programme of works.
Location strengths include the local amenities, shops and cafes on the doorstep, ready access to public transport, and proximity to schools and colleges. There is no identified flood risk. The sale route (traditional auction) means purchasers need to be prepared for a prompt, as-is completion process.
3 bedroom terraced house for sale in Fir Tree Vale, Leeds, West Yorkshire, LS17 — £135,000 • 3 bed • 2 bath
3 bedroom semi-detached house for sale in 11 Buckingham Avenue, Headingley, Leeds LS6 1DJ, LS6 — £172,500 • 3 bed • 1 bath
2 bedroom end of terrace house for sale in Burley Lodge Road, Hyde Park, Leeds, LS6 — £100,000 • 2 bed • 1 bath • 594 ft²
4 bedroom terraced house for sale in Hartley Grove, Leeds, West Yorkshire, LS6 — £175,000 • 4 bed • 1 bath • 1151 ft²
3 bedroom end of terrace house for sale in 22 Stonebridge Avenue, Leeds, West Yorkshire, LS12 5AL, LS12 — £75,000 • 3 bed • 1 bath
3 bedroom terraced house for sale in Victoria Avenue, Leeds, LS9 — £90,000 • 3 bed • 1 bath • 1119 ft²














































