**Standout Features:**
- Historic stone cottage with characterful details and award-winning conservation design.
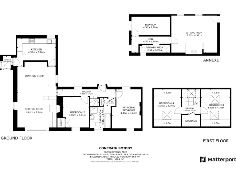
- Five spacious bedrooms and two bathrooms—perfect for families or multi-generational living.
- Attached self-contained annexe that offers rental income potential or guest accommodation.
- Enclosed paddock providing outdoor space for gardening or leisure activities.
- Prime location with easy commutes to Aberdeen, Westhill, and Kingswells.
**Notable Concerns:**
- Listed property status may lead to challenges with renovation and maintenance.
- Current heating system needs attention; the wood-burning stove is disconnected, requiring a new flue.
- Possible high council tax in the area.
Embrace rural living in this charming, detached stone cottage boasting five bedrooms and an attached annexe, ideal for families or as a lucrative rental opportunity. This unique home, recognized for its historical significance, features rustic charm with exposed stone walls, a large granite fireplace, and a bright, traditionally designed kitchen. The versatile layout includes a self-contained guest suite, perfect for multi-generational living or providing additional income.
Set on a picturesque plot, the property offers stunning countryside views and a generous paddock for gardening or leisure pursuits. Enjoy the peace that rural life brings while benefiting from excellent transport links to Aberdeen and nearby amenities in Kingswells and Westhill. Note that the home is listed, which may limit renovation options, and the heating system needs some work to ensure comfort.
Don’t miss the chance to make this character-filled home your own—properties with such unique charm and income potential are in high demand and don't stay on the market for long!
Equestrian facility for sale in Woodlands Croft, Dyce, Aberdeen, AB21 — £595,000 • 5 bed • 3 bath • 2960 ft²
3 bedroom detached house for sale in The Cottage, Murtle Den Road, Milltimber, Aberdeen, AB13 — £425,000 • 3 bed • 1 bath • 1604 ft²
Equestrian facility for sale in Gillahill Croft, Kingswells, Aberdeen, Aberdeenshire, AB15 — £650,000 • 4 bed • 3 bath • 2433 ft²
2 bedroom detached house for sale in 3 Auchenhuive Cottages, Whiterashes, AB21 0QQ, AB21 — £150,000 • 2 bed • 1 bath • 979 ft²
3 bedroom detached house for sale in North Coldstream, Drumoak, Banchory, AB31 — £325,000 • 3 bed • 2 bath
3 bedroom detached house for sale in Gardener's Cottage, Newton Of Pitfodels, Cults, Aberdeen, AB15 — £355,000 • 3 bed • 2 bath • 2088 ft²






































