Characterful 3-bed cottage with approved outbuilding extension, close to Aberdeen.
Granite 3-bed steading conversion with original exposed beams and character
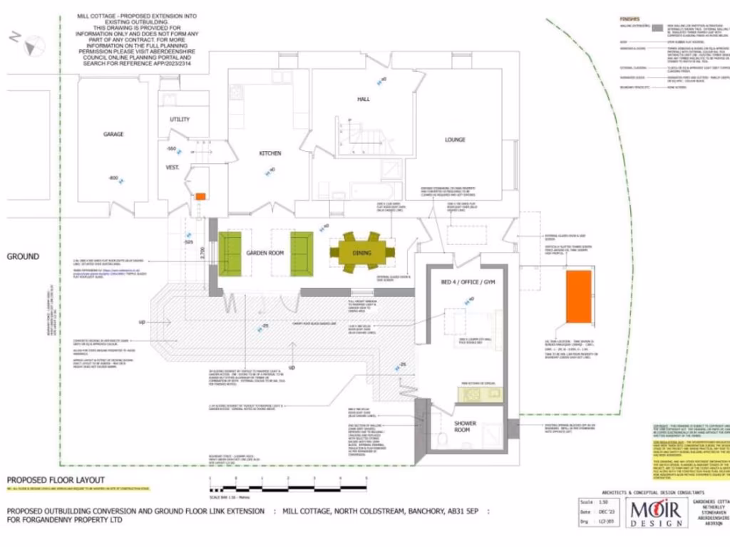
Full Planning Permission granted (APP/2023/2314) to extend into stone outbuilding
Sunny, fully enclosed garden with decking — child- and pet-friendly
Generous lounge, large family kitchen/diner and useful utility room
Attached single garage plus parking for two cars; low-maintenance rockery areas
Very slow broadband; average mobile signal — limited connectivity for remote work
EPC Rating E and Council Tax Band F (noted as expensive)
Located rurally but 11.5 miles to Aberdeen; limited local services in area
Set in a tranquil rural steading conversion, Mill Cottage is a granite-built 3-bedroom detached home that balances traditional character with practical family living. The house retains exposed wooden beams and original stonework, and offers a large lounge, a generous kitchen/diner and useful utility space. A sunny, fully enclosed garden and generous attached garage add everyday convenience for families or country retreats.
A major value enhancer is Full Planning Permission (Aberdeenshire Council APP/2023/2314, Feb 2024) to extend into the existing stone outbuilding. Approved plans create a self-contained fourth bedroom/office/gym with kitchen facilities, shower room and separate entrance plus additional garden and dining areas — useful for multi-generational living, home-working or holiday-let potential. The property lies 11.5 miles from Aberdeen city centre, with easy access to Westhill, Banchory and Aberdeen Airport.
Buyers should note material practical drawbacks: broadband speeds are very slow, mobile signal is only average, the Energy Performance Certificate is E and council tax sits in Band F (expensive). The wider area is classified as remoter farming communities with limited local services; the listing sits in a very deprived area classification, which may affect long-term demand and service provision.
This cottage will suit purchasers seeking country character within commuting distance of Aberdeen — families, those wanting a holiday base in Royal Deeside, or buyers prepared to complete the approved extension to add value and flexible living space. The property is offered freehold with clear planning consent in place for immediate development.
3 bedroom detached house for sale in The Cottage, Murtle Den Road, Milltimber, Aberdeen, AB13 — £425,000 • 3 bed • 1 bath • 1604 ft²
5 bedroom detached house for sale in Concraig Smiddy, Clinterty, Kingswells, Aberdeen, AB15 — £355,000 • 5 bed • 2 bath • 2616 ft²
5 bedroom detached house for sale in Mill Of Cranhill, Banchory Devenick, Aberdeen, Aberdeenshire, AB12 — £575,000 • 5 bed • 3 bath • 3334 ft²
3 bedroom country house for sale in Drumoak, Aberdeenshire, AB31 — £390,000 • 3 bed • 2 bath • 1679 ft²
4 bedroom detached house for sale in Echt, Westhill, AB32 — £495,000 • 4 bed • 3 bath • 2551 ft²
3 bedroom detached bungalow for sale in Strachan, Banchory, AB31 — £320,000 • 3 bed • 1 bath • 1195 ft²






































































































































































