Modern new-build with upgrade package and garage—suited to family living.
£7,500 deposit contribution available (T&Cs apply)
£1,500 kitchen upgrades included as standard
Block-paved driveway, turf, full fencing and outside tap
Vehicle charging point and attached garage for parking
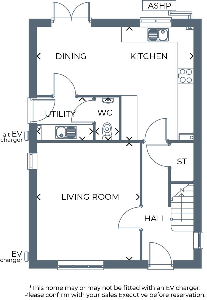
Large kitchen-diner with French doors to the rear garden
Master bedroom with private en-suite; useful ground-floor utility
Modest overall internal size for a four-bedroom house (≈965 sqft)
Located in a high-crime, very deprived area—consider resale risk
This four-bedroom detached new build on Tyne Road East offers a practical, modern family layout across about 965 sqft. The ground floor features a large living room, a generous kitchen-dining area with French doors to the rear garden, plus a utility and downstairs WC. The master bedroom includes a private en-suite and there are three further bedrooms upstairs served by a family bathroom.
Specified upgrades add immediate value: £7,500 toward your deposit (T&Cs apply), £1,500 of kitchen upgrades included, block-paved driveway, turf to front and rear, full fencing and gate, outside tap and a vehicle charging point. An attached garage provides covered parking and storage, and the home comes with a 10-year warranty (first two years with the builder, remaining eight years with NHBC).
Practical points to note: the property sits in an area with high crime rates and very high deprivation scores, which may concern some buyers and could affect long-term resale. The overall internal size is modest for a four-bedroom home, so rooms and storage are compact compared with larger family homes. Council tax banding is not yet confirmed.
This is a new-build, low-maintenance home aimed at buyers wanting a contemporary layout with immediate move-in specification and long-term warranty protection. It will suit families seeking good local primary and secondary schools and commuter access, but buyers should weigh the neighbourhood statistics alongside the strong on-site specification and financial incentives.
4 bedroom detached house for sale in Tyne Road East,
Stanley,
County Durham,
DH9 6PZ, DH9 — £269,995 • 4 bed • 1 bath • 965 ft²
3 bedroom semi-detached house for sale in Tyne Road East,
Stanley,
County Durham,
DH9 6PZ, DH9 — £184,995 • 3 bed • 1 bath • 748 ft²
3 bedroom semi-detached house for sale in Tyne Road East,
Stanley,
County Durham,
DH9 6PZ, DH9 — £209,995 • 3 bed • 1 bath • 790 ft²
3 bedroom detached house for sale in Tyne Road East,
Stanley,
County Durham,
DH9 6PZ, DH9 — £204,995 • 3 bed • 1 bath • 713 ft²
4 bedroom detached house for sale in Colliery Road,
Bearpark,
Durham,
DH7 7AU, DH7 — £276,995 • 4 bed • 1 bath • 965 ft²
3 bedroom detached house for sale in Bent House Lane, Durham,
County Durham,
DH1 2DX, DH1 — £304,995 • 3 bed • 1 bath • 876 ft²










































































































