Contemporary family home with parking and garden in peaceful town-fringe setting.
4 bedrooms with master en-suite and family bathroom
Block-paved driveway, attached garage and vehicle charging point
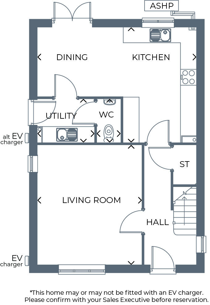
Kitchen-dining with French doors to rear garden
Utility room and ground-floor WC for practical family life
Approx 965 sq ft — relatively compact for four bedrooms
Slow broadband speeds in the area may affect home working
Local crime levels are above average — check local data
10-year warranty (2 years builder, 8 years NHBC)
This newly built four-bedroom detached home on Colliery Road offers modern family living with practical extras included. The Dalkey layout places a generous kitchen-dining area with French doors to the rear garden at the heart of the house, plus a large separate living room, useful utility and ground-floor WC. The main bedroom benefits from a private en-suite.
Built to a high specification from known brands, the property comes with a block-paved driveway, attached garage, turf front and rear gardens, full fencing and gate, outside tap and a vehicle charging point. Buyers will also benefit from a 10-year warranty (first two years with the builder, followed by eight years via NHBC) and the option to personalise fixtures and finishes subject to build stage.
Practical considerations include a relatively modest overall size (approximately 965 sq ft) for a four-bedroom home, and currently slow broadband speeds in the area. Local crime levels are above average for the district. Council tax band and EPC rating are TBC. Schools nearby include several well-regarded primaries and the outstanding Durham Johnston Comprehensive.
This home suits families seeking a ready-to-move-in new build in a prospering countryside setting who value modern finishes, off-street parking and an EV charging point, while accepting the trade-offs of compact internal space and slower broadband.
4 bedroom detached house for sale in Colliery Road,
Bearpark,
Durham,
DH7 7AU, DH7 — £269,995 • 4 bed • 1 bath • 954 ft²
4 bedroom detached house for sale in Tyne Road East,
Stanley,
County Durham,
DH9 6PZ, DH9 — £269,995 • 4 bed • 1 bath • 965 ft²
4 bedroom detached house for sale in Colliery Road,
Bearpark,
Durham,
DH7 7AU, DH7 — £269,995 • 4 bed • 1 bath • 954 ft²
4 bedroom detached house for sale in Colliery Road,
Bearpark,
Durham,
DH7 7AU, DH7 — £138,498 • 4 bed • 1 bath • 965 ft²
3 bedroom detached house for sale in Colliery Road,
Bearpark,
Durham,
DH7 7AU, DH7 — £244,995 • 3 bed • 1 bath • 775 ft²
4 bedroom detached house for sale in Tyne Road East,
Stanley,
County Durham,
DH9 6PZ, DH9 — £269,995 • 4 bed • 1 bath • 965 ft²






























































