New-build with garage, gardens and EV charging ideal for first-time buyers seeking low-maintenance living.
- Three first-floor bedrooms, master with private en-suite
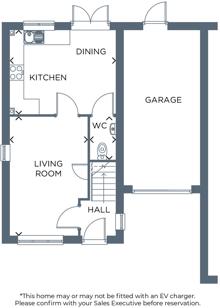
- Living room linking to contemporary kitchen-diner
- Integral garage, block-paved driveway and off-street parking
- Front and rear turfed gardens with full fencing and gate
- EV charging point and outside tap included
- 10-year warranty (2 years builder, 8 years NHBC)
- Small overall footprint ~790 sq ft, compact room sizes
- Located in a high-crime, very deprived area — research locality
A modern new-build offering practical family accommodation across two floors. The ground floor has a generous living room flowing to a contemporary kitchen-diner, plus a guest WC. Upstairs features a spacious main bedroom with private en-suite, two further bedrooms and a family bathroom.
Finished to a high specification with recognised-brand fittings as standard, the home includes an integral garage, block-paved driveway, front and rear turfed gardens, full fencing and an outside tap. An EV charging point and fast broadband make the house suited to modern daily life.
Buyers benefit from a 10-year warranty (first 2 years with the builder, then NHBC cover). Optional upgrades are available subject to build stage and additional cost; images and some finishes may reflect selected extras.
Considerations: the property is on a small plot (circa 790 sqft) in a very deprived area with higher local crime levels. Council tax, EPC and some service details are to be confirmed — check these before committing.
4 bedroom detached house for sale in Tyne Road East,
Stanley,
County Durham,
DH9 6PZ, DH9 — £269,995 • 4 bed • 1 bath • 965 ft²
3 bedroom detached house for sale in Tyne Road East,
Stanley,
County Durham,
DH9 6PZ, DH9 — £204,995 • 3 bed • 1 bath • 713 ft²
3 bedroom semi-detached house for sale in Tyne Road East,
Stanley,
County Durham,
DH9 6PZ, DH9 — £184,995 • 3 bed • 1 bath • 748 ft²
3 bedroom semi-detached house for sale in Colliery Road,
Bearpark,
Durham,
DH7 7AU, DH7 — £109,998 • 3 bed • 1 bath • 790 ft²
3 bedroom semi-detached house for sale in Brass Thill Way, Stanley, DH9 — £175,000 • 3 bed • 3 bath • 726 ft²
4 bedroom detached house for sale in Tyne Road East,
Stanley,
County Durham,
DH9 6PZ, DH9 — £269,995 • 4 bed • 1 bath • 965 ft²






















































