**Standout Features:**
- Exceptional 0.55-acre building plot with full planning permission.
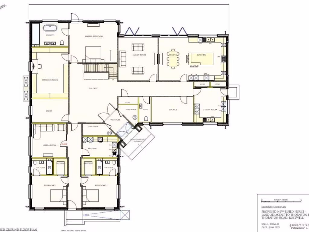
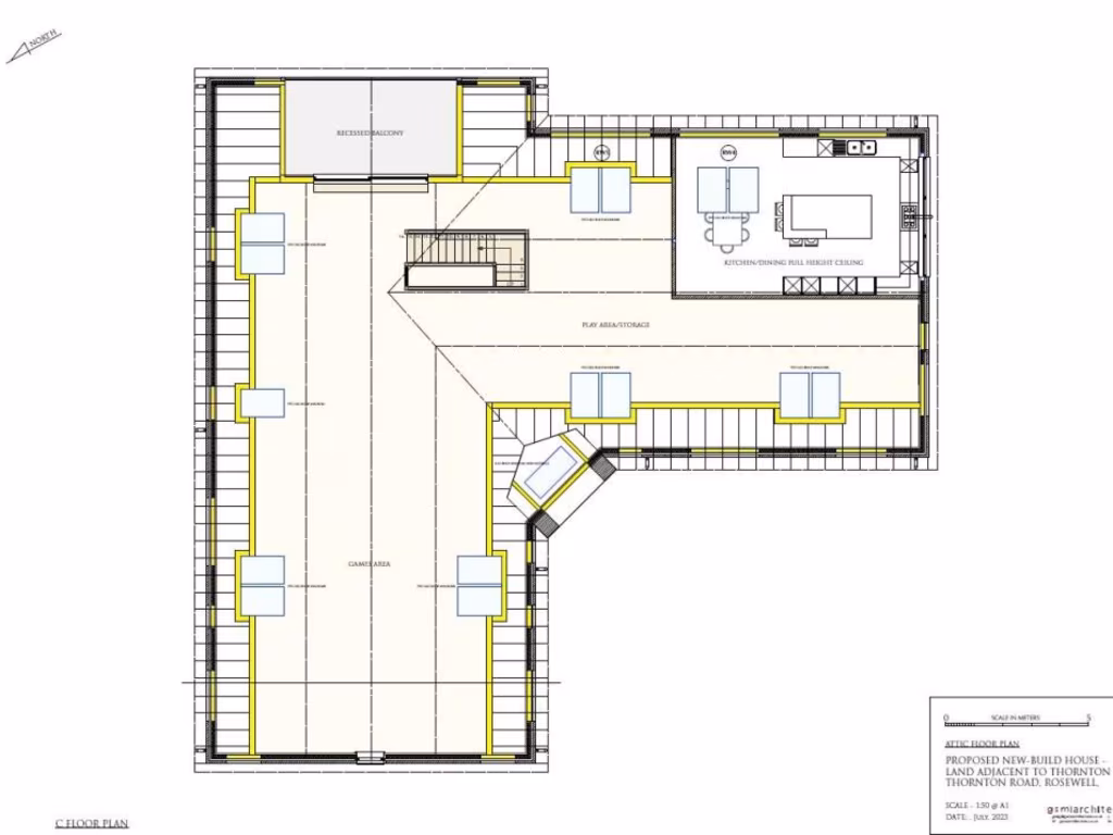
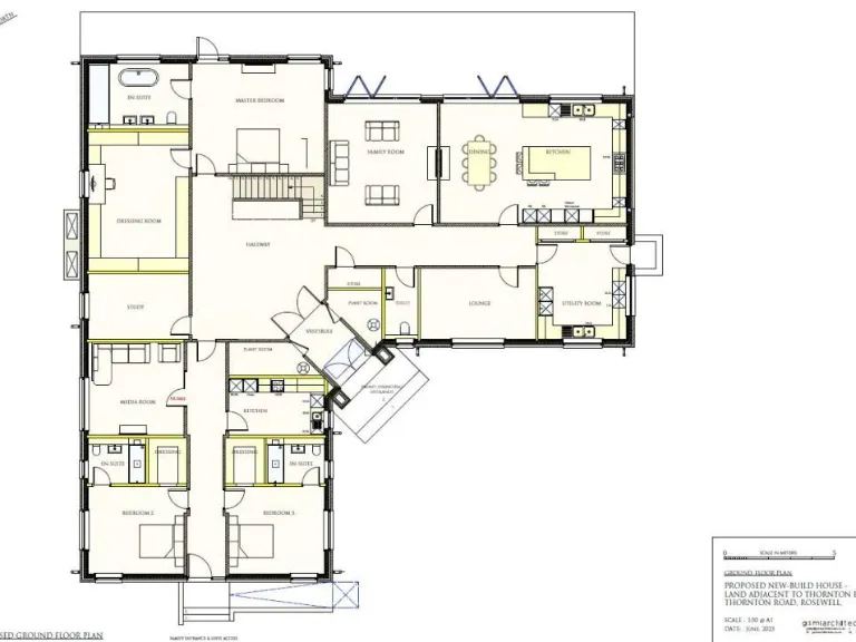
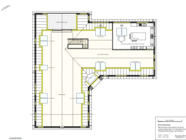
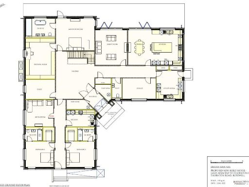
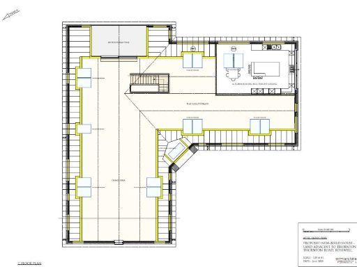
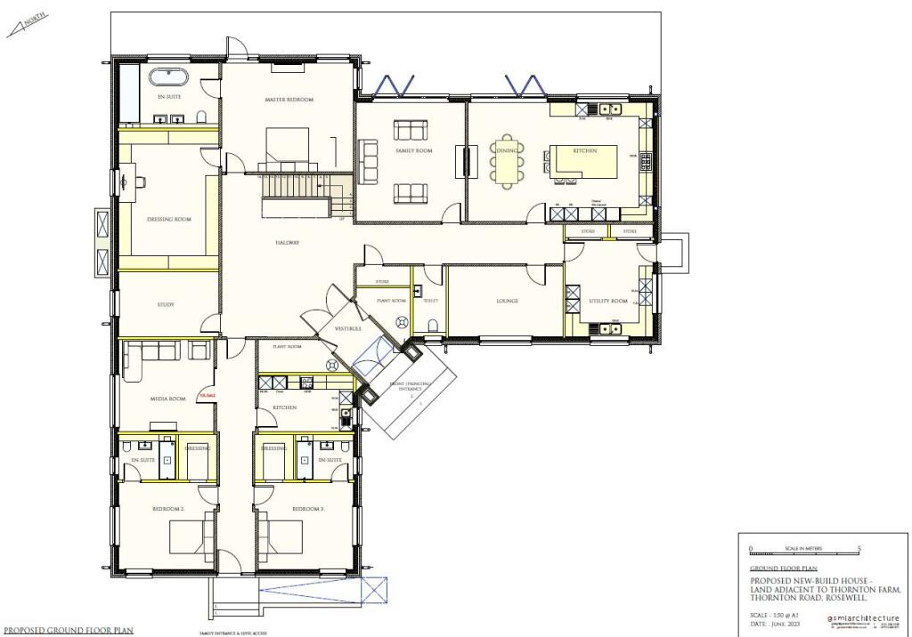
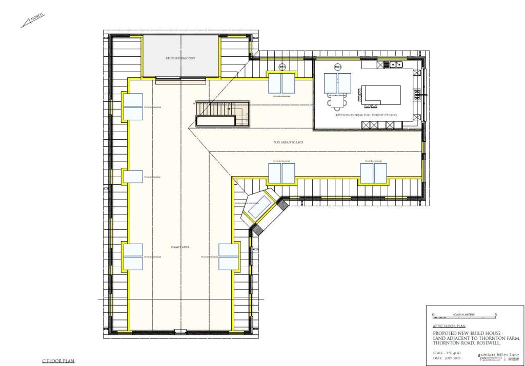
- Spacious internal layout designed for a luxurious single-storey home with attic.
- Includes 3 en suite bedrooms, media room, home office, and more.
- Private location with scenic views of neighboring farmland.
- Convenient transport links to Edinburgh and nearby amenities.
- Works commenced with foundations laid; some materials already on-site.
**Concise Summary:**
Seize the rare opportunity to create your dream home on this exceptional 0.55-acre building plot at Thornton Farm, Rosewell. With full planning permission in place for a stunning single-storey residence featuring 3 en suite bedrooms and expansive living spaces, this plot is primed for a bespoke development. The proposed design includes a large detached double garage and the flexibility to incorporate various recreational rooms within the attic space.
Ideally situated in a tranquil, rural setting, this plot offers privacy while maintaining excellent transport links to Edinburgh. The groundwork has already begun, with foundations laid and materials on-site, making your construction process smoother. Whether you are an investor looking for a significant project or a family seeking an idyllic countryside retreat, this property represents unique potential—don't miss out on the chance to turn your vision into reality!
Plot for sale in Plot south of Dalhousie Lodge, Rosewell Road, Bonnyrigg EH19 3PP, EH19 — £199,000 • 4 bed • 1 bath • 12700 ft²
Plot for sale in Plot 6, Kingswood, Leadburn, West Linton, EH46 7BW, EH46 — £150,000 • 4 bed • 3 bath • 2045 ft²
Plot for sale in Fala Village, Pathhead, Midlothian, EH37 — £125,000 • 1 bed • 1 bath
Plot for sale in Ravelston Dykes Road, Edinburgh, EH4 — £795,000 • 1 bed • 1 bath • 5000 ft²
Plot for sale in Residential Building Plot, Bellfield Road, Old Edinburgh Road, Eddleston, EH45 8QR, EH45 — £160,000 • 3 bed • 3 bath • 1476 ft²
Plot for sale in Plot - Torcraik Court, North Middleton, Gorebridge, Midlothian, EH23 — £75,000 • 1 bed • 1 bath






























