**Standout Features:**
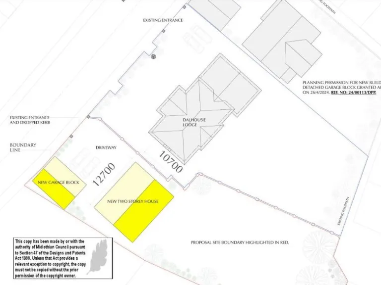
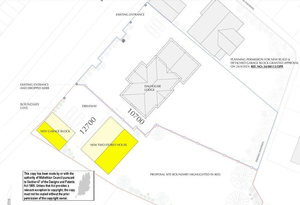
- Large residential plot with Planning Permission in Principle for a substantial detached dwelling and double garage.
- Plot size: approximately 18m x 57m, offering ample space for development.
- Scenic countryside outlook, located just outside Bonnyrigg with excellent transport links to Edinburgh.
- Close to reputable local schools and various shopping amenities.
- Potential for custom design tailored to your needs.
- Fast broadband and excellent mobile signal available.
**Summary:**
Discover a fantastic opportunity to create your dream home with this sizable residential plot located south of Dalhousie Lodge on Rosewell Road, Bonnyrigg. With Planning Permission in Principle granted for a large detached dwelling and garage, you can design the perfect living space to suit your lifestyle. The plot boasts a generous size of approximately 12700 square feet, allowing for expansive living areas and gardens, all set against a lovely countryside backdrop.
Conveniently situated on the outskirts of Bonnyrigg, you’ll enjoy easy access to Edinburgh's city center, which is just a 30-minute drive away. The area features good local schooling options, a variety of shops, and recreational facilities, making it an ideal spot for families or investors looking for rental potential. While the surrounding community is classified as ageing urban, you’ll appreciate the tranquility and scenic views that the countryside offers. Seize this rare chance to invest in a promising property where you can build a unique family home that perfectly matches your vision. Don't miss out—properties like this are in demand!
Plot for sale in Plot at Thornton Farm, Thornton Road, Rosewell EH24 9EF, EH24 — £299,000 • 4 bed • 4 bath • 6782 ft²
Plot for sale in Ravelston Dykes Road, Edinburgh, EH4 — £795,000 • 1 bed • 1 bath • 5000 ft²
Plot for sale in Plot 6, Kingswood, Leadburn, West Linton, EH46 7BW, EH46 — £150,000 • 4 bed • 3 bath • 2045 ft²
Commercial development for sale in 2 Fraser Avenue, Edinburgh, EH5 2AE, EH5 — £145,000 • 1 bed • 1 bath
Plot for sale in Plot - Torcraik Court, North Middleton, Gorebridge, Midlothian, EH23 — £75,000 • 1 bed • 1 bath
Land for sale in Corner Plot Morris Road, Newton Grange, EH22 4ST, EH22 — £425,000 • 1 bed • 1 bath


























