Large plot and garage with strong renovation potential for cash buyers.
- Extended two-bedroom detached stone cottage with en-suite to principal bedroom
- Circa 0.4 acre plot with large garden, summerhouse and several outbuildings
- Detached 39ft garage and gated private gravel driveway with parking
- Flood damaged and in need of renovation — sold as a repair project
- Sold at auction: buyers’ premium, 5% deposit, cash-ready, 28-day completion
- Conservation area location with countryside views and planning potential
- Double glazing and mains gas boiler; walls likely uninsulated — retrofit likely
- Medium flood risk; not suitable for standard mortgage without lender approval
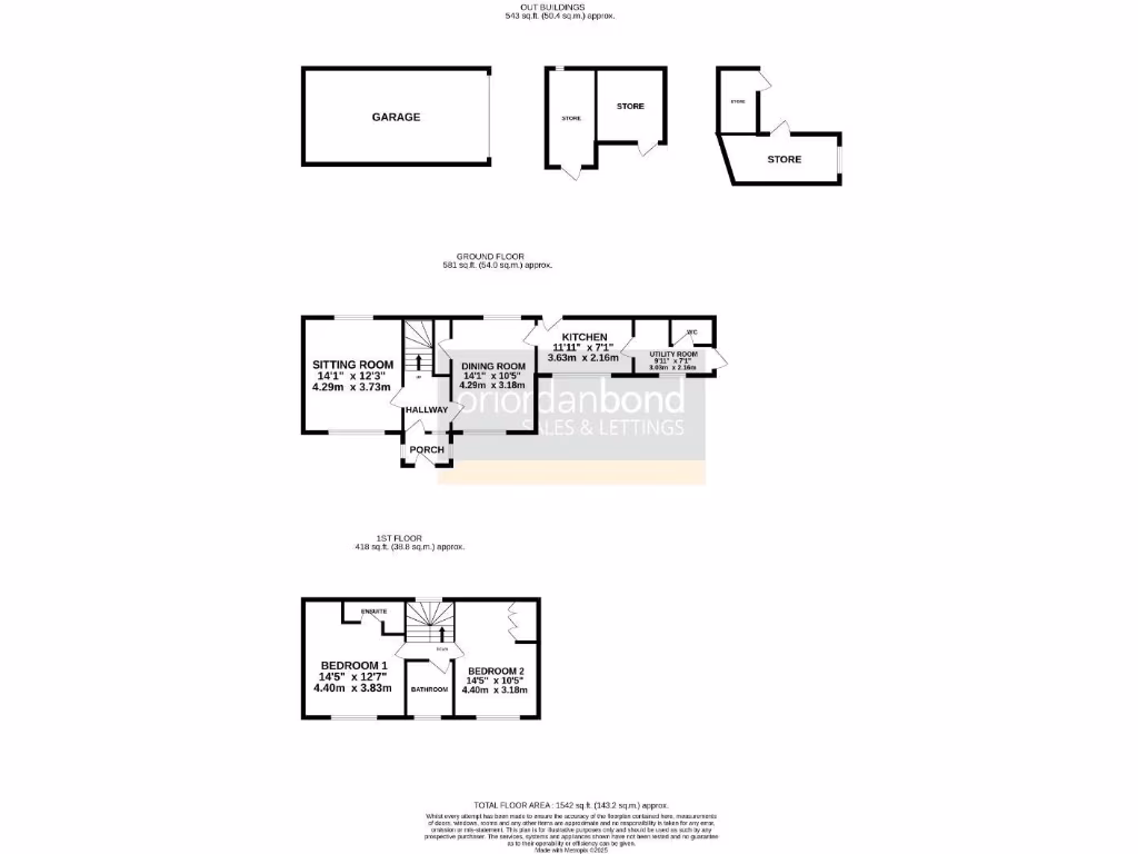
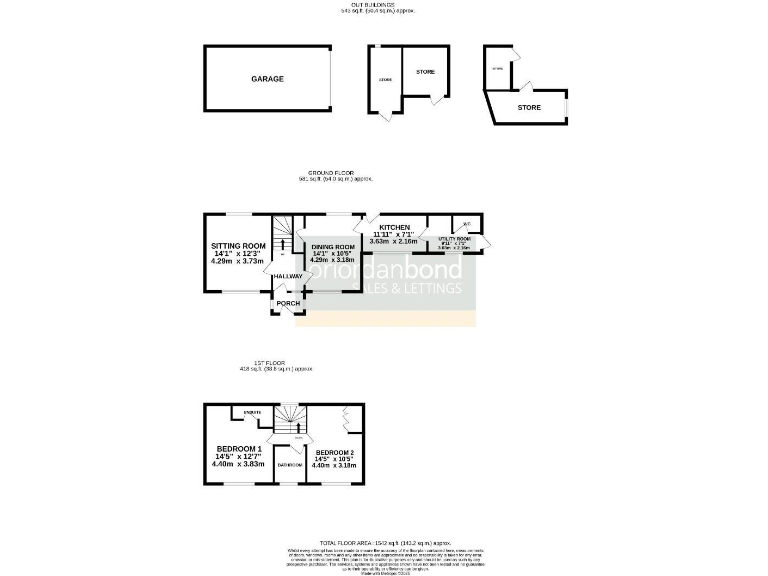
A rarely available extended two-bedroom detached stone cottage set on a substantial circa 0.4 acre plot in Bugbrooke, overlooking open fields. The house offers two reception rooms, a refitted bathroom, a master bedroom with en-suite and built-in wardrobes, plus a large detached 39ft garage and several outbuildings. Double glazing and mains gas heating are already installed. The setting in a conservation area and the long garden provide strong scope for outdoor living and further extension subject to planning permission.
This property is flood-damaged and requires renovation throughout. It is being sold at auction as an unconditional lot: buyers should be cash-capable and aware that a buyers’ premium (5% + VAT, minimum £5,000 + VAT) applies on fall of the hammer, with a 5% deposit and legal completion required within 28 days. These auction conditions make the sale legally binding immediately on exchange.
For buyers willing to take on a repair project, the cottage offers significant potential — substantial plot, outbuildings, and countryside views make it attractive for renovation, extension or conversion of outbuildings (subject to permissions). The village location has low crime, good primary and secondary schools nearby, excellent mobile signal and fast broadband, supporting modern living once works are complete.
Because of the flood damage and required works this home suits cash buyers, experienced renovators or investors seeking a renovation project with generous outdoor space. The sale is chain-free, enabling a faster transfer for a buyer prepared for auction timings and costs.
2 bedroom detached house for sale in 31 West End, Bugbrooke, Northampton, Northamptonshire, NN7 3PF, NN7 — £280,000 • 2 bed • 2 bath • 1023 ft²
3 bedroom cottage for sale in High Street, Bugbrooke, Northamptonshire, NN7 — £400,000 • 3 bed • 2 bath • 1445 ft²
4 bedroom detached house for sale in The Paddocks, Bugbrooke, Northampton, NN7 — £550,000 • 4 bed • 1 bath • 1548 ft²
5 bedroom detached house for sale in Camp Hill, Bugbrooke, Northampton, NN7 — £550,000 • 5 bed • 3 bath • 1650 ft²
3 bedroom cottage for sale in Humfrey Lane, Boughton, Northampton, NN2 — £399,950 • 3 bed • 2 bath • 850 ft²
3 bedroom detached house for sale in Pilgrims Lane, Bugbrooke, Northampton, NN7 — £394,995 • 3 bed • 1 bath • 1282 ft²










































