Spacious plot and period character ideal for experienced renovators or investors.
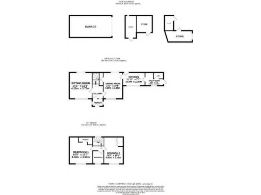
- Extended two-bedroom detached stone cottage
- Very large 0.4 acre plot with outbuildings and garden
- 39ft detached garage providing significant storage or workshop
- Master bedroom with en-suite
- Sold at auction; CASH BUYERS ONLY due to flood damage
- Requires full renovation; likely no wall insulation, medium flood risk
- Conservation area; further extension possible subject to planning
- Buyers premium, 5% deposit and 28-day completion apply
A rarely available extended stone cottage set on a very large 0.4-acre plot, overlooking open fields in Bugbrooke. The house offers two bedrooms (master with en-suite), a substantial detached 39ft garage, several outbuildings and a generous garden — attractive for buyers seeking space and scope in a semi-rural location. Broadband is fast and mobile signal excellent; the village has good primary and secondary schooling and easy road links to the A5 and M1.
This lot is sold at auction and marketed for CASH BUYERS ONLY due to flood damage and the property’s current condition. The house needs renovation throughout; buyers should expect repair work, possible structural and decoration costs, and that the stone walls likely have no cavity insulation. Flooding risk is recorded as medium and the legal pack should be reviewed for full details and any additional costs.
Situated in a conservation area, there is potential to extend further subject to planning permission, but alterations may be restricted. Auction purchasers must be ready to exchange on the fall of the hammer — a 5% deposit plus a buyer’s premium and VAT applies, with completion typically required within 28 days. This is a clear opportunity for an investor or an experienced renovator to secure a substantial plot and period cottage in a prosperous rural area.
2 bedroom cottage for sale in West End, Bugbrooke, Northamptonshire NN7 — £375,000 • 2 bed • 2 bath • 1022 ft²
3 bedroom house for sale in High Street, Bugbrooke, Northamptonshire, NN7 — £400,000 • 3 bed • 2 bath • 1445 ft²
4 bedroom detached house for sale in The Paddocks, Bugbrooke, Northampton, NN7 — £550,000 • 4 bed • 1 bath • 1548 ft²
5 bedroom detached house for sale in Camp Hill, Bugbrooke, Northampton, NN7 — £550,000 • 5 bed • 3 bath • 1650 ft²
6 bedroom detached house for sale in Badgers Close, Bugbrooke, Northamptonshire, NN7 — £850,000 • 6 bed • 3 bath • 2835 ft²
3 bedroom detached house for sale in Pilgrims Lane, Bugbrooke, Northampton, NN7 — £394,995 • 3 bed • 1 bath • 1282 ft²






































