Large garden, multiple sheds and generous parking for growing families.
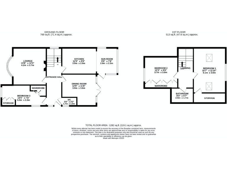
Detached three-bedroom family home on a large private plot
Mature rear garden with three powered sheds and a potting shed
Private driveway with off-street parking for numerous vehicles
Open-plan kitchen into sun room—bright, flexible living space
Ground-floor bedroom/office ideal for remote working or guests
Single shower room for three bedrooms; may need additional bathrooms
EPC rating D; some cosmetic updating or efficiency work possible
Freehold, no upward chain; close to M1 (J16) and local schools
This well-sized detached home in Bugbrooke offers comfortable family living on a large plot close to village amenities and good transport links. The ground floor provides flexible living with a lounge, dining room, open-plan kitchen and a bright sun room, while a ground-floor bedroom/home office and two generous first-floor doubles suit a variety of household layouts.
Outside, a mature rear garden, three powered sheds and a potting shed create practical outdoor space for families, gardeners and hobbyists. A private driveway provides off-street parking for several vehicles — a real advantage for multi-car households and visitors. The property is freehold with no upward chain, helping streamline any purchase.
Practical points to note: the home is mid-to-late 20th century in style and presents scope for cosmetic updating to reflect modern tastes. There is a single modern shower room for three bedrooms, and the EPC is rated D. These factors mean the house will suit buyers seeking immediate comfortable living with potential to personalise and improve over time.
5 bedroom detached house for sale in Camp Hill, Bugbrooke, Northampton, NN7 — £550,000 • 5 bed • 3 bath • 1650 ft²
4 bedroom detached house for sale in The Paddocks, Bugbrooke, Northampton, NN7 — £550,000 • 4 bed • 1 bath • 1548 ft²
3 bedroom semi-detached house for sale in Tibbs Way, Bugbrooke, Northampton, Northamptonshire, NN7 — £290,000 • 3 bed • 3 bath • 1089 ft²
4 bedroom semi-detached house for sale in Georges Avenue, Bugbrooke, Northamptonshire NN7 — £325,000 • 4 bed • 2 bath • 1275 ft²
3 bedroom semi-detached house for sale in Oaklands, Bugbrooke, Northampton, NN7 — £290,000 • 3 bed • 1 bath • 915 ft²
4 bedroom detached house for sale in Pilgrims Lane, Bugbrooke, Northampton, NN7 — £490,000 • 4 bed • 2 bath • 1561 ft²














































































