Large convertible flat with private garden and big refurbishment potential.
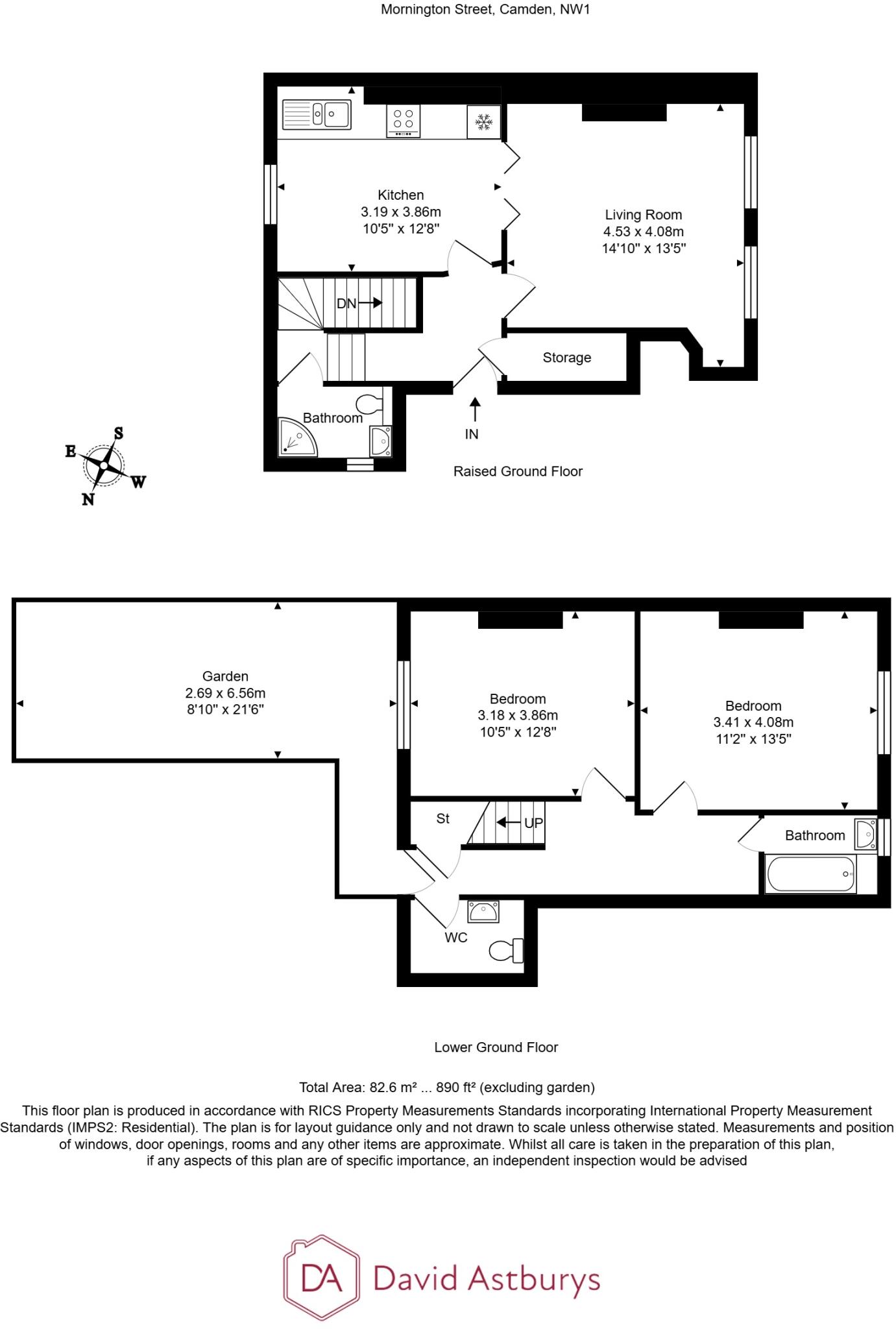
Private entrance to split-level Victorian conversion
Approximately 890–900 sq ft across raised and lower ground floors
Two double bedrooms, large living room, separate eat-in kitchen
South‑east facing private patio garden
Needs full refurbishment — significant renovation potential
Leasehold tenure; sold chain-free
Very high local recorded crime levels — consider security measures
Excellent central location; Regent's Park and tube stations nearby
Set within a handsome Victorian conversion on Mornington Street, this split-level apartment offers generous space and a private entrance in the heart of Camden Town. At approximately 890–900 sq ft, the raised/lower-ground layout includes two double bedrooms, a large living room, separate eat-in kitchen, family bathroom, shower room and an extra WC — rare proportions for a central London flat.
The property is flooded with natural light and benefits from a south‑east facing private patio garden, making it an attractive blank canvas for someone wanting to create a stylish home close to shops, markets and Regent’s Park. Sold chain‑free, it offers clear scope to add value through refurbishment and reconfiguration.
Buyers should note the apartment needs full renovation and updates to modern standards. It is leasehold and set in a solid-brick Victorian building likely without modern wall insulation; heating is by mains-gas boiler with radiator distribution. The immediate area has very high recorded crime levels — an important local consideration alongside the strong transport and amenity offer.
This is a good opportunity for a first‑time buyer or small household with a renovation budget who wants a spacious, well‑located Camden home with private outdoor space and long-term upside.
 2 bedroom flat for sale in Camden Street, Camden Town, NW1 — £750,000 • 2 bed • 1 bath • 807 ft²
 2 bedroom flat for sale in Camden Street, Camden Town, NW1 — £750,000 • 2 bed • 1 bath • 807 ft² 2 bedroom apartment for sale in Kingston House, Camden Street, Camden, London, NW1 — £725,000 • 2 bed • 1 bath • 954 ft²
 2 bedroom apartment for sale in Kingston House, Camden Street, Camden, London, NW1 — £725,000 • 2 bed • 1 bath • 954 ft² 2 bedroom flat for sale in Albert Street, 
Camden Town, NW1 — £925,000 • 2 bed • 1 bath • 950 ft²
 2 bedroom flat for sale in Albert Street, 
Camden Town, NW1 — £925,000 • 2 bed • 1 bath • 950 ft² 2 bedroom flat for sale in Camden Street, Camden, NW1 — £600,000 • 2 bed • 1 bath • 874 ft²
 2 bedroom flat for sale in Camden Street, Camden, NW1 — £600,000 • 2 bed • 1 bath • 874 ft² 2 bedroom apartment for sale in Delancey Street, London, NW1 — £535,000 • 2 bed • 1 bath • 657 ft²
 2 bedroom apartment for sale in Delancey Street, London, NW1 — £535,000 • 2 bed • 1 bath • 657 ft² 2 bedroom apartment for sale in Camden Street, London, NW1 — £850,000 • 2 bed • 1 bath • 861 ft²
 2 bedroom apartment for sale in Camden Street, London, NW1 — £850,000 • 2 bed • 1 bath • 861 ft²














































