Two-bedroom apartment with balcony, parking and concierge close to Gloucester Road stations.
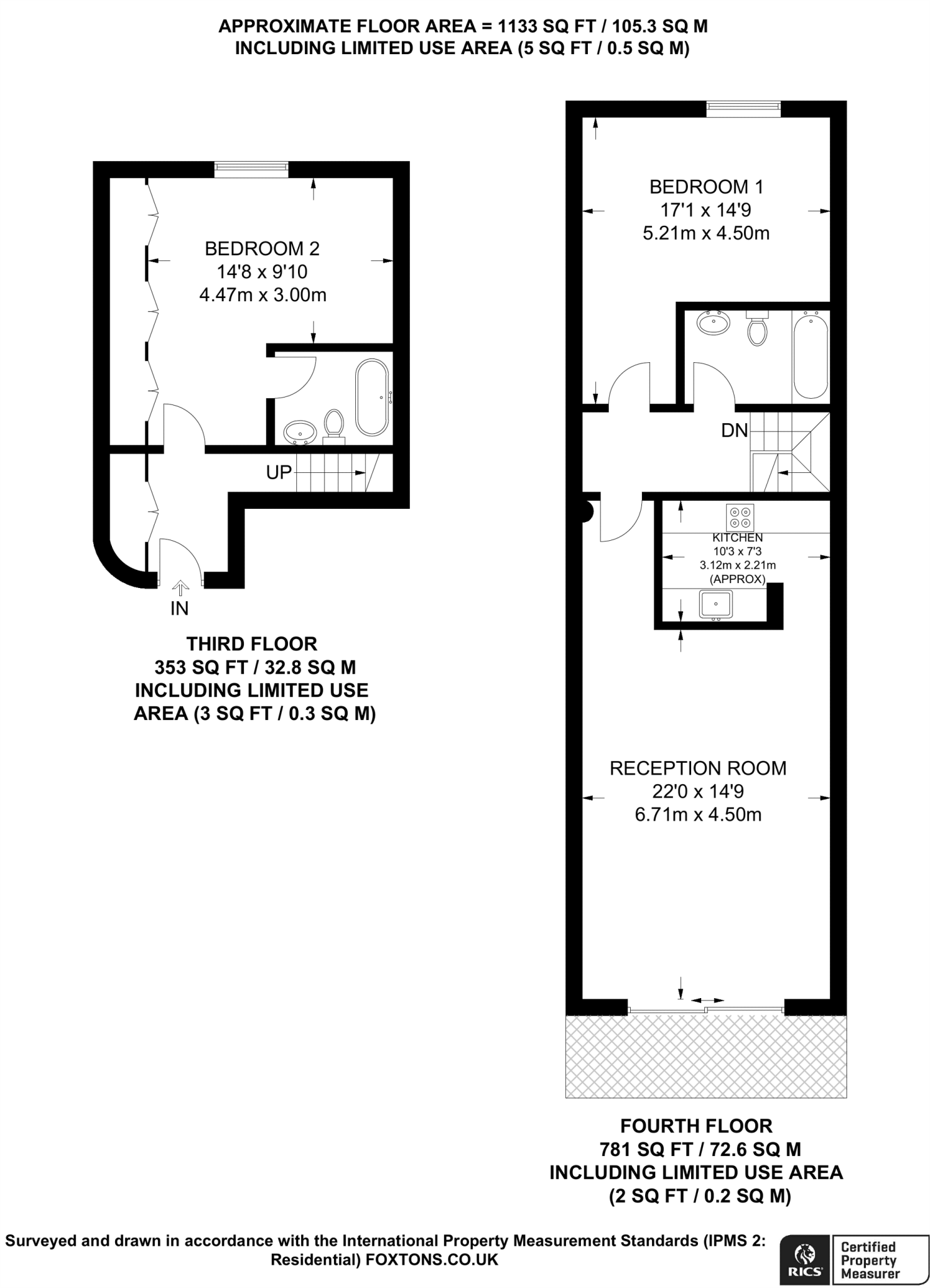
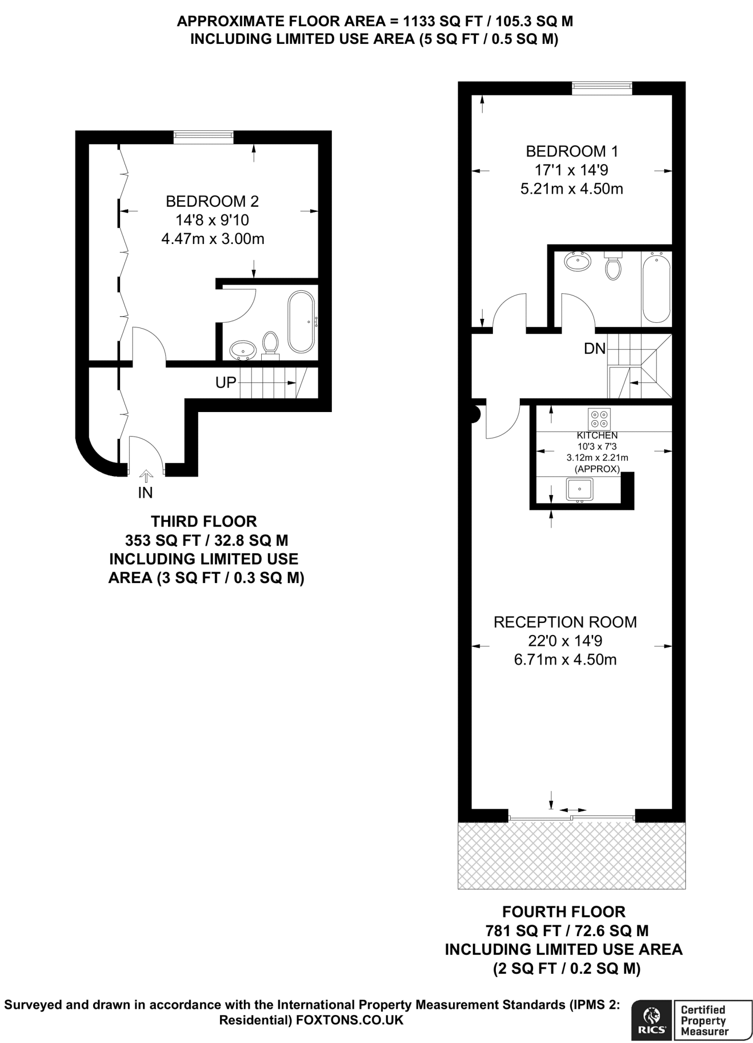
Spacious 1,133 sq ft split-level layout across two floors
Set within a popular Cromwell Road development, this spacious two-bedroom property occupies 1,133 sq ft over two floors. The main bedroom includes an en-suite and both bedrooms are generous in size, while a private balcony extends the reception room for outdoor sitting in central SW7. The building provides concierge, lift access and an off-street parking space — useful for London drivers.
The location is a major selling point: Gloucester Road underground and a wide range of cafes, shops and supermarkets are within easy walking distance. Several well-regarded independent schools are close by, and the immediate area is affluent and cosmopolitan, attractive to professionals and families who value central convenience.
Buyers should note material cost and maintenance points: the property uses electric storage heaters, which can be more expensive to run than gas central heating, and the living area has been flagged as needing refurbishment. The lease is long (222 years remaining), but the current ground rent is high at £2,050 per year — a significant ongoing charge to factor into affordability calculations.
For purchasers seeking a central London pied-à-terre or a buy-to-let in a sought-after SW7 location, this apartment combines size and amenities with clear scope to improve the interior. Be aware of the energy and service-cost implications before committing.
2 bedroom flat for sale in Point West, South Kensington, London, SW7 — £550,000 • 2 bed • 2 bath • 754 ft²
2 bedroom flat for sale in Point West, South Kensington, SW7 — £700,000 • 2 bed • 2 bath • 1185 ft²
2 bedroom flat for sale in Cromwell Road, London, SW7 — £500,000 • 2 bed • 1 bath • 800 ft²
1 bedroom flat for sale in Point West, South Kensington, London, SW7 — £415,000 • 1 bed • 1 bath • 897 ft²
1 bedroom flat for sale in Cromwell Road, South Kensington, SW7 — £500,000 • 1 bed • 1 bath • 904 ft²
2 bedroom flat for sale in Harrington Gardens, South Kensington, London, SW7 — £1,250,000 • 2 bed • 2 bath • 1080 ft²














































































































