New-build family home with EV charging and private garden.
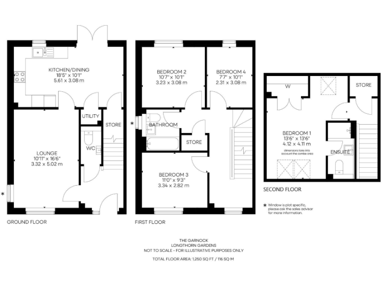
4 bedrooms across three levels, suitable for family living
Two bathrooms only — consider for larger families or guests
Integrated kitchen appliances and four-zone induction hob
Fitted wardrobes to principal bedroom with shelf and rail
EV charger to each allocated and in-curtilage parking space
Private garden and off-street allocated parking included
Reserve-before-date incentive: up to £25,000 cashback on selected plots
Local area classified as very deprived — investigate local services
This modern four-bedroom townhouse at Longthorn Gardens offers practical family living across three stories, with contemporary fittings and energy-efficient features. The kitchen includes integrated appliances and a four-zone induction hob; the principal bedroom benefits from fitted wardrobes. Outside, an in-curtilage allocated parking space and EV charger add everyday convenience, while a private garden provides safe outdoor space for children and pets.
The layout is sensible for family life but note there are two bathrooms for four bedrooms — useful to consider if you need more ensuite facilities. The home is new build and finished to a contemporary specification, with thermostatic heating controls and double glazing aimed at lowering running costs. Broadband is fast and mobile signal is excellent, supporting home working and study.
Incentives are available: reserve before the end of November on selected plots to receive up to £25,000 cashback, subject to conditions and a required entry date by end March 2026. Buyers should be aware the cashback applies only to chosen plots and cannot be combined with other offers unless explicitly agreed.
Location offers a semi-rural, suburban setting with green spaces nearby and good transport links to local towns. A factual downside: the local area is classified as having very high deprivation, which may affect local services and long-term community investment; buyers should research local amenities and schools to ensure suitability.
4 bedroom town house for sale in Millerhill,
Dalkeith,
EH22 1RZ, EH22 — £365,000 • 4 bed • 2 bath • 1250 ft²
4 bedroom detached house for sale in Millerhill,
Dalkeith,
EH22 1RZ, EH22 — £355,000 • 4 bed • 2 bath • 1029 ft²
4 bedroom town house for sale in Millerhill,
Dalkeith,
EH22 1RZ, EH22 — £370,000 • 4 bed • 2 bath • 1250 ft²
4 bedroom detached house for sale in Millerhill,
Dalkeith,
EH22 1RZ, EH22 — £389,000 • 4 bed • 2 bath • 1145 ft²
4 bedroom detached house for sale in Millerhill,
Dalkeith,
EH22 1RZ, EH22 — £430,000 • 4 bed • 2 bath • 1367 ft²
4 bedroom detached house for sale in Millerhill,
Dalkeith,
EH22 1RZ, EH22 — £357,500 • 4 bed • 2 bath • 1029 ft²


























