Contemporary family home with EV charging and integrated appliances.
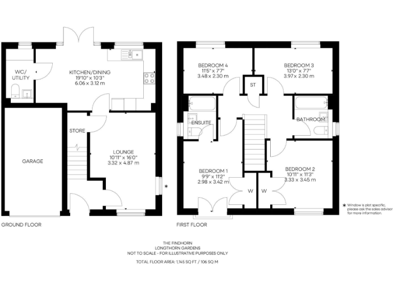
- Four-bedroom detached new build with private garden and garage
- Approx 1,145 sq ft; compact, efficient family layout (approx seven rooms)
- Integrated fridge-freezer, dishwasher, electric fan-assisted oven and induction hob
- EV charger provided to each parking space; off-street allocated parking
- Fitted wardrobes to principal bedroom; thermostatic heating control
- Fast broadband and excellent mobile signal—good for home working
- Small overall footprint; rooms and garden are modest in size
- Local area classified as very deprived; check nearby services and transport
This four-bedroom detached new-build at Longthorn Gardens delivers contemporary family living with practical, energy-conscious fittings. At about 1,145 sq ft the layout is compact but thoughtfully arranged across approximately seven rooms, making it suitable for families seeking modern conveniences without excessive space to maintain. Key fixtures include integrated kitchen appliances, stylish white sanitary ware and thermostatic heating controls for everyday comfort.
Practical extras include an EV charger to the in-curtilage allocated parking, fitted wardrobes to the principal bedroom, off-street parking and a private garden. Broadband speeds are fast and mobile signal is excellent, which supports home working and busy family life. The plot benefits from the backing of two established developers and a limited-time incentive: up to £25,000 cashback on selected plots for reservations made before end of November 2025 (entry required by end of March 2026; terms apply).
Buyers should note the property is a new build in a development described as having a rural, suburban character. The overall footprint is small for a four-bedroom home, so families wanting spacious rooms or extensive garden grounds should check room sizes in person. The surrounding area is classified as 'very deprived' for area deprivation statistics — consider local services and transport links as part of your decision.
This freehold detached home is aimed at families wanting modern, low-maintenance living with eco-friendly extras (EV charging) and integrated appliances. It could also appeal to buyers seeking a move-in ready property with developer warranties, though buyers seeking larger room proportions or a more central urban setting may find it modest in scale.
4 bedroom detached house for sale in Millerhill,
Dalkeith,
EH22 1RZ, EH22 — £430,000 • 4 bed • 2 bath • 1367 ft²
4 bedroom detached house for sale in Millerhill,
Dalkeith,
EH22 1RZ, EH22 — £357,500 • 4 bed • 2 bath • 1029 ft²
4 bedroom detached house for sale in Millerhill,
Dalkeith,
EH22 1RZ, EH22 — £425,000 • 4 bed • 2 bath • 1300 ft²
4 bedroom detached house for sale in Millerhill,
Dalkeith,
EH22 1RZ, EH22 — £355,000 • 4 bed • 2 bath • 1029 ft²
4 bedroom town house for sale in Millerhill,
Dalkeith,
EH22 1RZ, EH22 — £370,000 • 4 bed • 2 bath • 1250 ft²
4 bedroom town house for sale in Millerhill,
Dalkeith,
EH22 1RZ, EH22 — £365,000 • 4 bed • 2 bath • 1250 ft²


























